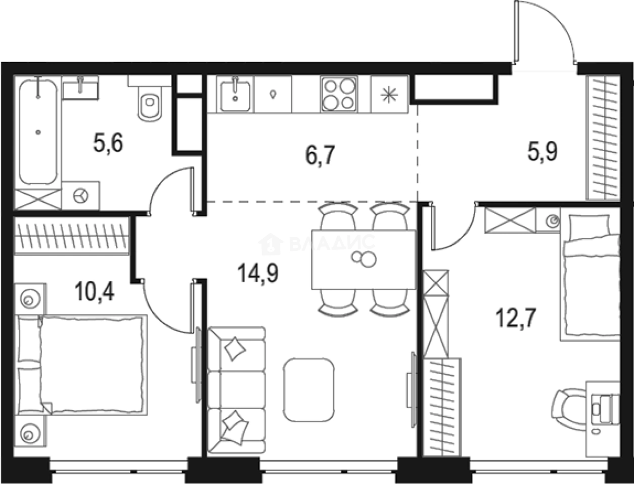
Продается 3-комн. квартира, 56.2 м²
Россия, Москва, Западный административный округ, район Очаково-Матвеевское, жилой комплекс Левел Мичуринский, к8
Мичуринский проспект
14 мин.
56.2 м²
Общая площадь
23.1 м²
Жилая площадь
21.6 м²
Площадь кухни
33 из 48
Этаж
Описание
В большинстве квартир проекта «Level Мичуринский» предусмотрено панорамное остекление. В угловых квартирах корпуса 6 — моллированные окна. Отличительная черта проекта — великолепные видовые характеристики. Квартиры сдаются с отделкой white box, также есть возможность дозаказать чистовую отделку. На верхних этажах башен расположены пентхаусы, в том числе двухуровневые со вторым светом.
Впечатляющая концепция благоустройства проекта «Level Мичуринский» разработана бюро Wowhaus. Основная идея заключается в максимальном раскрытии дворовой части на природное окружение . Большой перепад высот на участке позволяет создать уникальное многоуровневое пространство, которое плавно перетекать в Очаковский парк. В проекте выполнено функциональное зонирование территории: событийная площадка с сухим фонтаном, большой елью и арт-объектом, уникальная детская вертикальная площадка, детские площадки для разных возрастных категорий, спортивные площадки для активных и расслабляющих видов спорта, зоны для отдыха и работы на свежем воздухе, площадка для выгула собак. Также на территории квартала построены 3 детских сада и школа. Для владельцев автомобилей предусмотрен трехуровневый отапливаемый подземный паркинг.
Проект «Level Мичуринский» возведен в престижном западном районе. В 700 м от ЖК расположено множество парков. В пешей доступности магазины, кафе, фитнес клубы, медицинские учреждения, школы, детские сады. До метро «Мичуринский проспект» — 10 минут пешком.
О квартире
Общая площадь
56.2 м²
Жилая площадь
23.1 м²
Площадь кухни
21.6 м²
Площадь комнат
10.4+12.7 м²
Высота потолков
2.87 м
Подъезд
1
Этаж
33
Окна выходят
На улицу
О доме
Год постройки
2026
Этажность
48
Количество подъездов
1
Материал постройки
Кирпично-монолитный
Материал перекрытий
Монолитные
Отопление
Центральное
Пассажирских лифтов
1
Грузовых лифтов
1
Парковка
Подземная
Расположение
Россия, Москва, Западный административный округ, район Очаково-Матвеевское, жилой комплекс Левел Мичуринский, к8
Мичуринский проспект
14 мин.
Мичуринский проспект
14 мин.
Аминьевская
14 мин.
Озёрная
27 мин.
Раменки
4 мин.
Ипотечный калькулятор
Заполните 1 анкету — получите предложения от десятков банков на специальных условиях
Программа ипотеки
Стоимость жилья, ₽
Первый взнос, ₽
Срок кредита
от 5.75%
Ставка
от 143 805 ₽
Платеж в месяц
Расчёт носит информационный характер и не является публичной офертой
Похожие объекты








3-комн. квартира, 53,4 м², 2/9 эт.
Давыдково
17 мин.








3-комн. квартира, 52,5 м², 1/9 эт.
Давыдково
17 мин.






3-комн. квартира, 54,5 м², 5/16 эт.
Давыдково
18 мин.
Консультант по новостройкам
22 858 487 ₽
406 735 ₽/м²






























