Продается 3-комн. квартира, 80.6 м²
Россия, Москва, проспект Генерала Дорохова, 39к2Д
80.6 м²
Общая площадь
40 м²
Жилая площадь
15 м²
Площадь кухни
1 из 13
Этаж
Описание
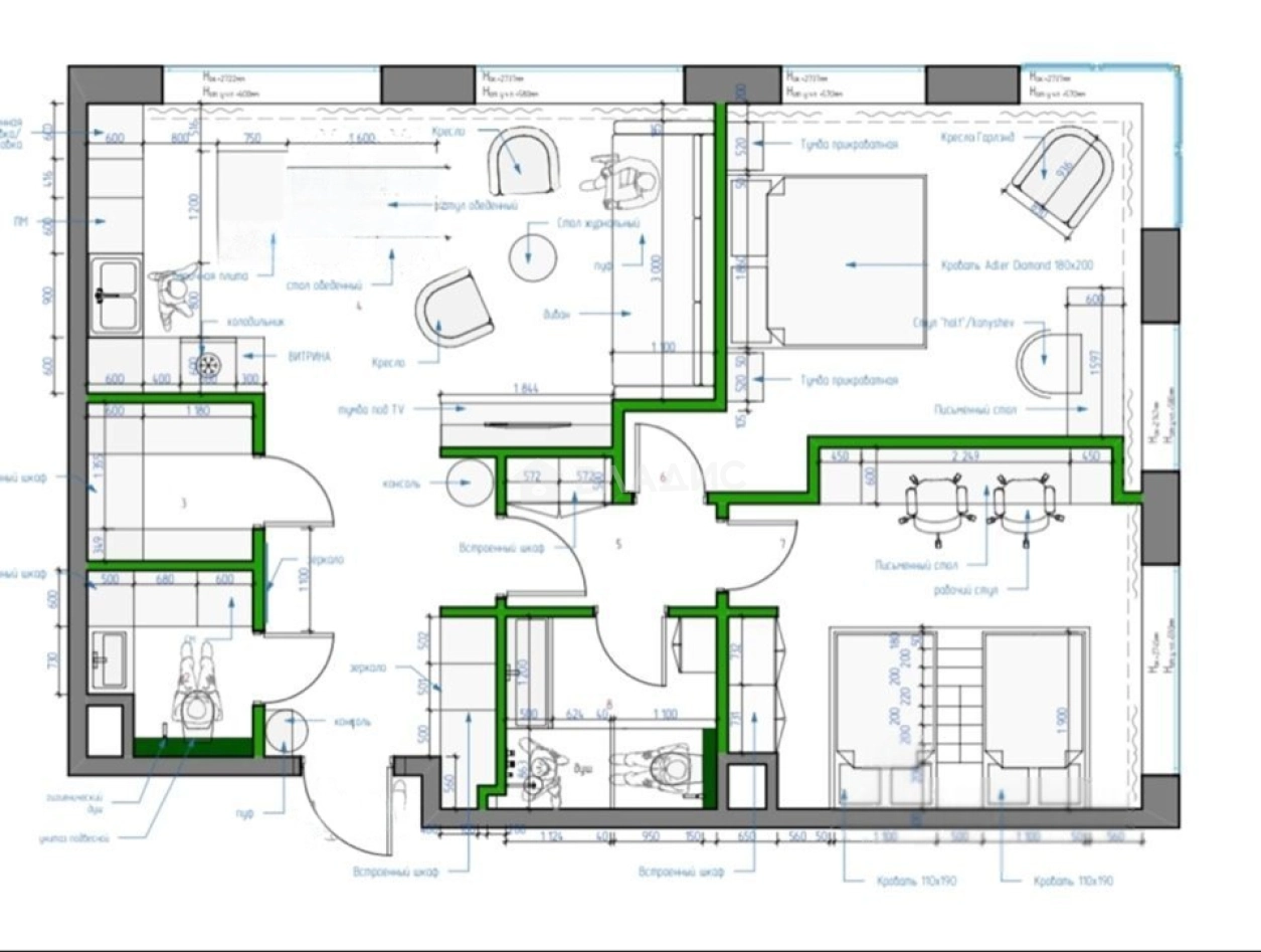
Общая площадь квартиры составляет 80,6 м2.
Высота потолков 3,7 м создаёт ощущение простора и свободы.
Перед окнами высажены елки, кустарники, создана территория полного ощущения жизни загородом, в тишине и комфорте.
В квартире возведены стены согласно проекта, сделана шумоизоляция на потолке, проведены вентиляционные коробка, разведена электрика. Работы остановлены, чтобы каждый мог дальше сделать квартиру своей мечты внеся свои пожелания в проект.
На территории жилого комплекса функционируют игровые зоны, площадки для активных видов спорта, а также тихие зоны для отдыха, йоги, пилатеса, с беседками и шезлонгами. В окрестностях ЖК WEST GARDEN расположены более 1000 гектаров парков и природных заказников: долина реки Сетунь, Мосфильмовский пруд, Ботанический сад МГУ, Парк Победы на Поклонной горе и Воробьевы горы — все в шаговой доступности для прогулок и отдыха.
Подземный паркинг и огороженная территория гарантируют безопасность и комфорт. Корпус 2Д имеет очень удобный спуск на паркинг на -2 этаже, а также выход сразу на улицу в парк на -1 этаже, что будет очень удобно для тех, у кого есть домашний питомец! Есть обустроенная площадка для собак.
На прилегающей территории комплекса строится детский сад на 150 детей и школа на 550 учеников, выделен участок под строительство крупного медицинского центра и спортивного комплекса. Ведется проектирование пешеходного моста вдоль р.Сетунь к станции м.Минская.
Мы гарантируем безопасную сделку и юридическую поддержку нашим Клиентам. Поможем одобрить ипотеку со сниженной ставкой.
О квартире
Общая площадь
80.6 м²
Жилая площадь
40 м²
Площадь кухни
15 м²
Высота потолков
3.7 м
Этаж
1
Расположение квартиры
угловая
Окна выходят
На улицу
Раздельных санузлов
1
Совмещенных санузлов
1
Ремонт
Без отделки
О доме
Год постройки
2023
Этажность
13
Материал постройки
Монолитный
Материал перекрытий
Ж/б плиты
Отопление
Центральное
Пассажирских лифтов
1
Грузовых лифтов
1
Парковка
Подземная
Огороженная территория
Да
Расположение
Россия, Москва, проспект Генерала Дорохова, 39к2Д
Ипотечный калькулятор
Заполните 1 анкету — получите предложения от десятков банков на специальных условиях
Программа ипотеки
Стоимость жилья, ₽
Первый взнос, ₽
Срок кредита
от 5.75%
Ставка
от 319 587 ₽
Платеж в месяц
Расчёт носит информационный характер и не является публичной офертой
Похожие объекты
















2-комн. квартира, 70,9 м², 17/42 эт.
Кутузовская
13 мин.






















1-комн. квартира, 86,4 м², 6/28 эт.
Парк Победы
11 мин.
Предложите свою цену
50 800 000 ₽
630 273 ₽/м²










































































































