Продается 3-комн. квартира, 69.4 м²
Россия, Москва, Снежная улица, вл22к3
Свиблово
6 мин.
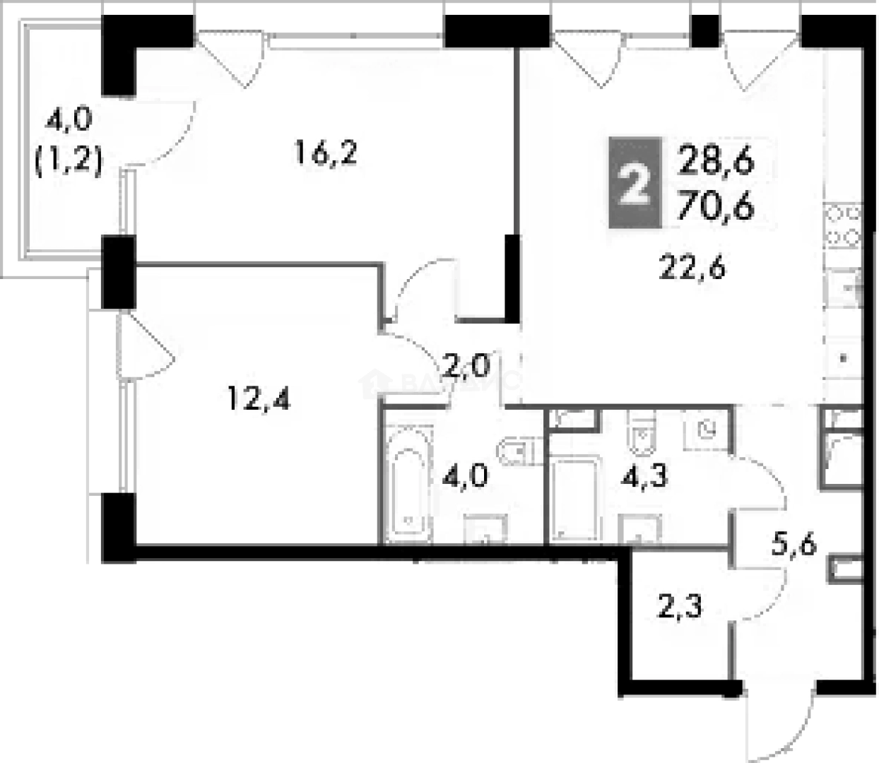
69.4 м²
Общая площадь
28.6 м²
Жилая площадь
22.6 м²
Площадь кухни
6 из 16
Этаж
Описание
В клубном доме «The Lake» предложено множество планировочных решений европейского формата. Сдаются они без стен и с подчистовой отделкой, высотой потолков от 3,25 до 4,1 метра, увеличенными окнами, с системами «Умный дом» и «Умная квартира».
Благоустройством территории «The Lake» занималось Бюро Utro. Так полезная площадь по сути небольшого земельного участка была увеличена за счет «парящего дворика» на крыше одноэтажного строения с коммерческими помещениями. Здесь располагаются игровое пространство и зоны отдыха. Приватный внутренний двор буквально «стекает» к набережной и парку. На спуске предусмотрен деревянный настил-амфитеатр, плавный пандус и несколько смотровых балконов. В здании спроектированы ко-воркинг и детская игровая комната. Для владельцев автомобилей предусмотрен подземный паркинг.
Клубный дом «The Lake» расположен в Капустинском парке у пруда. Всего в 15 минутах пешком располагаются магазины, салоны красоты, кафе, рестораны, детские сады, школы и медицинские учреждения. Метро «Свиблово» находится всего в 5 минутах пешком.
О квартире
Общая площадь
69.4 м²
Жилая площадь
28.6 м²
Площадь кухни
22.6 м²
Площадь комнат
16.2+12.4 м²
Высота потолков
3.25 м
Подъезд
1
Этаж
6
Окна выходят
На улицу
О доме
Год постройки
2024
Этажность
16
Количество подъездов
2
Материал постройки
Монолитный
Материал перекрытий
Монолитные
Отопление
Центральное
Пассажирских лифтов
1
Грузовых лифтов
1
Парковка
Подземная
Расположение
Россия, Москва, Снежная улица, вл22к3
Свиблово
6 мин.
Ботанический сад
11 мин.
Ботанический сад
13 мин.
Ростокино
22 мин.
Бабушкинская
28 мин.
Отрадное
4 мин.
Владыкино
5 мин.
ВДНХ
5 мин.
Ипотечный калькулятор
Заполните 1 анкету — получите предложения от десятков банков на специальных условиях
Программа ипотеки
Стоимость жилья, ₽
Первый взнос, ₽
Срок кредита
от 5.75%
Ставка
от 217 789 ₽
Платеж в месяц
Расчёт носит информационный характер и не является публичной офертой
Похожие объекты
Консультант по новостройкам
34 618 710 ₽
498 829 ₽/м²




















