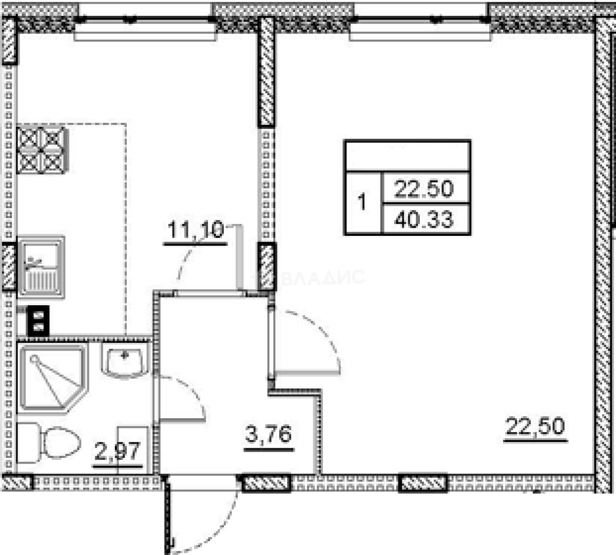
Продается 1-комн. квартира, 40.33 м²
Россия, Ленинградская область, Гатчинский муниципальный округ, деревня Малое Верево, улица Кутышева, 9к2
40.33 м²
Общая площадь
22.5 м²
Жилая площадь
11.1 м²
Площадь кухни
1 из 4
Этаж
Описание
О квартире
Общая площадь
40.33 м²
Жилая площадь
22.5 м²
Площадь кухни
11.1 м²
Площадь комнат
22.5 м²
Высота потолков
3.36 м
Подъезд
7
Этаж
1
Окна выходят
На улицу
О доме
Год постройки
2022
Этажность
4
Материал постройки
Кирпично-монолитный
Материал перекрытий
Монолитные
Отопление
Центральное
Парковка
Наземная
Расположение
Россия, Ленинградская область, Гатчинский муниципальный округ, деревня Малое Верево, улица Кутышева, 9к2
Ипотечный калькулятор
Заполните 1 анкету — получите предложения от десятков банков на специальных условиях
Программа ипотеки
Стоимость жилья, ₽
Первый взнос, ₽
Срок кредита
от 5.75%
Ставка
от 34 737 ₽
Платеж в месяц
Расчёт носит информационный характер и не является публичной офертой
Похожие объекты





1-комн. квартира, 37,2 м², 1/4 эт.





1-комн. квартира, 37,2 м², 1/4 эт.





1-комн. квартира, 37,2 м², 1/4 эт.





1-комн. квартира, 36,4 м², 1/4 эт.
Консультант по новостройкам
5 521 600 ₽
136 911 ₽/м²










