Продается 2-комн. квартира, 37.91 м²
Россия, Ленинградская область, Ломоносовский район, Аннинское городское поселение, городской посёлок Новоселье, жилой комплекс Ньюпитер
Проспект Ветеранов
15 мин.
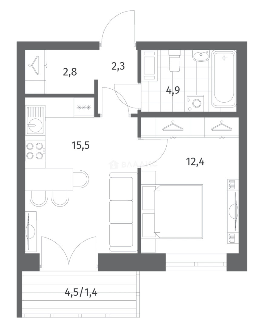
37.91 м²
Общая площадь
12.4 м²
Жилая площадь
15.5 м²
Площадь кухни
4 из 12
Этаж
Описание
Квартиры имеют большой метраж и высокие потолки, оснащены скрытыми инженерными коммуникациями, просторными гостиными, спальнями и кухнями. В некоторых из них предусмотрены террасы. По желанию квартиры на первом этаже можно сделать двухуровневыми. Проведено теплое остекление лоджий и балконов.
Внутренние дворы закрыты и свободны от автомобилей: доступ в них возможен только через парадные. Придомовая территория благоустроена зелеными зонами, деревьями и кустарниками, местами для отдыха и прогулок, велосипедными дорожками, скамейками и тематическими детскими площадками. В составе объекта предусмотрены многоуровневые и открытые паркинги, офисные центры, 6 детских садов, 2 школы и фитнес-клуб с бассейном.
ЖК расположен в Ломоносовском районе с развитой сетью автомагистралей и шоссе. В транспортной доступности находятся Финский залив, достопримечательности Стрельны, Петергофа и Ораниенбаума. Квартал окружен лесопарками, реками и озерами. Выезд на КАД расположен в 3 минутах транспортом, метро «Пр. Ветеранов» — в 15 минутах транспортом.
О квартире
Общая площадь
37.91 м²
Жилая площадь
12.4 м²
Площадь кухни
15.5 м²
Площадь комнат
12.4 м²
Высота потолков
2.74 м
Этаж
4
Окна выходят
На улицу
О доме
Год постройки
2026
Этажность
12
Материал постройки
Кирпично-монолитный
Парковка
Многоуровневая
Расположение
Россия, Ленинградская область, Ломоносовский район, Аннинское городское поселение, городской посёлок Новоселье, жилой комплекс Ньюпитер
Проспект Ветеранов
15 мин.
Ленинский проспект
17 мин.
Автово
18 мин.
Кировский завод
20 мин.
Московская
22 мин.
Парк Победы
23 мин.
Нарвская
23 мин.
Электросила
24 мин.
Ипотечный калькулятор
Заполните 1 анкету — получите предложения от десятков банков на специальных условиях
Программа ипотеки
Стоимость жилья, ₽
Первый взнос, ₽
Срок кредита
от 5.75%
Ставка
от 55 198 ₽
Платеж в месяц
Расчёт носит информационный характер и не является публичной офертой
Похожие объекты




2-комн. квартира, 34,5 м², 7/12 эт.
Проспект Ветеранов
18 мин.




2-комн. квартира, 34,5 м², 6/12 эт.
Проспект Ветеранов
18 мин.




2-комн. квартира, 39 м², 1/12 эт.
Проспект Ветеранов
18 мин.




2-комн. квартира, 39 м², 1/12 эт.
Проспект Ветеранов
18 мин.
Консультант по новостройкам
8 774 000 ₽
231 443 ₽/м²
















