Купить однокомнатную квартиру у метро Некрасовка в Люберцах
224 объявления















1-комн. квартира·31,6 м²·3/19 эт.
Некрасовка
29 мин.
Очень уютная квартира по отличной цене!!!!! - Комфортная планировка с большой кухней и лоджией - В квартире сделан хороший ремонт, делали для себя с большой любовью) - Всё готово для проживания, удобная система хранения - Кухня с хорошей современной техникой, всё новое - Окна во двор, южная сторона Шикарная инфраструктура, всё необходимое в шаго

















1-комн. квартира·47 м²·5/17 эт.
Некрасовка
7 мин.
Продаётся уютная однокомнатная квартира в посёлке городского типа Томилино, городском округе Люберцы. Это идеальный выбор для тех, кто ценит комфорт и доступность. Квартира расположена на 5 этаже 17-этажного панельного дома, построенного в 2005 году. Общая площадь квартиры составляет 47 кв. м, вместе с лоджией, 17,9 кв. м — жилая площадь, 11,8 кв













1-комн. квартира·27 м²·6/25 эт.
Некрасовка
4 мин.
КВАРТИРА С ОКНАМИ НА ВОСТОК и ВИДОМ НА ЛЕС В НОВОМ ЖК 2024 года по цене квартиры без отделки ЗАЕЗЖАЙ И ЖИВИ Разумный ТОРГ реальному покупателю. ПОЛНАЯ СТОИМОСТЬ СДЕЛКИ В ДОГОВОРЕ! Все документы уже проверены банком. ПОДХОДИТ ПОД ЛЮБОЙ ВИД РАСЧЁТА ЧИСТАЯ, СВЕТЛАЯ И УХОЖЕННАЯ КВАРТИРА ВОЗДЕ МЦД без проблем с продажей. Мебель и техника остаётся.

























1-комн. квартира·33 м²·10/17 эт.
Некрасовка
22 мин.
Отличное предложение в Люберцах!!!! Уютные апартаменты в новом жилом комплексе!!!!!! ВОЗМОЖНА ВРЕМЕННАЯ РЕГИСТРАЦИЯ НА 5 лет с дальнейшим продлением!!!! Продаётся однокомнатная квартира площадью 33 кв. м в ЖК «Самолёт» по адресу: Люберецкий район, микрорайон Зенино, Некрасовский проезд, 13. Квартира расположена на 10-м этаже 17-этажного монолитн









1-комн. квартира·33,4 м²·7/17 эт.
Некрасовка
30 мин.
Уникальное предложение В КВАРТИРЕ НИКТО НЕ ЖИЛ НЕ СДАВАЛАСЬ Квартира расположена на 7 этаже 17-этажного монолитного дома, построенного в 2023 году. Общая площадь — 33,4 м. Евроремонт, высокие потолки и просторные комнаты создают ощущение уюта и комфорта. Отличное расположение квартиры позволит вам быстро добраться до основных транспортных маг





1-комн. квартира·45 м²·4/25 эт.
Некрасовка
4 мин.
Уникальное предложение на рынке недвижимости: просторная и уютная квартира в Люберцах, готовая к заселению! Продаётся однокомнатная квартира площадью 45 кв. м на 4 этаже 25-этажного кирпично-монолитного дома, построенного в 2024 году. Квартира расположена на Рождественской улице, 10 — в районе с развитой инфраструктурой и хорошей транспортной дост







1-комн. квартира·32,8 м²·9/17 эт.
Некрасовка
23 мин.
О КВАРТИРЕ Квартира полностью готова к заселению. Общая площадь квартиры 32,8 кв.м. Жилая площадь 15,5 кв.м. Площадь кухни 9 кв.м. Санузел совмещенный. Вся мебель остается покупателю. Окна выходят на улицу, поэтому в квартире всегда светло. Есть балкон. О ДОМЕ Монолитный дом, 2018 года постройки. Уютный двор с ландшафтным дизайном, хорошо осна








1-комн. квартира·31 м²·3/3 эт.
Некрасовка
9 мин.
Продаётся однокомнатная квартира в посёлке городского типа Красково, по адресу: улица Карла Маркса, 119/3. Квартира расположена на третьем этаже трёхэтажного кирпичного дома 1959 года постройки. Общая площадь квартиры составляет 31 квадратный метр, в квартире старый ремонт. До метро Красково можно дойти пешком за 21 минуту. Рядом есть вся необх







1-комн. квартира·31,6 м²·2/5 эт.
Некрасовка
6 мин.
Продаётся уютная однокомнатная квартира в посёлке городского типа Томилино, городском округе Люберцы, по адресу: улица Гоголя, 30. Квартира расположена на улице с развитой инфраструктурой и удобным транспортным сообщением. Это идеальный выбор для тех, кто ценит комфорт и доступность. Квартира общей площадью 31,6 кв. м, с жилой площадью 17,4 кв. м
















1-комн. квартира·41,7 м²·17/25 эт.
Некрасовка
18 мин.
Продается уютная квартира в свежем доме. В квартире сделан качественный ремонт, новым собственникам останется в подарок встроенный шкаф, кухонный гарнитур со встроенной техникой. Отличное месторасположение, где все находится в шаговой доступности. Магазины, аптеки, садики, школы, торговые центры. Хорошая транспортная развязка. Идеальный вариант





















1-комн. квартира·32,3 м²·19/25 эт.
Некрасовка
4 мин.
ЖК "1-й Лермонтовский" - комфорт класс плюс , ДОМ ВОЗЛЕ ЛЕСНОГО МАССИВА. Высоколиквидная просторная 1 ком. квартира 32,3 м2 (36,1 м2 с лоджией) с новым качественным ремонтом (делали для себя), в современном монолитном доме постройки 2023 года.. Идеальный вариант как для проживания, так и для инвестиций. СВОБОДНАЯ ПРОДАЖА , ОДИН ВЗРОСЛЫЙ СОБСТВЕНН












1-комн. квартира·52,9 м²·2/17 эт.
Некрасовка
28 мин.
Жилой квартал «Люберцы» – один из самых масштабных жилых комплексов в Подмосковье, который включает в себя порядка 50 корпусов. Строительство ведется по кирпично-монолитной технологии. В оформлении фасадов применяется облицовочный кирпич природных оттенков. Из окон некоторых домов открываются виды на озеро Черное. В комплексе представлены квартиры












1-комн. квартира·50,4 м²·17/17 эт.
Некрасовка
28 мин.
Жилой квартал «Люберцы» – один из самых масштабных жилых комплексов в Подмосковье, который включает в себя порядка 50 корпусов. Строительство ведется по кирпично-монолитной технологии. В оформлении фасадов применяется облицовочный кирпич природных оттенков. Из окон некоторых домов открываются виды на озеро Черное. В комплексе представлены квартиры












1-комн. квартира·50,5 м²·10/17 эт.
Некрасовка
28 мин.
Жилой квартал «Люберцы» – один из самых масштабных жилых комплексов в Подмосковье, который включает в себя порядка 50 корпусов. Строительство ведется по кирпично-монолитной технологии. В оформлении фасадов применяется облицовочный кирпич природных оттенков. Из окон некоторых домов открываются виды на озеро Черное. В комплексе представлены квартиры












1-комн. квартира·51,4 м²·2/17 эт.
Некрасовка
28 мин.
Жилой квартал «Люберцы» – один из самых масштабных жилых комплексов в Подмосковье, который включает в себя порядка 50 корпусов. Строительство ведется по кирпично-монолитной технологии. В оформлении фасадов применяется облицовочный кирпич природных оттенков. Из окон некоторых домов открываются виды на озеро Черное. В комплексе представлены квартиры












1-комн. квартира·52,7 м²·17/17 эт.
Некрасовка
28 мин.
Жилой квартал «Люберцы» – один из самых масштабных жилых комплексов в Подмосковье, который включает в себя порядка 50 корпусов. Строительство ведется по кирпично-монолитной технологии. В оформлении фасадов применяется облицовочный кирпич природных оттенков. Из окон некоторых домов открываются виды на озеро Черное. В комплексе представлены квартиры












1-комн. квартира·52,3 м²·13/17 эт.
Некрасовка
28 мин.
Жилой квартал «Люберцы» – один из самых масштабных жилых комплексов в Подмосковье, который включает в себя порядка 50 корпусов. Строительство ведется по кирпично-монолитной технологии. В оформлении фасадов применяется облицовочный кирпич природных оттенков. Из окон некоторых домов открываются виды на озеро Черное. В комплексе представлены квартиры












1-комн. квартира·52,1 м²·6/17 эт.
Некрасовка
28 мин.
Жилой квартал «Люберцы» – один из самых масштабных жилых комплексов в Подмосковье, который включает в себя порядка 50 корпусов. Строительство ведется по кирпично-монолитной технологии. В оформлении фасадов применяется облицовочный кирпич природных оттенков. Из окон некоторых домов открываются виды на озеро Черное. В комплексе представлены квартиры












1-комн. квартира·33,0 м²·6/7 эт.
Некрасовка
5 мин.
Жилой комплекс состоит из 2 корпусов переменной этажности — от 4 до 7 этажей. Здания возведены по кирпично-монолитной технологии, фасады выполнены в минималистичном стиле. В подъездах предусмотрена безбарьерная среда, спроектированы зоны для хранения колясок и велосипедов, а также комнаты охраны. В комплексе предусмотрено множество различных плани












1-комн. квартира·38,5 м²·2/7 эт.
Некрасовка
5 мин.
Жилой комплекс состоит из 2 корпусов переменной этажности — от 4 до 7 этажей. Здания возведены по кирпично-монолитной технологии, фасады выполнены в минималистичном стиле. В подъездах предусмотрена безбарьерная среда, спроектированы зоны для хранения колясок и велосипедов, а также комнаты охраны. В комплексе предусмотрено множество различных плани












1-комн. квартира·32,5 м²·5/7 эт.
Некрасовка
5 мин.
Жилой комплекс состоит из 2 корпусов переменной этажности — от 4 до 7 этажей. Здания возведены по кирпично-монолитной технологии, фасады выполнены в минималистичном стиле. В подъездах предусмотрена безбарьерная среда, спроектированы зоны для хранения колясок и велосипедов, а также комнаты охраны. В комплексе предусмотрено множество различных плани












1-комн. квартира·43,7 м²·2/7 эт.
Некрасовка
5 мин.
Жилой комплекс состоит из 2 корпусов переменной этажности — от 4 до 7 этажей. Здания возведены по кирпично-монолитной технологии, фасады выполнены в минималистичном стиле. В подъездах предусмотрена безбарьерная среда, спроектированы зоны для хранения колясок и велосипедов, а также комнаты охраны. В комплексе предусмотрено множество различных плани












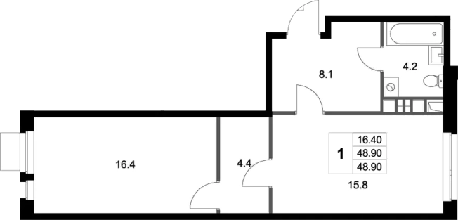
1-комн. квартира·48,9 м²·3/7 эт.
Некрасовка
5 мин.
Жилой комплекс состоит из 2 корпусов переменной этажности — от 4 до 7 этажей. Здания возведены по кирпично-монолитной технологии, фасады выполнены в минималистичном стиле. В подъездах предусмотрена безбарьерная среда, спроектированы зоны для хранения колясок и велосипедов, а также комнаты охраны. В комплексе предусмотрено множество различных плани












1-комн. квартира·34,9 м²·3/7 эт.
Некрасовка
5 мин.
Жилой комплекс состоит из 2 корпусов переменной этажности — от 4 до 7 этажей. Здания возведены по кирпично-монолитной технологии, фасады выполнены в минималистичном стиле. В подъездах предусмотрена безбарьерная среда, спроектированы зоны для хранения колясок и велосипедов, а также комнаты охраны. В комплексе предусмотрено множество различных плани












1-комн. квартира·39,6 м²·3/7 эт.
Некрасовка
5 мин.
Жилой комплекс состоит из 2 корпусов переменной этажности — от 4 до 7 этажей. Здания возведены по кирпично-монолитной технологии, фасады выполнены в минималистичном стиле. В подъездах предусмотрена безбарьерная среда, спроектированы зоны для хранения колясок и велосипедов, а также комнаты охраны. В комплексе предусмотрено множество различных плани












1-комн. квартира·33,2 м²·6/7 эт.
Некрасовка
5 мин.
Жилой комплекс состоит из 2 корпусов переменной этажности — от 4 до 7 этажей. Здания возведены по кирпично-монолитной технологии, фасады выполнены в минималистичном стиле. В подъездах предусмотрена безбарьерная среда, спроектированы зоны для хранения колясок и велосипедов, а также комнаты охраны. В комплексе предусмотрено множество различных плани













1-комн. квартира·35,9 м²·4/8 эт.
Некрасовка
9 мин.
Жилой комплекс состоит из 5 кирпично-монолитных корпусов высотой 8 этажей. Элегантные, визуально легкие фасады с продуманными архитектурными элементами, дополнены уютными лоджиями и широкими окнами. Каждый корпус обладает уникальным стилем, благодаря декоративным элементам и узорам. В жилом комплексе создана безбарьерная среда — входы в подъезды ра













1-комн. квартира·35,9 м²·5/8 эт.
Некрасовка
9 мин.
Жилой комплекс состоит из 5 кирпично-монолитных корпусов высотой 8 этажей. Элегантные, визуально легкие фасады с продуманными архитектурными элементами, дополнены уютными лоджиями и широкими окнами. Каждый корпус обладает уникальным стилем, благодаря декоративным элементам и узорам. В жилом комплексе создана безбарьерная среда — входы в подъезды ра













1-комн. квартира·35,9 м²·3/8 эт.
Некрасовка
9 мин.
Жилой комплекс состоит из 5 кирпично-монолитных корпусов высотой 8 этажей. Элегантные, визуально легкие фасады с продуманными архитектурными элементами, дополнены уютными лоджиями и широкими окнами. Каждый корпус обладает уникальным стилем, благодаря декоративным элементам и узорам. В жилом комплексе создана безбарьерная среда — входы в подъезды ра













1-комн. квартира·32,7 м²·6/8 эт.
Некрасовка
9 мин.
Жилой комплекс состоит из 5 кирпично-монолитных корпусов высотой 8 этажей. Элегантные, визуально легкие фасады с продуманными архитектурными элементами, дополнены уютными лоджиями и широкими окнами. Каждый корпус обладает уникальным стилем, благодаря декоративным элементам и узорам. В жилом комплексе создана безбарьерная среда — входы в подъезды ра













1-комн. квартира·32,7 м²·3/8 эт.
Некрасовка
9 мин.
Жилой комплекс состоит из 5 кирпично-монолитных корпусов высотой 8 этажей. Элегантные, визуально легкие фасады с продуманными архитектурными элементами, дополнены уютными лоджиями и широкими окнами. Каждый корпус обладает уникальным стилем, благодаря декоративным элементам и узорам. В жилом комплексе создана безбарьерная среда — входы в подъезды ра













1-комн. квартира·33 м²·3/8 эт.
Некрасовка
9 мин.
Жилой комплекс состоит из 5 кирпично-монолитных корпусов высотой 8 этажей. Элегантные, визуально легкие фасады с продуманными архитектурными элементами, дополнены уютными лоджиями и широкими окнами. Каждый корпус обладает уникальным стилем, благодаря декоративным элементам и узорам. В жилом комплексе создана безбарьерная среда — входы в подъезды ра


























1-комн. квартира·32,7 м²·1/8 эт.
Некрасовка
9 мин.
Жилой комплекс состоит из 5 кирпично-монолитных корпусов высотой 8 этажей. Элегантные, визуально легкие фасады с продуманными архитектурными элементами, дополнены уютными лоджиями и широкими окнами. Каждый корпус обладает уникальным стилем, благодаря декоративным элементам и узорам. В жилом комплексе создана безбарьерная среда — входы в подъезды ра













1-комн. квартира·32,5 м²·1/8 эт.
Некрасовка
9 мин.
Жилой комплекс состоит из 5 кирпично-монолитных корпусов высотой 8 этажей. Элегантные, визуально легкие фасады с продуманными архитектурными элементами, дополнены уютными лоджиями и широкими окнами. Каждый корпус обладает уникальным стилем, благодаря декоративным элементам и узорам. В жилом комплексе создана безбарьерная среда — входы в подъезды ра













1-комн. квартира·32,5 м²·1/8 эт.
Некрасовка
9 мин.
Жилой комплекс состоит из 5 кирпично-монолитных корпусов высотой 8 этажей. Элегантные, визуально легкие фасады с продуманными архитектурными элементами, дополнены уютными лоджиями и широкими окнами. Каждый корпус обладает уникальным стилем, благодаря декоративным элементам и узорам. В жилом комплексе создана безбарьерная среда — входы в подъезды ра













1-комн. квартира·33 м²·6/8 эт.
Некрасовка
9 мин.
Жилой комплекс состоит из 5 кирпично-монолитных корпусов высотой 8 этажей. Элегантные, визуально легкие фасады с продуманными архитектурными элементами, дополнены уютными лоджиями и широкими окнами. Каждый корпус обладает уникальным стилем, благодаря декоративным элементам и узорам. В жилом комплексе создана безбарьерная среда — входы в подъезды ра













1-комн. квартира·33 м²·8/8 эт.
Некрасовка
9 мин.
Жилой комплекс состоит из 5 кирпично-монолитных корпусов высотой 8 этажей. Элегантные, визуально легкие фасады с продуманными архитектурными элементами, дополнены уютными лоджиями и широкими окнами. Каждый корпус обладает уникальным стилем, благодаря декоративным элементам и узорам. В жилом комплексе создана безбарьерная среда — входы в подъезды ра


























1-комн. квартира·33 м²·2/8 эт.
Некрасовка
9 мин.
Жилой комплекс состоит из 5 кирпично-монолитных корпусов высотой 8 этажей. Элегантные, визуально легкие фасады с продуманными архитектурными элементами, дополнены уютными лоджиями и широкими окнами. Каждый корпус обладает уникальным стилем, благодаря декоративным элементам и узорам. В жилом комплексе создана безбарьерная среда — входы в подъезды ра













1-комн. квартира·33 м²·1/8 эт.
Некрасовка
9 мин.
Жилой комплекс состоит из 5 кирпично-монолитных корпусов высотой 8 этажей. Элегантные, визуально легкие фасады с продуманными архитектурными элементами, дополнены уютными лоджиями и широкими окнами. Каждый корпус обладает уникальным стилем, благодаря декоративным элементам и узорам. В жилом комплексе создана безбарьерная среда — входы в подъезды ра













1-комн. квартира·35,9 м²·5/8 эт.
Некрасовка
9 мин.
Жилой комплекс состоит из 5 кирпично-монолитных корпусов высотой 8 этажей. Элегантные, визуально легкие фасады с продуманными архитектурными элементами, дополнены уютными лоджиями и широкими окнами. Каждый корпус обладает уникальным стилем, благодаря декоративным элементам и узорам. В жилом комплексе создана безбарьерная среда — входы в подъезды ра