Купить дом на улице Актёрская в районе Ленинский в Магнитогорске
Россия, Челябинская область, Магнитогорск, Актёрская улица
122 м²
Площадь дома
8 сот
Площадь участка
Кирпичный
Материал постройки
1
Этажей
Описание
‼️ОТЛИЧНОЕ ПРЕДЛОЖЕНИЕ‼️
⚠️только один дом.⚠️
ДОМ В ПРЕДЧИСТОВОЙ отделке 125 м на земельном участке 8 соток 🔥🔥🔥 в современном поселке «Династия»!
Подходит под программы ипотечного кредитования:
- ДЛЯ СЕМЕЙ С ДЕТЬМИ от 6 %
- ИПОТЕКА ДЛЯ IT-СПЕЦИАЛИСТОВ под 5%
-Не забываем про льготу по ипотеке от ММК!
Продажа напрямую от застройщика! Земля в собственности!
МЕСТОПОЛОЖЕНИЕ:
Пос. Династия молодой, но быстро застраивающийся поселок, и уже сейчас обладает всей необходимой инфраструктурой.
Асфальтированные дороги, освещение, в 5 минутах находятся Магазин "Монетка",
Детская площадка, остановка маршрутного такси №46 и 50 (в зимний период).
ОТСУТСТВИЕ поселковских сборов!
КОММУНИКАЦИИ : Газ, вода и электроэнергия (7,5 кВт) центральные, плюс есть скважина с водой для полива и автомойки.
Канализация - выгребная яма на 8 кубов.
ЗАВЕДЕНЫ В ДОМ!
КОНСТРУКТИВ:
-Фасадные стены: СКБ (30%) 400 мм + утеплитель ППС 100 мм + декоративная штукатурка «Короед».
-Внутренние перегородки: СКБ (30%) 200 мм и несущие перегородки 400 мм.
-Фундамент: монолитный ростверк на бурках диаметром 400 мм с шагом 2 м. и глубиной 2,5 м. После обратной засыпки залита монолитная плита 150 мм.
-Окна «Exprof»: тройной стеклопакет, профиль 70 мм, энергосберегающий стеклопакет 40 мм. -Кровля мансардная: стропила доска 200/50 мм, ветро-гидроизоляционная пленка, минераловатный утеплитель 200 мм, пароизоляция, металлочерепица «Монтерей», подшива (в гараже крыша не утеплена).
ОТДЕЛКА:
разводка электропроводки;
разводка водоотведения и водоснабжения;
установка системы «Теплый пол» (водный);
залита ровная бетонная стяжка на полу;
оштукатуренные стены;
установлены подоконники и откосы;
установлена качественная входная дверь с терморазрывом.
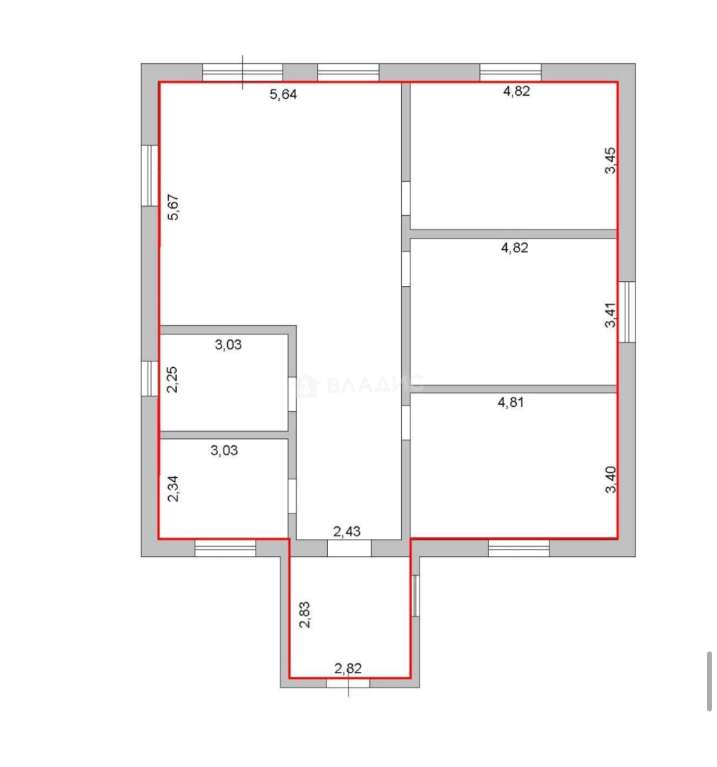
ПЛАНИРОВКА:
- спальня :16кв. м
- спальня: 16 кв.м
- спальня: 16 кв.м
- кухня-гостиная: 36 кв.м
- сан. узел: 9 кв.м
- ванная комната : 10 кв.м
- коридор: 10 кв.м
- тамбур: 12,5 кв.м
Звоните, отвечу на все интересующие вопросы! Окажу любую помощь в приобретении, организую экскурсию в удобное для Вас время! А так же посодействую в продаже Вашего имущества по выгодной цене.
Агентство недвижимости «АВРОРА» г. Магнитогорск, пр. Ленина, д. 154
Отзывы о нас, Вы можете посмотреть в 2Гис.
Все, продаваемые нами объекты недвижимости, проходят обязательную полную юридическую экспертизу!
С уважением, Лякуткина Анна
О доме
Год постройки
2024
Этажей в доме
1
Общая площадь
122 м²
Жилая площадь
48 м²
Площадь кухни
30 м²
Площадь комнат
16+16+16 м²
Материал постройки
Кирпичный
Материал перекрытий
Деревянные
Материал кровли
Профнастил
Отопление
Индивидуальный котел
Об участке
Площадь участка
8 сот.
Статус участка
Индивидуальное жилищное строительство
Электричество
Есть
Газ
Есть
Водоснабжение
Есть
Канализация
Есть
Расположение
Россия, Челябинская область, Магнитогорск, Актёрская улица
Ипотечный калькулятор
Заполните 1 анкету — получите предложения от десятков банков на специальных условиях
Программа ипотеки
Стоимость жилья, ₽
Первый взнос, ₽
Срок кредита
от 5.75%
Ставка
от 49 071 ₽
Платеж в месяц
Расчёт носит информационный характер и не является публичной офертой
Похожие объекты
Предложите свою цену
7 800 000 ₽
63 934 ₽/м²



























































































