Продается 4-комн. квартира, 109.5 м²
Россия, Московская область, Ленинский городской округ, деревня Сапроново, ЖК 1-й Донской, 2
Домодедовская
14 мин.
109.5 м²
Общая площадь
69.9 м²
Жилая площадь
15.7 м²
Площадь кухни
15 из 24
Этаж
Описание
Проектом предусмотрен большой выбор планировок: от 1-комнатных до 4х-комнатных, среди которых есть квартиры, выходящие на 2-3 стороны света. Также имеются просторные застекленные лоджии.
Концепция благоустройства территории разработана известным архитектурным бюро Mont Design. На территории квартала предусмотрены муниципальные детские сады и школа. Первые этажи зданий отведены под коммерческие помещения. Дом оборудован автоматизированной системой «Умный Дом».
В пешей доступности от жилого комплекса находится набережная реки Купелинки, Ермолинский лесопарк и Жуковский парк.
О квартире
Общая площадь
109.5 м²
Жилая площадь
69.9 м²
Площадь кухни
15.7 м²
Площадь комнат
18.8+13.8+17+20.3 м²
Высота потолков
2.84 м
Подъезд
2
Этаж
15
Окна выходят
На улицу
Ремонт
White box
Балкон
Есть
О доме
Год постройки
2025
Этажность
24
Количество подъездов
6
Материал постройки
Панельный
Материал перекрытий
Ж/б плиты
Отопление
Центральное
Пассажирских лифтов
1
Грузовых лифтов
1
Парковка
Наземная
Расположение
Россия, Московская область, Ленинский городской округ, деревня Сапроново, ЖК 1-й Донской, 2
Домодедовская
14 мин.
Зябликово
15 мин.
Орехово
15 мин.
Красногвардейская
15 мин.
Аннино
15 мин.
Ипотечный калькулятор
Заполните 1 анкету — получите предложения от десятков банков на специальных условиях
Программа ипотеки
Стоимость жилья, ₽
Первый взнос, ₽
Срок кредита
от 5.75%
Ставка
от 142 459 ₽
Платеж в месяц
Расчёт носит информационный характер и не является публичной офертой
Похожие объекты













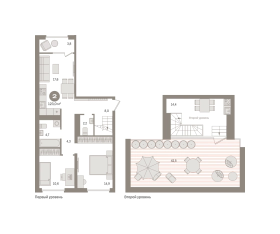
2-комн. квартира, 123 м², 8/14 эт.
Домодедовская
13 мин.













2-комн. квартира, 123 м², 9/14 эт.
Домодедовская
13 мин.







4-комн. квартира, 109,5 м², 17/24 эт.
Домодедовская
14 мин.







4-комн. квартира, 109,5 м², 18/24 эт.
Домодедовская
14 мин.
Консультант по новостройкам
22 644 600 ₽
206 800 ₽/м²








