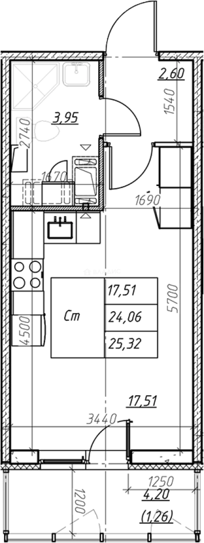
Продается Студия, 24.06 м²
Россия, Ленинградская область, Всеволожский район, Мурино, Оборонная улица, 33к2
Девяткино
14 мин.
24.06 м²
Общая площадь
17.51 м²
Жилая площадь
14 из 22
Этаж
Описание
В жилом комплексе предложено множество планировочных решений: в наличии квартиры, как классического типа, так и европланировки. Предусмотрены просторные кухни-гостиные, гардеробные и кладовые, большие застекленные лоджии и балконы. Из окон квартир открываются завораживающие виды на воду и зеленые просторы.
Двор, свободный от автомобилей, обеспечен игровыми площадками для детей разных возрастов, а также комплексом с тренажерами и спортивными снарядами для занятий уличной гимнастикой и физкультурой. На огороженной территории оборудованы места для отдыха, запланирован современный ландшафтный дизайн. Рядом с домом построен отдельно стоящий многоуровневый паркинг. На первых этажах комплекса размещены коммерческие помещения.
ЖК расположен на живописном берегу реки Охта в окружении многолетних лиственных деревьев. В 50 метрах от комплекса находится набережная и территория для прогулок, в пешей доступности есть магазины, аптеки, медицинские центры, спортклуб, зоомагазины, автосервисы и автомойки, детский сад и метро «Девяткино». До знаменитого горнолыжного курорта и базы отдыха «Охта Парк» — менее 15 км.
О квартире
Общая площадь
24.06 м²
Жилая площадь
17.51 м²
Площадь комнат
17.51 м²
Высота потолков
2.56 м
Этаж
14
Окна выходят
На улицу
О доме
Год постройки
2024
Этажность
22
Материал постройки
Монолитный
Материал перекрытий
Ж/б плиты
Отопление
Центральное
Парковка
Наземная
Расположение
Россия, Ленинградская область, Всеволожский район, Мурино, Оборонная улица, 33к2
Девяткино
14 мин.
Гражданский проспект
30 мин.
Академическая
7 мин.
Политехническая
9 мин.
Проспект Просвещения
11 мин.
Площадь Мужества
11 мин.
Парнас
11 мин.
Озерки
12 мин.
Ипотечный калькулятор
Заполните 1 анкету — получите предложения от десятков банков на специальных условиях
Программа ипотеки
Стоимость жилья, ₽
Первый взнос, ₽
Срок кредита
от 5.75%
Ставка
от 27 178 ₽
Платеж в месяц
Расчёт носит информационный характер и не является публичной офертой
Похожие объекты







Студия, 26,6 м², 5/16 эт.






Студия, 26,6 м², 16/16 эт.







Студия, 26,8 м², 3/16 эт.





Студия, 22,5 м², 2/18 эт.
Девяткино
30 мин.
Консультант по новостройкам
4 319 973 ₽
179 550 ₽/м²






