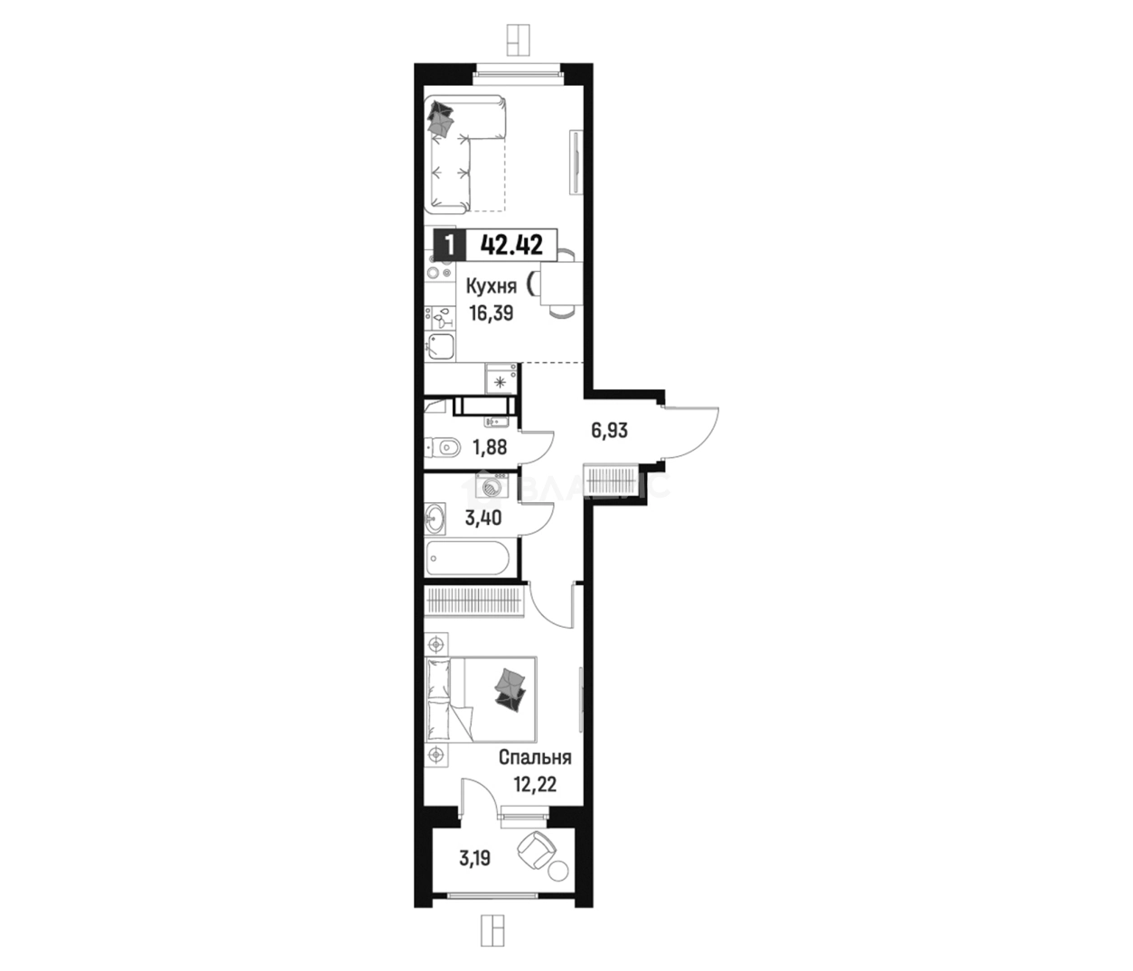
Продается 2-комн. квартира, 40.82 м²
Россия, Ленинградская область, Всеволожский район, Мурино
Девяткино
30 мин.
40.82 м²
Общая площадь
12.22 м²
Жилая площадь
16.39 м²
Площадь кухни
3 из 18
Этаж
Описание
В жилом комплексе предложено множество планировочных решений: в наличии квартиры, как классического типа, так и европланировки. Сдаются они с чистовой отделкой, террасами, французскими балконами и высотой потолков до 3 метров.
В проекте предусмотрена система видеонаблюдения. Во дворе расположены детские и спортивные площадки, рядом с комплексом есть футбольное поле. Для владельцев автомобилей предусмотрен подземный паркинг.
Жилой комплекс находится в западной части Мурино. Рядом расположены продуктовые магазины, отделения почты и банков, гипермаркет «Лента», в 15 минутах транспортом находятся «МЕГА Парнас». Метро «Девяткино» находится в 20 минутах транспортом, выезд на КАД — в 5 минутах транспортом.
О квартире
Общая площадь
40.82 м²
Жилая площадь
12.22 м²
Площадь кухни
16.39 м²
Площадь комнат
12.22 м²
Высота потолков
2.73 м
Этаж
3
Окна выходят
На улицу
О доме
Год постройки
2027
Этажность
18
Материал постройки
Кирпично-монолитный
Парковка
Подземная
Расположение
Россия, Ленинградская область, Всеволожский район, Мурино
Девяткино
30 мин.
Гражданский проспект
6 мин.
Парнас
8 мин.
Проспект Просвещения
9 мин.
Академическая
10 мин.
Озерки
11 мин.
Политехническая
12 мин.
Площадь Мужества
13 мин.
Ипотечный калькулятор
Заполните 1 анкету — получите предложения от десятков банков на специальных условиях
Программа ипотеки
Стоимость жилья, ₽
Первый взнос, ₽
Срок кредита
от 5.75%
Ставка
от 50 234 ₽
Платеж в месяц
Расчёт носит информационный характер и не является публичной офертой
Похожие объекты


2-комн. квартира, 41,7 м², 7/18 эт.
Девяткино
30 мин.


2-комн. квартира, 41,7 м², 6/18 эт.
Девяткино
30 мин.



2-комн. квартира, 40,8 м², 8/18 эт.
Девяткино
30 мин.




1-комн. квартира, 41,8 м², 12/18 эт.
Девяткино
30 мин.
Консультант по новостройкам
7 984 929 ₽
195 614 ₽/м²




