Продается 2-комн. квартира, 39.6 м²
Россия, Ленинградская область, Всеволожский район, Мурино, жилой комплекс Новые Лаврики
Девяткино
4 мин.
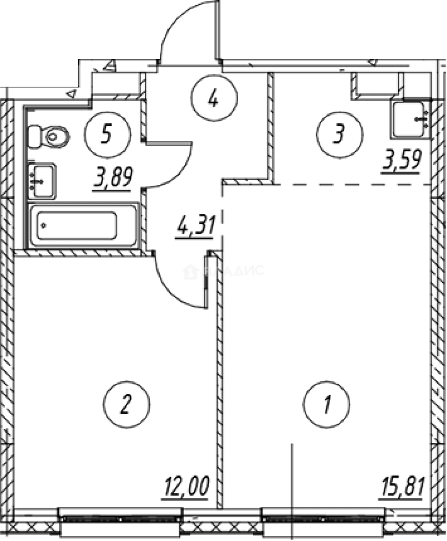
39.6 м²
Общая площадь
12 м²
Жилая площадь
19.4 м²
Площадь кухни
4 из 12
Этаж
Описание
В жилом комплексе предложено множество планировочных решений: в наличии квартиры, как классического типа, так и европланировки. Сдаются они чистовой отделкой, высотой потолков от 2,7 до 2,95 метров и остекленными балконами и лоджиями.
В проекте предусмотрена система видеонаблюдения. Во дворе расположены детские и спортивные площадки, рядом с комплексом есть футбольное поле. Для владельцев автомобилей предусмотрена стоянка.
Жилой комплекс находится в западной части Мурино. Рядом расположены продуктовые магазины, отделения почты и банков, гипермаркет «Лента», в 15 минутах транспортом находятся «МЕГА Парнас». Метро «Девяткино» находится в 20 минутах транспортом, выезд на КАД — в 5 минутах транспортом.
О квартире
Общая площадь
39.6 м²
Жилая площадь
12 м²
Площадь кухни
19.4 м²
Площадь комнат
12 м²
Высота потолков
2.7 м
Этаж
4
Окна выходят
На улицу
О доме
Год постройки
2026
Этажность
12
Материал постройки
Кирпично-монолитный
Материал перекрытий
Монолитные
Отопление
Центральное
Парковка
Наземная
Расположение
Россия, Ленинградская область, Всеволожский район, Мурино, жилой комплекс Новые Лаврики
Девяткино
4 мин.
Гражданский проспект
6 мин.
Парнас
8 мин.
Проспект Просвещения
9 мин.
Академическая
11 мин.
Озерки
11 мин.
Политехническая
12 мин.
Площадь Мужества
14 мин.
Ипотечный калькулятор
Заполните 1 анкету — получите предложения от десятков банков на специальных условиях
Программа ипотеки
Стоимость жилья, ₽
Первый взнос, ₽
Срок кредита
от 5.75%
Ставка
от 43 620 ₽
Платеж в месяц
Расчёт носит информационный характер и не является публичной офертой
Похожие объекты





2-комн. квартира, 42,2 м², 16/18 эт.
Девяткино
30 мин.


1-комн. квартира, 33,8 м², 7/18 эт.
Девяткино
30 мин.





2-комн. квартира, 37,5 м², 11/18 эт.
Девяткино
30 мин.





2-комн. квартира, 37,5 м², 16/18 эт.
Девяткино
30 мин.
Консультант по новостройкам
6 933 564 ₽
175 090 ₽/м²






