Продается 3-комн. квартира, 75.92 м²
Россия, Ленинградская область, Всеволожский район, Мурино, жилой комплекс Новые Лаврики
Девяткино
4 мин.
75.92 м²
Общая площадь
38.42 м²
Жилая площадь
16.81 м²
Площадь кухни
12 из 12
Этаж
Описание
В жилом комплексе предложено множество планировочных решений: в наличии квартиры, как классического типа, так и европланировки. Сдаются они чистовой отделкой, высотой потолков от 2,7 до 2,95 метров и остекленными балконами и лоджиями.
В проекте предусмотрена система видеонаблюдения. Во дворе расположены детские и спортивные площадки, рядом с комплексом есть футбольное поле. Для владельцев автомобилей предусмотрена стоянка.
Жилой комплекс находится в западной части Мурино. Рядом расположены продуктовые магазины, отделения почты и банков, гипермаркет «Лента», в 15 минутах транспортом находятся «МЕГА Парнас». Метро «Девяткино» находится в 20 минутах транспортом, выезд на КАД — в 5 минутах транспортом.
О квартире
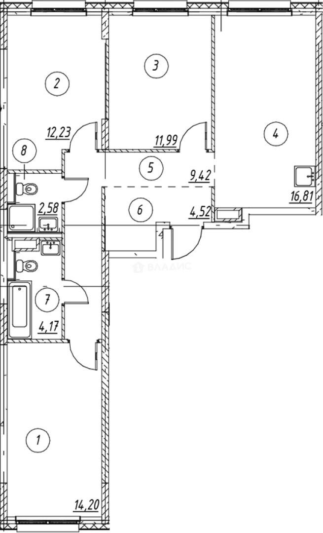
Общая площадь
75.92 м²
Жилая площадь
38.42 м²
Площадь кухни
16.81 м²
Площадь комнат
14.2+12.23+11.99 м²
Высота потолков
2.9 м
Этаж
12
Окна выходят
На улицу
О доме
Год постройки
2026
Этажность
12
Материал постройки
Кирпично-монолитный
Материал перекрытий
Монолитные
Отопление
Центральное
Парковка
Наземная
Расположение
Россия, Ленинградская область, Всеволожский район, Мурино, жилой комплекс Новые Лаврики
Девяткино
4 мин.
Гражданский проспект
6 мин.
Парнас
8 мин.
Проспект Просвещения
9 мин.
Академическая
11 мин.
Озерки
11 мин.
Политехническая
12 мин.
Площадь Мужества
14 мин.
Ипотечный калькулятор
Заполните 1 анкету — получите предложения от десятков банков на специальных условиях
Программа ипотеки
Стоимость жилья, ₽
Первый взнос, ₽
Срок кредита
от 5.75%
Ставка
от 63 217 ₽
Платеж в месяц
Расчёт носит информационный характер и не является публичной офертой
Похожие объекты





3-комн. квартира, 65,2 м², 4/18 эт.
Девяткино
30 мин.



3-комн. квартира, 75,9 м², 10/12 эт.
Девяткино
4 мин.
Консультант по новостройкам
10 048 695 ₽
132 359 ₽/м²






