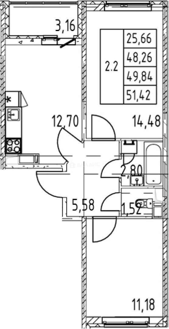
Продается 2-комн. квартира, 48.26 м²
Россия, Ленинградская область, Всеволожский район, Мурино, жилой комплекс Полис ЛАВрики
Девяткино
29 мин.
48.26 м²
Общая площадь
25.66 м²
Жилая площадь
12.7 м²
Площадь кухни
5 из 12
Этаж
Описание
В жилом комплексе «Полис ЛАВрики» предложено множество планировочных решений: в наличии квартиры, как классического типа, так и европланировки. Сдаются они с чистовой отделкой, высотой потолков от 2,7 метров.
Жилой квартал «Полис ЛАВрики» объединяет 6 домов, детский сад и школу. Корпуса образуют дворы закрытой формы с оборудованным пространством для спорта и отдыха. Во дворах расположены игровые площадки для детей разных возрастов, площадки для воркаута и для командных игр, также предусмотрено место для игры в настольный теннис. На первом этаже разместились коммерческие помещения. Для владельцев автомобилей предусмотрен многоуровневый паркинг.
Жилой квартал «Полис ЛАВрики» находится в западной части Мурино, современном благоустроенном пригороде Петербурга, в живописном месте, неподалеку от реки Охта. Ближайшая станция метро — Девяткино, железнодорожная станция — Лаврики. Удачная локация позволяет быстро добраться до исторического центра города, и в наиболее популярные места загородного отдыха — Охта-парк, Северный склон, Зубровник, озеро Хепоярви и Кавголовское озеро.
О квартире
Общая площадь
48.26 м²
Жилая площадь
25.66 м²
Площадь кухни
12.7 м²
Площадь комнат
14.48+11.18 м²
Высота потолков
2.69 м
Этаж
5
Окна выходят
На улицу
О доме
Год постройки
2025
Этажность
12
Материал постройки
Кирпично-монолитный
Материал перекрытий
Монолитные
Отопление
Центральное
Парковка
Многоуровневая
Расположение
Россия, Ленинградская область, Всеволожский район, Мурино, жилой комплекс Полис ЛАВрики
Девяткино
29 мин.
Гражданский проспект
6 мин.
Парнас
8 мин.
Проспект Просвещения
9 мин.
Академическая
10 мин.
Озерки
11 мин.
Политехническая
12 мин.
Площадь Мужества
13 мин.
Ипотечный калькулятор
Заполните 1 анкету — получите предложения от десятков банков на специальных условиях
Программа ипотеки
Стоимость жилья, ₽
Первый взнос, ₽
Срок кредита
от 5.75%
Ставка
от 60 054 ₽
Платеж в месяц
Расчёт носит информационный характер и не является публичной офертой
Похожие объекты





3-комн. квартира, 52 м², 2/18 эт.
Девяткино
30 мин.





3-комн. квартира, 52,8 м², 11/18 эт.
Девяткино
30 мин.




3-комн. квартира, 52,8 м², 10/18 эт.
Девяткино
30 мин.





3-комн. квартира, 52,8 м², 15/18 эт.
Девяткино
30 мин.
Консультант по новостройкам
9 545 888 ₽
197 802 ₽/м²







