Продается 1-комн. квартира, 31.8 м²
Россия, Ленинградская область, Всеволожский район, Мурино, жилой комплекс Полис ЛАВрики
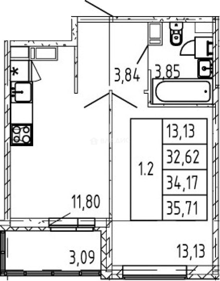
31.8 м²
Общая площадь
13.13 м²
Жилая площадь
11.8 м²
Площадь кухни
9 из 12
Этаж
Описание
В жилом комплексе «Полис ЛАВрики» предложено множество планировочных решений: в наличии квартиры, как классического типа, так и европланировки. Сдаются они с чистовой отделкой, высотой потолков от 2,7 метров.
Жилой квартал «Полис ЛАВрики» объединяет 6 домов, детский сад и школу. Корпуса образуют дворы закрытой формы с оборудованным пространством для спорта и отдыха. Во дворах расположены игровые площадки для детей разных возрастов, площадки для воркаута и для командных игр, также предусмотрено место для игры в настольный теннис. На первом этаже разместились коммерческие помещения. Для владельцев автомобилей предусмотрен многоуровневый паркинг.
Жилой квартал «Полис ЛАВрики» находится в западной части Мурино, современном благоустроенном пригороде Петербурга, в живописном месте, неподалеку от реки Охта. Ближайшая станция метро — Девяткино, железнодорожная станция — Лаврики. Удачная локация позволяет быстро добраться до исторического центра города, и в наиболее популярные места загородного отдыха — Охта-парк, Северный склон, Зубровник, озеро Хепоярви и Кавголовское озеро.
О квартире
Общая площадь
31.8 м²
Жилая площадь
13.13 м²
Площадь кухни
11.8 м²
Площадь комнат
13.13 м²
Высота потолков
2.69 м
Этаж
9
Окна выходят
На улицу
О доме
Год постройки
2023
Этажность
12
Материал постройки
Кирпично-монолитный
Материал перекрытий
Монолитные
Отопление
Центральное
Парковка
Многоуровневая
Расположение
Россия, Ленинградская область, Всеволожский район, Мурино, жилой комплекс Полис ЛАВрики
Ипотечный калькулятор
Заполните 1 анкету — получите предложения от десятков банков на специальных условиях
Программа ипотеки
Стоимость жилья, ₽
Первый взнос, ₽
Срок кредита
от 5.75%
Ставка
от 45 446 ₽
Платеж в месяц
Расчёт носит информационный характер и не является публичной офертой
Похожие объекты





1-комн. квартира, 33,8 м², 16/18 эт.
Девяткино
30 мин.





1-комн. квартира, 34,7 м², 2/18 эт.
Девяткино
30 мин.




1-комн. квартира, 36,4 м², 16/22 эт.
Девяткино
23 мин.



1-комн. квартира, 34,5 м², 16/22 эт.
Девяткино
23 мин.
Консультант по новостройкам
7 223 888 ₽
227 167 ₽/м²









