Продается 2-комн. квартира, 55.29 м²
Россия, Ленинградская область, Всеволожский район, Мурино, ЖК Урбанист
Девяткино
23 мин.
55.29 м²
Общая площадь
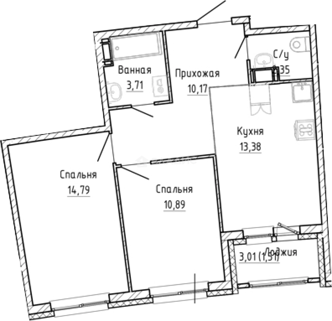
25.68 м²
Жилая площадь
13.38 м²
Площадь кухни
18 из 22
Этаж
Описание
В проекте предлагаются студии и квартиры с 1–3 комнатами, а также европланировки. Во всех помещениях установлены увеличенные окна, а высота потолков варьируется от 2,73 до 3,03 метров. Жилье передается без отделки в базовом черновом варианте. Дополнительно можно заказать один из 3 вариантов чистовой отделки: sand, graphite или терра. Квартиры оснащены системой умного дома inHOME 3.0.
Территория комплекса благоустроена и озеленена: предусмотрен собственный водоем и набережная для прогулок. Обустроены зоны отдыха, детская и спортивная площадки, места для йоги, воркаута, настольный теннис и качели с вечерней подсветкой. Для владельцев авто организован отдельный многоуровневый паркинг и открытая стоянка. Во 2 корпусе запроектирован детский сад.
Комплекс расположен во Всеволожском районе Ленинградской области, в 40 минутах транспортом от центра Санкт-Петербурга. В пределах 5–15 минут пешком доступны школы, детские сады, поликлиники, магазины, аптеки, кафе, рестораны, салоны красоты, банки, торговый центр и спортивный парк Лаврики. До станции метро Девяткино можно добраться за 10 минут транспортом, а выезд на КАД находится в 10 минутах.
О квартире
Общая площадь
55.29 м²
Жилая площадь
25.68 м²
Площадь кухни
13.38 м²
Площадь комнат
14.79+10.89 м²
Высота потолков
3.03 м
Этаж
18
Окна выходят
На улицу
О доме
Год постройки
2027
Этажность
22
Материал постройки
Кирпично-монолитный
Материал перекрытий
Монолитные
Отопление
Центральное
Парковка
Многоуровневая
Расположение
Россия, Ленинградская область, Всеволожский район, Мурино, ЖК Урбанист
Девяткино
23 мин.
Гражданский проспект
5 мин.
Парнас
9 мин.
Проспект Просвещения
9 мин.
Академическая
10 мин.
Озерки
11 мин.
Политехническая
11 мин.
Площадь Мужества
13 мин.
Ипотечный калькулятор
Заполните 1 анкету — получите предложения от десятков банков на специальных условиях
Программа ипотеки
Стоимость жилья, ₽
Первый взнос, ₽
Срок кредита
от 5.75%
Ставка
от 72 650 ₽
Платеж в месяц
Расчёт носит информационный характер и не является публичной офертой
Похожие объекты




3-комн. квартира, 62,3 м², 15/18 эт.
Девяткино
30 мин.



3-комн. квартира, 54,2 м², 14/22 эт.
Девяткино
23 мин.




2-комн. квартира, 55,3 м², 12/22 эт.
Девяткино
23 мин.


3-комн. квартира, 54,2 м², 8/22 эт.
Девяткино
23 мин.
Консультант по новостройкам
11 548 081 ₽
208 864 ₽/м²



