Продается 1-комн. квартира, 35.8 м²
Россия, Московская область, Мытищи, микрорайон 17А, ЖК Новое Медведково, к41
Медведково
10 мин.
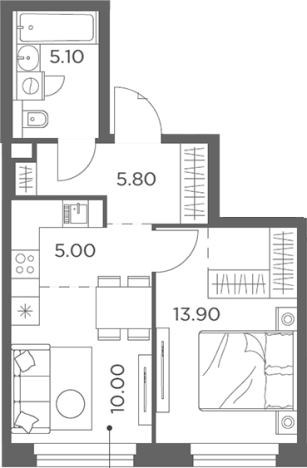
35.8 м²
Общая площадь
13.3 м²
Жилая площадь
11.8 м²
Площадь кухни
17 из 18
Этаж
Описание
Покупателям квартир в ЖК «Новое Медведково» предложено множество планировочных решений: в наличии квартиры, как классического типа, так и европланировки с гардеробными и кладовыми. Квартиры передаются дольщикам с чистовой отделкой и без отделки.
В состав комплекса входят детские сада и школа. Для автовладельцев предусмотрены паркинги. Также запроектированы кладовые помещения для хранения колясок и велосипедов. Проектом предусмотрено создание уютного закрытого двора, свободного от автомобилей. Все придомовые территории благоустроены и озеленены. Предусмотрены места для отдыха, пешеходные аллеи, игровые площадки и уличные гимнастические комплексы.
Жилой комплекс «Новое Медведково» расположен в Мытищах с развитой инфраструктурой. В пешей доступности находятся Пироговский и Русаковский парки. Метро «Медведково» находится в 15 минутах транспортом.
О квартире
Общая площадь
35.8 м²
Жилая площадь
13.3 м²
Площадь кухни
11.8 м²
Площадь комнат
13.2 м²
Высота потолков
2.75 м
Подъезд
1
Этаж
17
Окна выходят
На улицу
О доме
Год постройки
2025
Этажность
18
Количество подъездов
1
Материал постройки
Монолитный
Материал перекрытий
Монолитные
Отопление
Центральное
Пассажирских лифтов
1
Грузовых лифтов
1
Парковка
Наземная
Расположение
Россия, Московская область, Мытищи, микрорайон 17А, ЖК Новое Медведково, к41
Медведково
10 мин.
Бабушкинская
12 мин.
Свиблово
14 мин.
Бибирево
15 мин.
Алтуфьево
15 мин.
Ростокино
16 мин.
Отрадное
16 мин.
Ботанический сад
17 мин.
Ипотечный калькулятор
Заполните 1 анкету — получите предложения от десятков банков на специальных условиях
Программа ипотеки
Стоимость жилья, ₽
Первый взнос, ₽
Срок кредита
от 5.75%
Ставка
от 58 948 ₽
Платеж в месяц
Расчёт носит информационный характер и не является публичной офертой
Похожие объекты








2-комн. квартира, 39,8 м², 18/23 эт.
Медведково
4 мин.








2-комн. квартира, 39,8 м², 18/23 эт.
Медведково
4 мин.








2-комн. квартира, 39,8 м², 21/23 эт.
Медведково
4 мин.







2-комн. квартира, 34,9 м², 13/20 эт.
Медведково
4 мин.
Консультант по новостройкам
9 370 000 ₽
261 732 ₽/м²
















