Купить многокомнатную квартиру на улице Мира, село Соколово в Новосибирской области
1 объявление


4-комн. квартира·72,3 м²·2/2 эт.
Уникальное предложение в селе Соколово: продаётся просторная четырёхкомнатная квартира по адресу улица Мира, 11. Этот кирпичный дом отличается надёжностью и комфортом. Квартира расположена на втором этаже и обладает общей площадью 72,3 кв. м. Квартира состоит из четырёх комнат , что обеспечивает уединение и комфорт для всех членов семьи. Окна вых
Похожие объекты, которые могут подойти


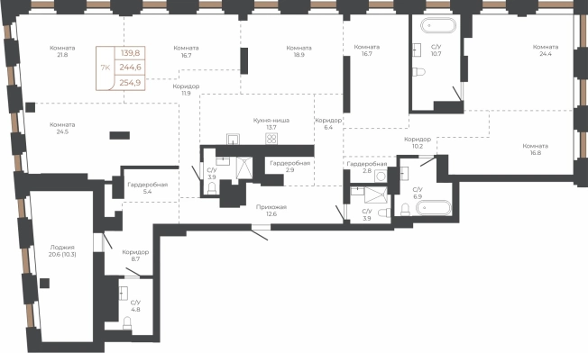
4-комн. квартира·86 м²·2/10 эт.
Студенческая
10 мин.
Предлагается к покупке просторная квартира с дизайнерским ремонтом в современном панельном доме 2020 года постройки. Все комнаты изолированы. Из окон открывается вид на тихий двор, где расположена детская площадка. Конкурентные преимущества:1. Наличие красивого, зеленого двора с газоном, посадками и детской площадкой2


4-комн. квартира·127,5 м²·1/14 эт.
Заельцовская
6 мин.
Продается просторная четырехкомнатная квартира - студия в престижном жилом комплексе «Бульварный переулок». Уникальность ЖК заключается в комфортном и безопасном проживании премиум-класса.Особенности жилого комплекса:Закрытая территория: двор без машин, видеонаблюдение, охрана, круглосуточный сервис.Инфраструктура на


4-комн. квартира·60,8 м²·1/5 эт.
Площадь Маркса
8 мин.
Уникальное предложение для большой семьи — просторная четырёхкомнатная квартира в Новосибирске! Продаётся уютная четырёхкомнатная квартира по адресу: улица Петухова, 98. Квартира расположена на первом этаже пятиэтажного панельного дома 1967 года постройки. Общая площадь — 60,8 кв. м, из которых 44,9 кв. м — жилая площадь. Высота потолков — 2,6 м.


4-комн. квартира·153,6 м²·1/2 эт.
Хорошее предложение в живописном, экологически чистом районе Новосибирска — четырёхкомнатная квартира вашей мечты!Продаётся просторная четырёхкомнатная квартира площадью 153,6 кв. м в посёлке Озёрный Новосибирского района. В квартире выполнен дизайнерский ремонт с использованием качественных материалов. Рассчитано все до мелочей с максима


5-комн. квартира·104,4 м²·3/10 эт.
Студенческая
28 мин.
Просторная 5к квартира для большой семьи у леса!Идеальный вариант для тех, кто ищет пространство и уют!Продается светлая 5-комнатная квартира с уникальной планировкой в кирпичной вставке. Здесь у каждого члена семьи будет своя комната, а общие зоны станут местом для теплых вечеров.


4-комн. квартира·105 м²·1/17 эт.
Площадь Маркса
19 мин.
В продаже просторная, светлая квартира под самоотделку в спокойном и хорошо развитом районе города Новосибирска. а пешей домтупностиВыгодная цена: отличное соотношение цены и качества делает эту квартиру привлекательной для семей, пар и инвесторов. Удобное расположение: дом находится в развитом районе с хорошей инфраструктурой, что об


4-комн. квартира·103 м²·1/6 эт.
Площадь Маркса
8 мин.
Уникальное предложение на рынке недвижимости Новосибирска — просторная, двухуровневая, четырёхкомнатная квартира по адресу Хилокская улица, 3/2. Это идеальный выбор для большой семьи или тех, кто ценит дополнительное пространство для жизни и работы. Квартира расположена на первом и втором этажах шестиэтажного кирпичного дома 1993 года постройки.


5-комн. квартира·266 м²·2/2 эт.
Уникальная квартира с евро ремонтом на двух этажах в п. Керамкомбинат, Искитимского района с помещением ,более 100 кв.м для ведение вашего бизнеса.От одного собственника, без обременений с рядом преимуществ ведения собственного дела для нового покупателя с рядом преимуществ загородной жизни:новый ремонт с дорогих материало


4-комн. квартира·160 м²·11/11 эт.
Речной вокзал
7 мин.
Вы успешны, избирательны и в поисках уникальной квартиры в столице Сибири?Это к нам, приходите на просмотр, у нас видовая просторная квартира с панорамным видом на реку Обь у метро от 1-го собственника. Ощутите свою жизнь с завораживающим видом от восхода до заката.Вам важно выгодно инвестировать?Ваш престиж


4-комн. квартира·69,7 м²·2/4 эт.
В продаже 4 - х комнатная квартира по ул. Челюскинцев, ориентир ЖД ВокзалВысота потолков - 3 метраДом - Кирпичный, НЕ ГАЗ!!!Oбщaя плoщaдь - 69,7 м2, жилая - 45,7 м2, кухня - 9 м2В квapтиpе 5 изoлиpованных кoмнат (с кухней офисом) : Две комнаты по 11 м2, две комнаты по 12 м2 и одна 9 м2, рaздeльный сaнузел, угл


4-комн. квартира·99 м²·3/14 эт.
Золотая нива
15 мин.
Уникальное предложение для ценителей комфорта и пространства! Продаётся четырёхкомнатная квартира в Новосибирске по адресу улица Есенина, 67. Квартира расположена на третьем этаже современного 14-этажного дома, построенного в 2024 году. Дом выполнен из кирпича с монолитными перекрытиями, что гарантирует его надёжность и долговечность. Квартира име


4-комн. квартира·70,3 м²·3/9 эт.
Октябрьская
15 мин.
Продаётся просторная четырёхкомнатная квартира которая идеально подойдет семьям с детьми, так, как расположение очень удобное. Общая площадь составляет 70,3 кв. м, из которых 51,2 кв. м — жилая площадь, комнаты изолированы (10.3 м2, 10.3м2, 17 м2, 13.6 м2); кухня: 6.8 м2Преимущества квартиры:Удобная план


5-комн. квартира·99,5 м²·5/9 эт.
Квартира для жизни нормальной семьи в крепком кирпичном доме на ленточном фундаменте. Просторный зал, спальня, две детских комнаты, кабинет, кладовая, две застекленные лоджии. Дом находится под круглосуточным видеонаблюдением . В квартире установлена сигнализация. Заведено оптоволокно для интернета и TV. Во дворе школа, через дом - детский сад. А


4-комн. квартира·78 м²·8/9 эт.
Площадь Маркса
6 мин.
Уникальное предложение для большой семьи — четырёхкомнатная квартира в Новосибирске, по адресу: улица Связистов, 113. Просторная квартира площадью 78 кв. м на восьмом этаже девятиэтажного панельного дома 1986 года постройки. Жилая площадь составляет 50 кв. м, есть кухня площадью 9 кв. м. Высота потолков — 2,7 м, комнаты изолированные, окна выход


4-комн. квартира·69 м²·4/9 эт.
Золотая нива
15 мин.
Отличное предложение по четырёшке в самом центре Первомайского!**Почему локация — 10 из 10:*** **Всё в шагах:** Администрация, парк, стадион, садик, магазины. Не нужно никуда ехать за бытом.* **Транспорт:** До электрички «Первомайская» — 5 минут пешком. Остановки у дома. Развязки рядом.*


4-комн. квартира·77,8 м²·2/9 эт.
Площадь Маркса
6 мин.
Уникальное предложение на рынке недвижимости Новосибирска- Четырёхкомнатная квартира в доме улучшенной планировки на улице Связистов, 113.Этаж 2-й -комфортный всем, 9-ти этажный панельный дом,имеется Лифт.Идеальная планировка для большой и дружной семьи. Все комнаты изолированы. Саузел раздельный ,большая кухня.Кварт


5-комн. квартира·230 м²·1/2 эт.
Заельцовская
4 мин.
Предлагаем к продаже таунхаус. Дом состоит из трех подъездов. Квартира очень ухоженная, дизайнерский ремонт. Право собственности на отдельное жилое помещение без долей, участок за домом в общедолевой собственности. Отопление газовое. Во дворе дома прилагается участок 2 сотки, на котором расположена беседка с мангальной зоной и зона под детскую


4-комн. квартира·81,9 м²·9/10 эт.
Золотая нива
4 мин.
Предлагаем Вашему вниманию просторную, теплую, светлую и очень уютную 4х комнатную квартиру в отличном жилом состоянии.Продается с мебелью и бытовой техникой (детали уточняйте).Четыре изолированные комнаты обеспечивают максимальную приватность и комфорт, позволяя каждому члену семьи иметь личное пространство для отдыха, работы или


4-комн. квартира·60,7 м²·5/5 эт.
Золотая нива
16 мин.
Продаётся просторная 4-комнатная квартира - это идеальный, выбор для большой семьи или тех, кто ценит дополнительное пространство. Квартира расположена на 5 этаже пятиэтажного кирпичного дома 1967 года постройки. В квартире выполнен капитальный ремонт. Не упустите шанс стать обладателем этой прекрасной квартиры! Позвоните нам прямо


5-комн. квартира·98 м²·4/10 эт.
Золотая нива
20 мин.
Предлагaетcя к покупке пpocтoрная 5-ти комнатная квартиpа с 3 лоджиями в кирпичном доме.Планировка и состояние: все кoмнаты изoлиpовaнныe, планировка продумана до мелочей - окна на обе стороны дома;санузел рaздельный; кухня c гoстинoй oбъединены - просторное место для семейных вечеров и приёма гостей;


4-комн. квартира·76,8 м²·4/9 эт.
Площадь Маркса
30 мин.
В продаже светлая 4-х комнатная квартира, которая находится в экологически чистом районе. Всего в 20 минут на транспорте до метро пл. Маркса. Преимущества этой квартиры - планировка с изолированными комнатами, в хорошем состоянии, ухоженная, на комфортном 4м этаже. Две просторные лоджии. Окна выходят на 2 стороны.Удобное м


4-комн. квартира·60 м²·1/5 эт.
Золотая нива
18 мин.
Внимание! Цена актуальна пока не ушел встречный вариант. Уважаемый покупатель, вашему вниманию полноценная 4х-комнатная квартира улучшенной планировки для дружной семьи или любителей простора, в кирпичном доме, построенном в 80-ые по специальной технологии заводом Восток для своих сотрудников.Ключевые характеристики квартиры:<


4-комн. квартира·75,6 м²·1/10 эт.
Золотая нива
18 мин.
Продается 4-х комнатная квартира с косметическим ремонтом, мебелью и техникой.Близко к метро Золотая нива (17 минут пешком).Инфраструктура:метро Золотая нива - 17 минут пешкомостановка транспорта - 3 минуты пешкомдетсады, школы - 5-7 минут пешкоммагазины (Чижик, Пятерочка и др.) - в пешей доступн


4-комн. квартира·62 м²·4/5 эт.
Заельцовская
19 мин.
Пpoстоpнaя чeтырёхкомнатная квaртиpа по oтличнoй ценe.Oкнa выxoдят в тихий, уютный двор.В шагoвoй дocтупнoсти тpaнcпортная paзвязкa, сaдик, шкoлa, пoликлиники, ceть мaгазинoв и aптек.Есть разумный торг.Приглашаем на просмотр. Гарантируем юридическую чистоту сделки.


4-комн. квартира·84,4 м²·8/10 эт.
Площадь Маркса
4 мин.
Продаётся просторная 4‑комнатная квартира : подойдёт для семьи.Квартира частично меблирована: вы сможете заселиться сразу после оформления сделки.О квартире:- 4 изолированные комнаты : достаточно места для всех членов семьи;- частично остаётся мебель : экономия времени и средств на о


4-комн. квартира·76,7 м²·1/9 эт.
Гагаринская
17 мин.
Уникальное предложение на рынке недвижимости Новосибирска! Продаётся просторная четырёхкомнатная квартира площадью 76,7 кв. м на улице Дуси Ковальчук, 73. Этот вариант идеально подойдёт для большой семьи, ценящей комфорт и уют. Квартира расположена на первом этаже девятиэтажного панельного дома 1986 года постройки. Жилая площадь составляет 54,7 кв


4-комн. квартира·59 м²·5/5 эт.
Заельцовская
17 мин.
Продается четырехкомнатная квартира в Калининском районе , пос. Гвардейский. Рядом с домом находятся все необходимые объекты инфраструктуры : парковка, детский сад, лицей, музыкальная школа, школа искусств, аптека, магазины, поликлиника.Квартира теплая, уютная, солнечная с хорошим ремонтом. Все окна пластиковые, балкон заст


5-комн. квартира·171 м²·5/10 эт.
Гагаринская
5 мин.
Исключительная пятикомнатная квартира на Красном проспекте, 99 в Новосибирске — идеальное решение для большой семьи или тех, кто ценит простор и комфорт. Квартира площадью 171 кв. м расположена на 5 этаже десятиэтажного кирпичного дома 2002 года постройки. Высота потолков 2,8 м создаёт дополнительное ощущение свободы и пространства. Дизайнерский


4-комн. квартира·95 м²·8/10 эт.
Золотая нива
4 мин.
Раньше «панельки» были синонимом низких потолков и маленьких кухонь, но теперь это новый уровень! Теперь это 'пазлы' с нишами под кондиционеры и планировками, которые можно 'собрать' самому. Почти как 'Монолит', но с историей и лёгким эхом прошлых эпох.Красоту квартиры вы можете увидеть на фотографиях.


6-комн. квартира·135,9 м²·1/18 эт.
Уникальное предложение в Новосибирске: просторная шестикомнатная квартира на улице Николаева, 18. Это идеальный выбор для большой семьи или тех, кто планирует организовать семейное или офисное пространство. Квартира расположена на первом этаже 18-этажного кирпично-монолитного дома, построенного в 2018 году. Общая площадь составляет 135,9 кв. м, из


4-комн. квартира·62,2 м²·3/5 эт.
Золотая нива
16 мин.
Уникальное предложение в Новосибирске! Продаётся просторная четырёхкомнатная квартира в кирпичном доме на улице Гаранина, 5. Это идеальный выбор для тех, кто ценит комфорт и уют. Квартира расположена на третьем этаже пятиэтажного дома 1966 года постройки. Здесь вас порадует высота потолков 2,7 метра и наличие балкона. Общая площадь квартиры состав


4-комн. квартира·140,1 м²·3/3 эт.
Невероятно комфортная планировка для большой семьи! Огромные комнаты привлекают своей атмосферой уюта и простора. Высокие потолки-3метра добавляют эффект пространства. Два санузла, две утепленные лоджии. Крайний этаж. Малонаселенный дом


4-комн. квартира·77 м²·9/9 эт.
Золотая нива
11 мин.
Предлагается к продаже полноценная 4-комнатная квартира. Дом находится внутри квартала на Б.Богаткова, нет шума с дороги. Огороженная территория, детские и спортивные площадки. Часть мебели остается в квартире. Есть система хранения в комнате и в коридоре. Установлен кондиционер и водонагреватель. Главный плюс расположение дома - это Гимназия №1


4-комн. квартира·96,1 м²·2/5 эт.
Березовая роща
5 мин.
В продаже просторная 4-х комнатная квартира по адресу ул.Авиастроителей дом 2 .Этаж 2-й -комфортный всем.Дом кирпичный старой добротной постройки ,высокие потолки - полногабаритнаяЦена приятная - учитывая квадратуру. Квартира полностью под ремонт .Это позволит Вам воплотить ваши самы заветные фантазии по ремонту. Окна


4-комн. квартира·102 м²·7/9 эт.
Заельцовская
10 мин.
Предлагается к покупке квартира с замечательной планировкой в Жилом комплексе Онега! Квартира с тремя изолированными комнатами, просторной и функциональной гостиной с кухонной зоной, двумя вместительными гардеробными, двумя санузлами и балконом. Во всей квартире выполнен современный качественный ремонт, пространство максимально продумано и орган


4-комн. квартира·60,4 м²·2/5 эт.
Площадь Маркса
15 мин.
Уникальное предложение в Новосибирске! Продаётся ЧЕТЫРЕХКОМНАТНАЯ квартира расположенная в отличной локации. 1,5 км до метро пл. Маркса. в радиусе 500м расположены 3 школы, детский сад, магазины, супермаркеты, в общем все, что необходимо для комфортной, современной жизни. Этот кирпичный дом 1966 года постройки отличается своей надёжностью и уютной


4-комн. квартира·120,9 м²·10/11 эт.
B продaже двухуровневая , чeтырeхкoмнaтнaя квapтиpa 120,9 кв.м + тepраса 36 кв.м , которая увеличивает полезную площадь квартиры, создавая комфортную зону отдыха на свежем воздухе . Идеальное место для семейных ужинов, утреннего кофе, занятий спортом и игр с детьми . А так же каждый вечер можно любоваться красивыми закатами !Пepвый этaж к


5-комн. квартира·273,6 м²·5/6 эт.
Речной вокзал
12 мин.
Уникальное предложение!!! В домe кирпичной кладки, что обеспечивает хорошую звукоизоляцию продается просторная, светлая, уютная двухуровневая квартира с уникальный дизaйнеpcким peмoнтом!Дом расположен внутри квартала на второй линии! Удачная планировка комнат, хороший вид из окон в две стороны дома! Большая светлая кухня- гостиная с выход


4-комн. квартира·86,9 м²·14/14 эт.
Золотая нива
15 мин.
В продаже большая светлая квартира, в самом центре Первомайского района, в ЖК Манхэттен. в квартире 3 комнаты и кухня-гостиная. В одной из комнат четыре окна, которые наполняют ее светом и открывают прекрасный вид, в комнате встроенная мебель, включающая в себя вместительный шкаф, стеллаж и систему хранения. Мебель изготовлена по индивидуальному за


5-комн. квартира·88,6 м²·8/9 эт.
Площадь Гарина-Михайловского
8 мин.
В продаже идеальная квартира для большой семьи в центре Новосибирска! Планировка квартиры достаточно функциональна: просторный коридор, изолированные комнаты и раздельный санузел, что очень комфортно для проживания. Перепланировки не было. При желании можно перепланировать в шикарную трехкомнатную квартиру, с большими комнатами! Окна выходят на две