Продается 3-комн. квартира, 64.9 м²
Россия, Московская область, Одинцово, микрорайон Клубничное Поле, жилой комплекс Одинград квартал Семейный, 5
Пыхтино
11 мин.
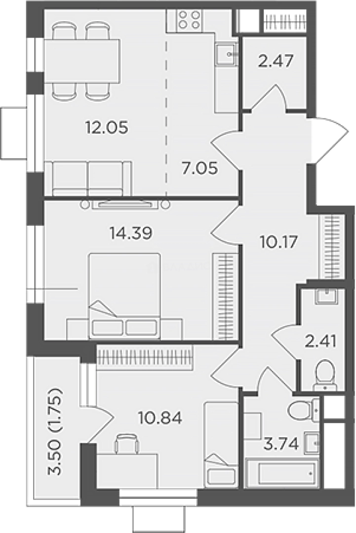
64.9 м²
Общая площадь
37.3 м²
Жилая площадь
7 м²
Площадь кухни
7 из 24
Этаж
Описание
Проектом запланированы квартиры различных площадей и планировок от 20 до 92 квадратных метров. Кроме того, будут представлены квартиры с лоджиями-террасами на последних этажах. Квартиры передаются дольщикам с чистовой отделкой и без отделки.
Для автовладельцев предусмотрен подземный паркинг. Также запроектированы кладовые помещения для хранения колясок и велосипедов. Проектом предусмотрено создание уютного закрытого двора, свободного от автомобилей. Все придомовые территории благоустроены и озеленены по авторскому проекту бюро ARTEZA, предусмотрены места для отдыха с гамаками и лежаками, пешеходные аллеи, игровые площадки и уличные гимнастические комплексы.
Жилой комплекс «Одинград» — расположен в микрорайоне Одинцово с развитой инфраструктурой. В пешей доступности находятся Детский парк и Центральный пруд. Выезд на МКАД находится в 10 минутах по платной трассе М1. Метро «Славянский бульвар» находится в 30 минутах транспортом.
О квартире
Общая площадь
64.9 м²
Жилая площадь
37.3 м²
Площадь кухни
7 м²
Площадь комнат
10.84+14.39 м²
Высота потолков
2.74 м
Этаж
7
Окна выходят
На улицу
О доме
Год постройки
2024
Этажность
24
Количество подъездов
1
Материал постройки
Кирпично-монолитный
Материал перекрытий
Монолитные
Отопление
Центральное
Пассажирских лифтов
1
Грузовых лифтов
1
Парковка
Наземная
Расположение
Россия, Московская область, Одинцово, микрорайон Клубничное Поле, жилой комплекс Одинград квартал Семейный, 5
Пыхтино
11 мин.
Ипотечный калькулятор
Заполните 1 анкету — получите предложения от десятков банков на специальных условиях
Программа ипотеки
Стоимость жилья, ₽
Первый взнос, ₽
Срок кредита
от 5.75%
Ставка
от 87 887 ₽
Платеж в месяц
Расчёт носит информационный характер и не является публичной офертой
Похожие объекты










2-комн. квартира, 62,4 м², 20/24 эт.
Пыхтино
11 мин.











3-комн. квартира, 68,9 м², 9/24 эт.
Пыхтино
11 мин.










3-комн. квартира, 64,7 м², 17/24 эт.
Пыхтино
11 мин.











2-комн. квартира, 59,8 м², 22/24 эт.
Пыхтино
11 мин.
Консультант по новостройкам
13 970 000 ₽
215 255 ₽/м²











