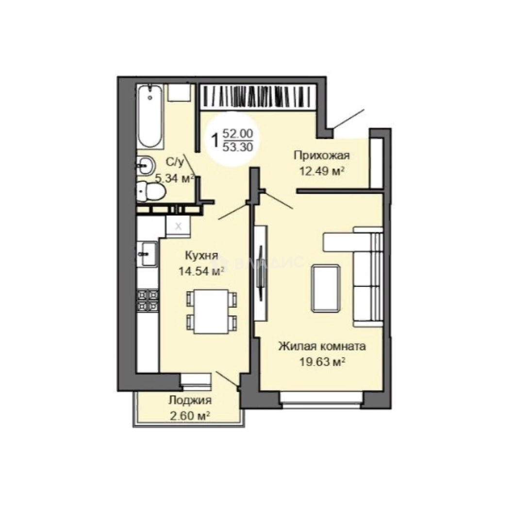
Продается 1-комн. квартира, 53.3 м²
Россия, Орёл, Межквартальная улица, 3
53.3 м²
Общая площадь
3 из 17
Этаж
Описание
О квартире
Общая площадь
53.3 м²
Подъезд
3
Этаж
3
Расположение квартиры
не угловая
Окна выходят
На улицу
Совмещенных санузлов
1
Лоджия
Есть
О доме
Год постройки
2022
Этажность
17
Количество подъездов
5
Материал постройки
Кирпично-монолитный
Материал перекрытий
Ж/б плиты
Отопление
Своя котельная
Пассажирских лифтов
1
Грузовых лифтов
1
Парковка
Наземная
Расположение
Россия, Орёл, Межквартальная улица, 3
Ипотечный калькулятор
Заполните 1 анкету — получите предложения от десятков банков на специальных условиях
Программа ипотеки
Стоимость жилья, ₽
Первый взнос, ₽
Срок кредита
от 5.75%
Ставка
от 29 128 ₽
Платеж в месяц
Расчёт носит информационный характер и не является публичной офертой
Консультант по новостройкам
4 630 000 ₽
86 867 ₽/м²











