Продается Студия, 26.21 м²
Россия, Санкт-Петербург, улица Салова, 61
Бухарестская
2 мин.
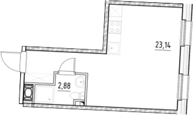
26.21 м²
Общая площадь
15.76 м²
Жилая площадь
6 из 18
Этаж
Описание
Квартиры представлены просторными классическими планировками. Из окон открывается вид на зеленые зоны, а верхние этажи имеют видовые характеристики. Квартиры передаются дольщикам с чистовой отделкой в светлых тонах. Во второй и третьей секции условие покупки квартиры - дозаказ мебели.
На первых этажах находится двухэтажная торговая галерея. В секциях установлены бесшумные скоростные лифты «Otis» и предусмотрена лобби-зона. Управление апарт-отелем осуществляет собственная управляющая компания. Закрытый двор украшен площадью с фонтаном. Придомовая территория благоустроена местами для отдыха и зелеными зонами.
Комплекс апартаментов расположен во Фрунзенском районе с развитой инфраструктурой. В пешей доступности находятся школы, детские сады, филиалы вузов, отделения почты и банков, а также крупные торгово-развлекательные центры «РИО» и «Континент». Метро «Бухарестская» расположено в пяти минутах пешком.
О квартире
Общая площадь
26.21 м²
Жилая площадь
15.76 м²
Площадь комнат
15.76 м²
Высота потолков
2.55 м
Подъезд
1
Этаж
6
Окна выходят
На улицу
О доме
Год постройки
2022
Этажность
18
Материал постройки
Монолитный
Материал перекрытий
Монолитные
Отопление
Центральное
Парковка
Подземная
Расположение
Россия, Санкт-Петербург, улица Салова, 61
Бухарестская
2 мин.
Волковская
16 мин.
Международная
22 мин.
Электросила
4 мин.
Московские ворота
4 мин.
Парк Победы
5 мин.
Елизаровская
5 мин.
Обводный Канал
5 мин.
Ипотечный калькулятор
Заполните 1 анкету — получите предложения от десятков банков на специальных условиях
Программа ипотеки
Стоимость жилья, ₽
Первый взнос, ₽
Срок кредита
от 5.75%
Ставка
от 53 173 ₽
Платеж в месяц
Расчёт носит информационный характер и не является публичной офертой
Похожие объекты






Студия, 26,0 м², 5/13 эт.
Бухарестская
9 мин.




1-комн. квартира, 25,6 м², 3/13 эт.
Бухарестская
9 мин.






Студия, 26,1 м², 8/13 эт.
Бухарестская
9 мин.






1-комн. квартира, 25,6 м², 7/13 эт.
Бухарестская
9 мин.
Консультант по новостройкам
8 452 080 ₽
322 476 ₽/м²











