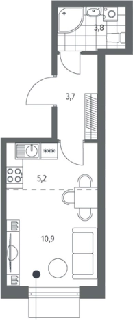
Продается Студия, 24.27 м²
Россия, Санкт-Петербург, ЖК Башни Элемент
Приморская
4 мин.
24.27 м²
Общая площадь
17.7 м²
Жилая площадь
15 из 22
Этаж
Описание
В проекте предложено множество планировочных решений: от студий до пентхаусов как классического типа, так и европланировки. Сдаются они с отделкой White Box, высотой потолков от 2.85 до 7 метров. На последнем этаже в башнях TITAN и PLATINA расположены пентхаусы.
На территории комплекса спроектированы событийная площадь, ландшафтный парк площадью 2 600 кв.м. со спортивными зонами, детскими площадками и местами для отдыха, на кровле стилобата раскинулись зеленые сады с интерактивными площадками, зоной для занятий спортом и амфитеатр. Авторское благоустройство разработано совместно с командой «Бюро Правда». Для детей разработан образовательно-развлекательный кластер с возможностью мультимодального обучения и развлечения на основе стилей VARK. Башни TITAN и PLATINA на уровне 9 этажа объединяет «Небесный мост» — 1 000 кв.м. клубной инфраструктуры с панорамным видом на Финский залив. На территории проекта имеются собственная школа-лицей и детский сад. Для владельцев автомобилей предусмотрен подземный паркинг с двухуровневым хранением.
Жилой комплекс находится на Васильевском острове на первой линии Финского залива. Рядом расположен въезд на ЗСД, морской вокзал и пассажирский порт. За 10 минут на автомобиле можно добраться до метро «Приморская», а за 20 минут — до стрелки Васильевского острова и Невского проспекта.
О квартире
Общая площадь
24.27 м²
Жилая площадь
17.7 м²
Площадь комнат
17.7 м²
Высота потолков
3.01 м
Этаж
15
Окна выходят
На улицу
О доме
Год постройки
2028
Этажность
22
Материал постройки
Монолитный
Парковка
Подземная
Расположение
Россия, Санкт-Петербург, ЖК Башни Элемент
Приморская
4 мин.
Зенит
6 мин.
Горный институт
6 мин.
Василеостровская
8 мин.
Беговая
8 мин.
Крестовский остров
8 мин.
Спортивная
9 мин.
Чкаловская
10 мин.
Ипотечный калькулятор
Заполните 1 анкету — получите предложения от десятков банков на специальных условиях
Программа ипотеки
Стоимость жилья, ₽
Первый взнос, ₽
Срок кредита
от 5.75%
Ставка
от 68 525 ₽
Платеж в месяц
Расчёт носит информационный характер и не является публичной офертой
Похожие объекты
Консультант по новостройкам
10 892 376 ₽
448 800 ₽/м²






































