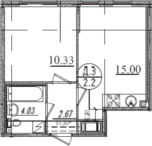
Продается Студия, 37.02 м²
Россия, Санкт-Петербург, Средний проспект Васильевского острова, 87к3
Горный институт
12 мин.
37.02 м²
Общая площадь
26.19 м²
Жилая площадь
11 из 10
Этаж
Описание
Квартиры на верхних этажах имеют видовые характеристики. В них спроектированы просторные площади от 26 до 78 кв.м. В зависимости от корпуса, апартаменты передаются покупателям с чистовой отделкой, меблировкой и двумя вариантами чистовой отделки на выбор — в светлых и темных тонах.
На первых этажах корпусов спроектированы коммерческие помещения. Во дворе предусмотрены места для отдыха, прогулочные зоны и оздоровительно-физкультурный центр. Для автовладельцев предусмотрен подземный паркинг на 80 мест.
Апарт-отель расположен в благоустроенном районе на Васильевском острове. В пешей доступности находятся спортивные комплексы, бассейны, футбольное поле, каток, сад и Дворец культуры им. С.М. Кирова. Для жителей работают школы, лицеи, детские сады, магазины и торговые центры. Транспортная сеть развита за счет Малого и Среднего проспектов В.О. Станция метро «Василеостровская» в 20 минутах пешком.
О квартире
Общая площадь
37.02 м²
Жилая площадь
26.19 м²
Площадь комнат
26.19 м²
Высота потолков
2.7 м
Этаж
11
Окна выходят
На улицу
О доме
Год постройки
2020
Этажность
10
Материал постройки
Монолитный
Парковка
Подземная
Расположение
Россия, Санкт-Петербург, Средний проспект Васильевского острова, 87к3
Горный институт
12 мин.
Приморская
17 мин.
Василеостровская
21 мин.
Спортивная
4 мин.
Чкаловская
5 мин.
Адмиралтейская
5 мин.
Крестовский остров
6 мин.
Садовая
6 мин.
Ипотечный калькулятор
Заполните 1 анкету — получите предложения от десятков банков на специальных условиях
Программа ипотеки
Стоимость жилья, ₽
Первый взнос, ₽
Срок кредита
от 5.75%
Ставка
от 76 724 ₽
Платеж в месяц
Расчёт носит информационный характер и не является публичной офертой
Похожие объекты









2-комн. квартира, 38,9 м², 18/18 эт.
Приморская
10 мин.









2-комн. квартира, 37,9 м², 18/18 эт.
Приморская
10 мин.









2-комн. квартира, 39,8 м², 7/18 эт.
Приморская
10 мин.
Консультант по новостройкам
12 195 652 ₽
329 435 ₽/м²



















