Продается 2-комн. квартира, 39.75 м²
Россия, Санкт-Петербург, бульвар Головнина, 3к1
Приморская
10 мин.
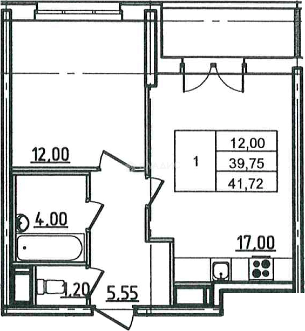
39.75 м²
Общая площадь
12 м²
Жилая площадь
17 м²
Площадь кухни
12 из 18
Этаж
Описание
Жилой комплекс находится на Васильевском острове. В районе есть магазины, отделения почты и банков, кафе и рестораны, а также медицинские центры. Метро «Приморская» и выезд на ЗСД находятся в 10 минутах транспортом.
О квартире
Общая площадь
39.75 м²
Жилая площадь
12 м²
Площадь кухни
17 м²
Площадь комнат
12 м²
Подъезд
4
Этаж
12
Окна выходят
На улицу
О доме
Год постройки
2022
Этажность
18
Количество подъездов
12
Материал постройки
Кирпично-монолитный
Материал перекрытий
Монолитные
Отопление
Центральное
Пассажирских лифтов
1
Грузовых лифтов
1
Парковка
Подземная
Расположение
Россия, Санкт-Петербург, бульвар Головнина, 3к1
Приморская
10 мин.
Ипотечный калькулятор
Заполните 1 анкету — получите предложения от десятков банков на специальных условиях
Программа ипотеки
Стоимость жилья, ₽
Первый взнос, ₽
Срок кредита
от 5.75%
Ставка
от 74 688 ₽
Платеж в месяц
Расчёт носит информационный характер и не является публичной офертой
Похожие объекты









2-комн. квартира, 45,4 м², 18/18 эт.
Приморская
10 мин.









1-комн. квартира, 39,4 м², 18/18 эт.
Приморская
10 мин.









2-комн. квартира, 45,4 м², 18/18 эт.
Приморская
10 мин.









2-комн. квартира, 38,9 м², 18/18 эт.
Приморская
10 мин.
Консультант по новостройкам
11 872 000 ₽
298 667 ₽/м²










