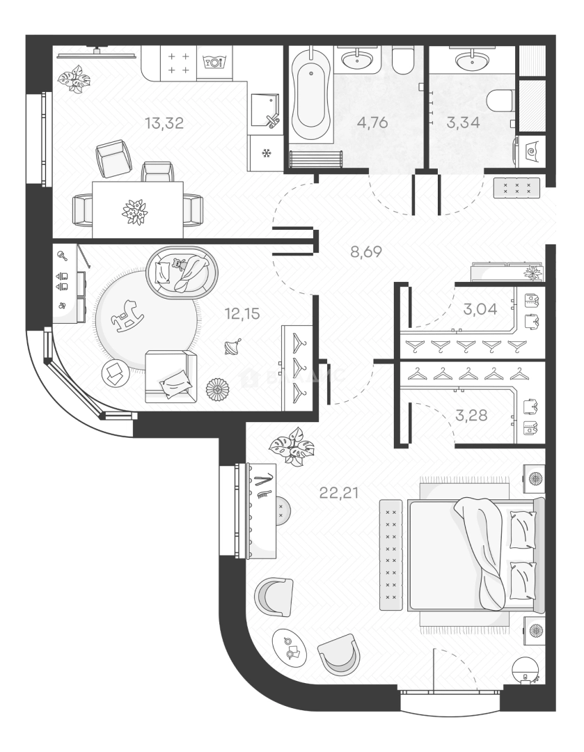
Продается 2-комн. квартира, 70.79 м²
Россия, Санкт-Петербург, территория Гавань
Горный институт
14 мин.
70.79 м²
Общая площадь
34.36 м²
Жилая площадь
13.32 м²
Площадь кухни
3 из 9
Этаж
Описание
В клубном доме представлено 88 квартир как классического типа, так и европланировки. Сдаются они без отделки, с высотой потолков 3 метра, увеличенными и панорамными окнами. Имеются квартиры с террасами и видами на Финский залив и Опочининский сад.
В жилом комплексе спроектирован отапливаемый подземный паркинг и кладовые.
Клубный дом расположен на Васильевском острове в 700 метрах от Финского залива. Рядом расположены супермаркеты, аптеки, мед. центры, спорт. клубы, кафе и рестораны, множество учебных заведений, достопримечательностей и музеев. В 10 минутах на автомобиле расположен въезд на ЗСД и метро «Приморская».
О квартире
Общая площадь
70.79 м²
Жилая площадь
34.36 м²
Площадь кухни
13.32 м²
Площадь комнат
12.15+22.21 м²
Высота потолков
3 м
Этаж
3
Окна выходят
На улицу
О доме
Год постройки
2026
Этажность
9
Материал постройки
Кирпично-монолитный
Материал перекрытий
Монолитные
Отопление
Центральное
Парковка
Подземная
Расположение
Россия, Санкт-Петербург, территория Гавань
Горный институт
14 мин.
Приморская
27 мин.
Василеостровская
3 мин.
Нарвская
5 мин.
Спортивная
5 мин.
Балтийская
6 мин.
Адмиралтейская
6 мин.
Садовая
6 мин.
Ипотечный калькулятор
Заполните 1 анкету — получите предложения от десятков банков на специальных условиях
Программа ипотеки
Стоимость жилья, ₽
Первый взнос, ₽
Срок кредита
от 5.75%
Ставка
от 198 794 ₽
Платеж в месяц
Расчёт носит информационный характер и не является публичной офертой
Похожие объекты









2-комн. квартира, 81,2 м², 4/6 эт.
Василеостровская
6 мин.









2-комн. квартира, 61,9 м², 5/6 эт.
Василеостровская
6 мин.









3-комн. квартира, 77,0 м², 6/6 эт.
Василеостровская
6 мин.






3-комн. квартира, 62 м², 6/9 эт.
Горный институт
14 мин.
Консультант по новостройкам
31 599 301 ₽
446 381 ₽/м²






