Продается 3-комн. квартира, 57.85 м²
Россия, Санкт-Петербург, 10-я Советская улица, 27
Площадь Восстания
17 мин.
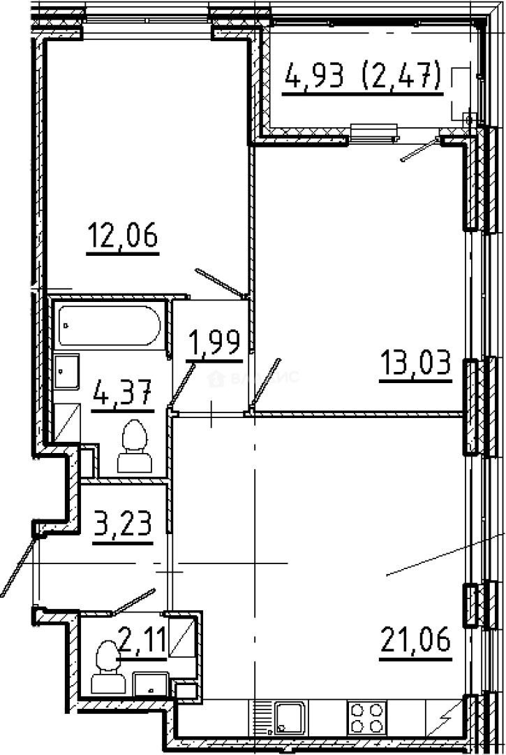
57.85 м²
Общая площадь
25.09 м²
Жилая площадь
21.06 м²
Площадь кухни
2 из 10
Этаж
Описание
В клубном доме представлена 281 квартира с множеством планировочных решений: в наличии двухуровневые квартиры, квартиры с террасами и окнами в ванной. Сдаются они без отделки, высотой потолков до 3,32 метров и панорамным остеклением.
Территория клубного дома закрыта и огорожена, имеется контроль доступа и видеонаблюдение. Территория озеленена, спроектированы детские площадки, зоны отдыха и барбекю, спортивная площадка для workout, зона для выгула собак. Для владельцев автомобилей предусмотрен подземный паркинг с доступом из лифта.
Проект находится в историческом районе Пески. Рядом расположены кафе, магазины, аптеки, спортивные клубы, школы и детские сады, медицинские учреждения. В пешей доступности находятся Невская Ратуша, Таврический сад, Смольный собор. До метро «Площадь Александра Невского» и «Площадь Восстания» можно добраться за 15 минут пешком.
О квартире
Общая площадь
57.85 м²
Жилая площадь
25.09 м²
Площадь кухни
21.06 м²
Площадь комнат
12.06+13.03 м²
Высота потолков
2.74 м
Этаж
2
Окна выходят
На улицу
О доме
Год постройки
2027
Этажность
10
Материал постройки
Монолитный
Парковка
Подземная
Расположение
Россия, Санкт-Петербург, 10-я Советская улица, 27
Площадь Восстания
17 мин.
Новочеркасская
21 мин.
Маяковская
21 мин.
Чернышевская
21 мин.
Владимирская
27 мин.
Достоевская
28 мин.
Ипотечный калькулятор
Заполните 1 анкету — получите предложения от десятков банков на специальных условиях
Программа ипотеки
Стоимость жилья, ₽
Первый взнос, ₽
Срок кредита
от 5.75%
Ставка
от 189 881 ₽
Платеж в месяц
Расчёт носит информационный характер и не является публичной офертой
Похожие объекты







3-комн. квартира, 56,6 м², 6/10 эт.
Площадь Восстания
17 мин.






3-комн. квартира, 56,7 м², 5/10 эт.
Площадь Восстания
17 мин.






3-комн. квартира, 59,5 м², 3/10 эт.
Площадь Восстания
17 мин.








3-комн. квартира, 61,7 м², 7/10 эт.
Обводный Канал
6 мин.
Консультант по новостройкам
30 182 641 ₽
521 740 ₽/м²










