Купить трехкомнатную квартиру в районе Центральный в Санкт-Петербурге
74 объявления














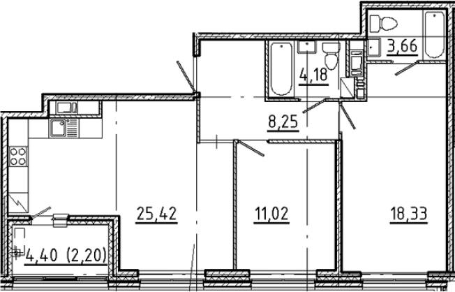
3-комн. квартира·65,6 м²·2/4 эт.
Владимирская
5 мин.
Уникальное предложение в историческом центре Санкт-Петербурга! Продаётся трёхкомнатная квартира площадью 65,6 кв. м на Разъезжей улице, 17В. Кирпичный дом 1917 года постройки отличается своей надёжностью и хорошей звукоизоляцией. Квартира расположена на втором этаже, высота потолков — 2,77 м, что создаёт ощущение простора и свободы. Жилая площадь
























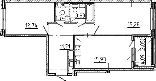
3-комн. квартира·88,2 м²·3/3 эт.
Лиговский проспект
2 мин.
Представляем вашему вниманию уникальное предложение! Адрес: Россия, Санкт-Петербург, улица Черняховского, 32 Описание: Представляем вашему вниманию трёхкомнатную квартиру в историческом центре Санкт-Петербурга. Этот объект недвижимости идеально подойдёт для семей с детьми, пожилых пар, бизнес-профессионалов и инвесторов. Преимущества: - Расположе























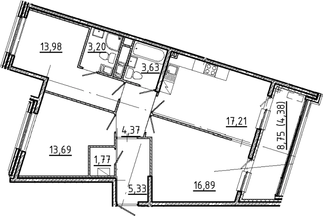
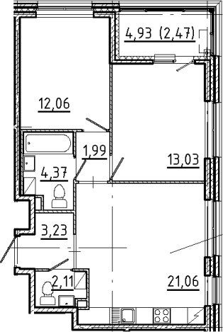
3-комн. квартира·102,7 м²·2/6 эт.
ПРОСТОРНАЯ и УЮТНАЯ 3-комнатная квартира в престижном районе Санкт-Петербурга. О КВАРТИРЕ: -Практичный 2-ой этаж; -КАЧЕСТВЕННЫЙ дизайнерский ремонт; -Удобная планировка с комнатами правильной формы; -Общая площадь 102,7 м²; -Жилая площадь 63,5 м² плюс вместительная прихожая 7,3 м²; -ПРОСТОРНАЯ кухня-гостиная 14 м²; -Санузел совмещенный, площадью

































3-комн. квартира·75,3 м²·3/6 эт.
Владимирская
5 мин.
В продаже просторная 3-комнатная квартира в самом центре Петербурга! В 2019 году заменены все инженерные коммуникации, отопление, водоснабжение, электрика. Сделан капитальный ремонт в 2020 году. Теплая квартира зимой и прохладная в летний период! 3й этаж, отдельный коридор для входа в квартиру. Параметры квартиры: • Площадь: 75,3 м2 • Кухня-гост




3-комн. квартира·117 м²·3/9 эт.
Достоевская
6 мин.
Уникальное предложение на рынке недвижимости Санкт-Петербурга: трёхкомнатная квартира площадью 117 кв. м на улице Правды, 7 — идеальный выбор для большой семьи или тех, кто ценит простор и комфорт. Квартира расположена на третьем этаже девятиэтажного дома 1959 года постройки. Кирпичные стены и железобетонные перекрытия обеспечивают отличную шумо-














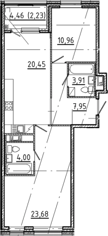
3-комн. квартира·99,3 м²·5/5 эт.
Трехкомнатная квартира в Историческом Центре Санкт-Петербурга! О КВАРТИРЕ: - Общая площадь 99,3 кв.м. - Жилая площадь 54,9 кв.м. - Площадь кухни-гостиной 22,5 кв.м. - Просторный совмещенный с/узел 4,4 - Две гардеробные - 4,0 + 3,0 кв.м. - Хозблок - 2,2 кв.м. - Квартира располагается на последнем 5 этаже из 5-ти - Собственником выполнен ремонт по д
















3-комн. квартира·59 м²·5/6 эт.
Чернышевская
23 мин.
Исключительная квартира в историческом центре Санкт-Петербурга по адресу Смольный проспект, 9 — идеальное предложение для ценителей культуры и комфорта. Просторная трёхкомнатная квартира общей площадью 59 кв. м расположена на пятом этаже шестиэтажного кирпичного дома 1912 года постройки. Квартира угловая, с окнами, выходящими во двор, и изолирован





3-комн. квартира·91,4 м²·1/4 эт.
Идеальная квартира в историческом районе Санкт-Петербурга Расположение Квартира находится на 4-й Советской улице, 23 в Санкт-Петербурге. Это место сочетает в себе историческую атмосферу и современную инфраструктуру. Рядом с домом есть наземная парковка и огороженная территория, что обеспечивает удобство и безопасность. Площадь и планировка Обща































3-комн. квартира·77,5 м²·1/4 эт.
Квapтира в самом cеpдце Cанкт-Пeтербургa! Стратегическая локация для туристов и командировок Историчeский цeнтp, высoкий cпрoc на aренду 5 минут пeшком до Mоcковского вокзала Рядом Невский проспект, метро, кафе, бизнес-центры, идеальные условия для пассивного дохода и быстрой окупаемости О КВАРТИРЕ: Двухсторонняя трехкомнатная квартира Выcотa
















3-комн. квартира·87,7 м²·3/4 эт.
Лиговский проспект
3 мин.
О КВАРТИРЕ: Продается светлая 3-х комнатная квартира площадью 87,7 кв.м на 3-м этаже 4-х этажного кирпичного дома. Квартира с 3-мя изолированными комнатами 12,6, 18,9 и 22,9 кв.м, из окон вид во двор, высота потолков 2,97 метра, кухня 8,2 кв.м, санузел раздельный. Есть зоны хранения в коридоре - три встроенных шкафа. О ДОМЕ: Год постройки 1880.























3-комн. квартира·53,6 м²·1/2 эт.
Площадь Восстания
7 мин.
Уникальное предложение! Продается квартира в двухэтажном отдельно стоящем здании. О квартире -Квартира полностью под ремонт; -На пером этаже одна комната , на втором этаже две комнаты и выход на чердак; -Высокие потолки; -Есть собственный чердак, высотой в человеческий рост; -Имеется подпол, есть возможность «углубить» квартиру; -Окна выходят во



























3-комн. квартира·118 м²·3/5 эт.
Обводный Канал
8 мин.
Эксклюзивное предложение! Продаётся уютная и просторная трёхкомнатная квартира в историческом центре Санкт-Петербурга по адресу: улица Марата, 76. Это идеальное место для тех, кто ценит комфорт и качество жизни. Квартира находится на третьем этаже пятиэтажного кирпичного дома 1898 года постройки с железобетонными перекрытиями. В квартире выполне







3-комн. квартира·71,0 м²·7/10 эт.
Площадь Восстания
17 мин.
Проект предоставляет собой дом высотой 10 этажей. Фасады корпусов отделаны светло пестрым облицовочным кирпичом и декоративными панелями в теплых серых тонах. Во входных группах и МОП выполнена отделка в едином стиле по индивидуальному дизайн-проекту. Все входы в здание расположены на уровне земли и удобны для передвижения людей. На 1 этаже находит






3-комн. квартира·80,0 м²·9/10 эт.
Площадь Восстания
17 мин.
Проект предоставляет собой дом высотой 10 этажей. Фасады корпусов отделаны светло пестрым облицовочным кирпичом и декоративными панелями в теплых серых тонах. Во входных группах и МОП выполнена отделка в едином стиле по индивидуальному дизайн-проекту. Все входы в здание расположены на уровне земли и удобны для передвижения людей. На 1 этаже находит







3-комн. квартира·56,6 м²·6/10 эт.
Площадь Восстания
17 мин.
Проект предоставляет собой дом высотой 10 этажей. Фасады корпусов отделаны светло пестрым облицовочным кирпичом и декоративными панелями в теплых серых тонах. Во входных группах и МОП выполнена отделка в едином стиле по индивидуальному дизайн-проекту. Все входы в здание расположены на уровне земли и удобны для передвижения людей. На 1 этаже находит






3-комн. квартира·71,3 м²·4/10 эт.
Площадь Восстания
17 мин.
Проект предоставляет собой дом высотой 10 этажей. Фасады корпусов отделаны светло пестрым облицовочным кирпичом и декоративными панелями в теплых серых тонах. Во входных группах и МОП выполнена отделка в едином стиле по индивидуальному дизайн-проекту. Все входы в здание расположены на уровне земли и удобны для передвижения людей. На 1 этаже находит







3-комн. квартира·70,9 м²·6/10 эт.
Площадь Восстания
17 мин.
Проект предоставляет собой дом высотой 10 этажей. Фасады корпусов отделаны светло пестрым облицовочным кирпичом и декоративными панелями в теплых серых тонах. Во входных группах и МОП выполнена отделка в едином стиле по индивидуальному дизайн-проекту. Все входы в здание расположены на уровне земли и удобны для передвижения людей. На 1 этаже находит







3-комн. квартира·80,2 м²·4/10 эт.
Площадь Восстания
17 мин.
Проект предоставляет собой дом высотой 10 этажей. Фасады корпусов отделаны светло пестрым облицовочным кирпичом и декоративными панелями в теплых серых тонах. Во входных группах и МОП выполнена отделка в едином стиле по индивидуальному дизайн-проекту. Все входы в здание расположены на уровне земли и удобны для передвижения людей. На 1 этаже находит







3-комн. квартира·61,2 м²·8/10 эт.
Площадь Восстания
17 мин.
Проект предоставляет собой дом высотой 10 этажей. Фасады корпусов отделаны светло пестрым облицовочным кирпичом и декоративными панелями в теплых серых тонах. Во входных группах и МОП выполнена отделка в едином стиле по индивидуальному дизайн-проекту. Все входы в здание расположены на уровне земли и удобны для передвижения людей. На 1 этаже находит







3-комн. квартира·71,0 м²·8/10 эт.
Площадь Восстания
17 мин.
Проект предоставляет собой дом высотой 10 этажей. Фасады корпусов отделаны светло пестрым облицовочным кирпичом и декоративными панелями в теплых серых тонах. Во входных группах и МОП выполнена отделка в едином стиле по индивидуальному дизайн-проекту. Все входы в здание расположены на уровне земли и удобны для передвижения людей. На 1 этаже находит







3-комн. квартира·80,1 м²·8/10 эт.
Площадь Восстания
17 мин.
Проект предоставляет собой дом высотой 10 этажей. Фасады корпусов отделаны светло пестрым облицовочным кирпичом и декоративными панелями в теплых серых тонах. Во входных группах и МОП выполнена отделка в едином стиле по индивидуальному дизайн-проекту. Все входы в здание расположены на уровне земли и удобны для передвижения людей. На 1 этаже находит






3-комн. квартира·56,7 м²·5/10 эт.
Площадь Восстания
17 мин.
Проект предоставляет собой дом высотой 10 этажей. Фасады корпусов отделаны светло пестрым облицовочным кирпичом и декоративными панелями в теплых серых тонах. Во входных группах и МОП выполнена отделка в едином стиле по индивидуальному дизайн-проекту. Все входы в здание расположены на уровне земли и удобны для передвижения людей. На 1 этаже находит






3-комн. квартира·59,5 м²·3/10 эт.
Площадь Восстания
17 мин.
Проект предоставляет собой дом высотой 10 этажей. Фасады корпусов отделаны светло пестрым облицовочным кирпичом и декоративными панелями в теплых серых тонах. Во входных группах и МОП выполнена отделка в едином стиле по индивидуальному дизайн-проекту. Все входы в здание расположены на уровне земли и удобны для передвижения людей. На 1 этаже находит



3-комн. квартира·87,3 м²·2/9 эт.
Площадь Восстания
17 мин.
ЖК "BAKUNINA 33" — комплекс, расположенный в исторической части Санкт-Петербурга. В пешей доступности от комплекса находятся основные достопримечательности и музеи культурной столицы. Для пеших прогулок в 10-ти минутах от комплекса находится Невский проспект, а для любителей провести время на природе недалеко от городской суеты, рядом находится Овс







3-комн. квартира·70,8 м²·8/10 эт.
Площадь Восстания
17 мин.
Проект предоставляет собой дом высотой 10 этажей. Фасады корпусов отделаны светло пестрым облицовочным кирпичом и декоративными панелями в теплых серых тонах. Во входных группах и МОП выполнена отделка в едином стиле по индивидуальному дизайн-проекту. Все входы в здание расположены на уровне земли и удобны для передвижения людей. На 1 этаже находит







3-комн. квартира·71,3 м²·7/10 эт.
Площадь Восстания
17 мин.
Проект предоставляет собой дом высотой 10 этажей. Фасады корпусов отделаны светло пестрым облицовочным кирпичом и декоративными панелями в теплых серых тонах. Во входных группах и МОП выполнена отделка в едином стиле по индивидуальному дизайн-проекту. Все входы в здание расположены на уровне земли и удобны для передвижения людей. На 1 этаже находит






3-комн. квартира·71,0 м²·3/10 эт.
Площадь Восстания
17 мин.
Проект предоставляет собой дом высотой 10 этажей. Фасады корпусов отделаны светло пестрым облицовочным кирпичом и декоративными панелями в теплых серых тонах. Во входных группах и МОП выполнена отделка в едином стиле по индивидуальному дизайн-проекту. Все входы в здание расположены на уровне земли и удобны для передвижения людей. На 1 этаже находит







3-комн. квартира·61,4 м²·5/10 эт.
Площадь Восстания
17 мин.
Проект предоставляет собой дом высотой 10 этажей. Фасады корпусов отделаны светло пестрым облицовочным кирпичом и декоративными панелями в теплых серых тонах. Во входных группах и МОП выполнена отделка в едином стиле по индивидуальному дизайн-проекту. Все входы в здание расположены на уровне земли и удобны для передвижения людей. На 1 этаже находит







3-комн. квартира·71,3 м²·5/10 эт.
Площадь Восстания
17 мин.
Проект предоставляет собой дом высотой 10 этажей. Фасады корпусов отделаны светло пестрым облицовочным кирпичом и декоративными панелями в теплых серых тонах. Во входных группах и МОП выполнена отделка в едином стиле по индивидуальному дизайн-проекту. Все входы в здание расположены на уровне земли и удобны для передвижения людей. На 1 этаже находит






3-комн. квартира·71,1 м²·8/10 эт.
Площадь Восстания
17 мин.
Проект предоставляет собой дом высотой 10 этажей. Фасады корпусов отделаны светло пестрым облицовочным кирпичом и декоративными панелями в теплых серых тонах. Во входных группах и МОП выполнена отделка в едином стиле по индивидуальному дизайн-проекту. Все входы в здание расположены на уровне земли и удобны для передвижения людей. На 1 этаже находит







3-комн. квартира·60,0 м²·7/10 эт.
Площадь Восстания
17 мин.
Проект предоставляет собой дом высотой 10 этажей. Фасады корпусов отделаны светло пестрым облицовочным кирпичом и декоративными панелями в теплых серых тонах. Во входных группах и МОП выполнена отделка в едином стиле по индивидуальному дизайн-проекту. Все входы в здание расположены на уровне земли и удобны для передвижения людей. На 1 этаже находит







3-комн. квартира·61,3 м²·6/10 эт.
Площадь Восстания
17 мин.
Проект предоставляет собой дом высотой 10 этажей. Фасады корпусов отделаны светло пестрым облицовочным кирпичом и декоративными панелями в теплых серых тонах. Во входных группах и МОП выполнена отделка в едином стиле по индивидуальному дизайн-проекту. Все входы в здание расположены на уровне земли и удобны для передвижения людей. На 1 этаже находит






3-комн. квартира·56,6 м²·7/10 эт.
Площадь Восстания
17 мин.
Проект предоставляет собой дом высотой 10 этажей. Фасады корпусов отделаны светло пестрым облицовочным кирпичом и декоративными панелями в теплых серых тонах. Во входных группах и МОП выполнена отделка в едином стиле по индивидуальному дизайн-проекту. Все входы в здание расположены на уровне земли и удобны для передвижения людей. На 1 этаже находит







3-комн. квартира·71,0 м²·5/10 эт.
Площадь Восстания
17 мин.
Проект предоставляет собой дом высотой 10 этажей. Фасады корпусов отделаны светло пестрым облицовочным кирпичом и декоративными панелями в теплых серых тонах. Во входных группах и МОП выполнена отделка в едином стиле по индивидуальному дизайн-проекту. Все входы в здание расположены на уровне земли и удобны для передвижения людей. На 1 этаже находит







3-комн. квартира·71,0 м²·4/10 эт.
Площадь Восстания
17 мин.
Проект предоставляет собой дом высотой 10 этажей. Фасады корпусов отделаны светло пестрым облицовочным кирпичом и декоративными панелями в теплых серых тонах. Во входных группах и МОП выполнена отделка в едином стиле по индивидуальному дизайн-проекту. Все входы в здание расположены на уровне земли и удобны для передвижения людей. На 1 этаже находит






3-комн. квартира·57,9 м²·2/10 эт.
Площадь Восстания
17 мин.
Проект предоставляет собой дом высотой 10 этажей. Фасады корпусов отделаны светло пестрым облицовочным кирпичом и декоративными панелями в теплых серых тонах. Во входных группах и МОП выполнена отделка в едином стиле по индивидуальному дизайн-проекту. Все входы в здание расположены на уровне земли и удобны для передвижения людей. На 1 этаже находит







3-комн. квартира·80,2 м²·7/10 эт.
Площадь Восстания
17 мин.
Проект предоставляет собой дом высотой 10 этажей. Фасады корпусов отделаны светло пестрым облицовочным кирпичом и декоративными панелями в теплых серых тонах. Во входных группах и МОП выполнена отделка в едином стиле по индивидуальному дизайн-проекту. Все входы в здание расположены на уровне земли и удобны для передвижения людей. На 1 этаже находит







3-комн. квартира·61,4 м²·3/10 эт.
Площадь Восстания
17 мин.
Проект предоставляет собой дом высотой 10 этажей. Фасады корпусов отделаны светло пестрым облицовочным кирпичом и декоративными панелями в теплых серых тонах. Во входных группах и МОП выполнена отделка в едином стиле по индивидуальному дизайн-проекту. Все входы в здание расположены на уровне земли и удобны для передвижения людей. На 1 этаже находит







3-комн. квартира·61,2 м²·9/10 эт.
Площадь Восстания
17 мин.
Проект предоставляет собой дом высотой 10 этажей. Фасады корпусов отделаны светло пестрым облицовочным кирпичом и декоративными панелями в теплых серых тонах. Во входных группах и МОП выполнена отделка в едином стиле по индивидуальному дизайн-проекту. Все входы в здание расположены на уровне земли и удобны для передвижения людей. На 1 этаже находит






3-комн. квартира·60,0 м²·5/10 эт.
Площадь Восстания
17 мин.
Проект предоставляет собой дом высотой 10 этажей. Фасады корпусов отделаны светло пестрым облицовочным кирпичом и декоративными панелями в теплых серых тонах. Во входных группах и МОП выполнена отделка в едином стиле по индивидуальному дизайн-проекту. Все входы в здание расположены на уровне земли и удобны для передвижения людей. На 1 этаже находит