Продается Студия, 19.1 м²
Россия, Санкт-Петербург, Фрунзенский район, муниципальный округ Волковское
Бухарестская
9 мин.
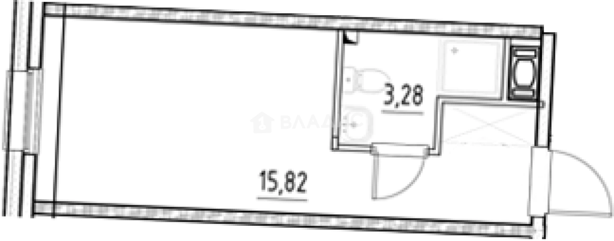
19.1 м²
Общая площадь
15.82 м²
Жилая площадь
7 из 13
Этаж
Описание
В жилом комплексе предложено множество планировочных решений: в наличии квартиры, как классического типа, так и европланировки. Сдаются они с подчистовой или чистовой отделкой, стандартными окнами и высотой потолков до 2,89 метров.
Внутренняя инфраструктура жилого комплекса ориентирована на обеспечение комфортного проживания жильцов. На закрытой территории комплекса ведется круглосуточное видеонаблюдение, организован двор парк. На первых этажах расположены коммерческие помещения. Для владельцев автомобилей предусмотрен отдельный многоуровневый паркинг.
Жилой комплекс расположен в отдалении от промышленных предприятий. В пешей доступности продуктовые магазины, школа, детский сад, университет, колледж, а также остановки общественного транспорта. До выезда на КАД 15 минут транспортом. Станция метро «Бухарестская» в 10 минутах пешком.
О квартире
Общая площадь
19.1 м²
Жилая площадь
15.82 м²
Площадь комнат
15.82 м²
Высота потолков
2.6 м
Этаж
7
Окна выходят
На улицу
О доме
Год постройки
2028
Этажность
13
Материал постройки
Монолитный
Материал перекрытий
Монолитные
Отопление
Центральное
Парковка
Многоуровневая
Расположение
Россия, Санкт-Петербург, Фрунзенский район, муниципальный округ Волковское
Бухарестская
9 мин.
Международная
16 мин.
Волковская
26 мин.
Елизаровская
4 мин.
Проспект Славы
4 мин.
Ломоносовская
5 мин.
Электросила
5 мин.
Московские ворота
5 мин.
Ипотечный калькулятор
Заполните 1 анкету — получите предложения от десятков банков на специальных условиях
Программа ипотеки
Стоимость жилья, ₽
Первый взнос, ₽
Срок кредита
от 5.75%
Ставка
от 35 984 ₽
Платеж в месяц
Расчёт носит информационный характер и не является публичной офертой
Похожие объекты






Студия, 17,8 м², 11/13 эт.
Бухарестская
9 мин.






Студия, 19,1 м², 5/13 эт.
Бухарестская
9 мин.






Студия, 17,8 м², 11/13 эт.
Бухарестская
9 мин.






Студия, 20,0 м², 11/13 эт.
Бухарестская
9 мин.
Консультант по новостройкам
5 719 782 ₽
299 466 ₽/м²







