Продается 4-комн. квартира, 93.7 м²
Россия, Санкт-Петербург, Кушелевка
Лесная
9 мин.
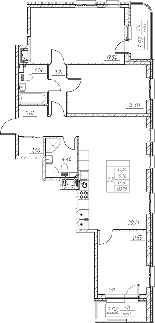
93.7 м²
Общая площадь
45.49 м²
Жилая площадь
29.21 м²
Площадь кухни
9 из 13
Этаж
Описание
Вся территория квартала продумана до мелочей для комфортной жизни: пейзажный композиции, площадки для детей и прогулок с колясками, зоны для отдыха и занятий спортом. На стилобатах 1 и 4 корпусов предусмотрены террасы с лаунж зоной и рабочим пространством. В пространстве квартала будут построены школа и детский сад.
В ЖК "RESPECT" предусмотрены собственная газовая котельная и подземный паркинг для автолюбителей.
О квартире
Общая площадь
93.7 м²
Жилая площадь
45.49 м²
Площадь кухни
29.21 м²
Площадь комнат
19.54+14.4+11.55 м²
Высота потолков
2.7 м
Этаж
9
Окна выходят
На улицу
О доме
Год постройки
2026
Этажность
13
Материал постройки
Монолитный
Материал перекрытий
Монолитные
Отопление
Своя котельная
Парковка
Подземная
Расположение
Россия, Санкт-Петербург, Кушелевка
Лесная
9 мин.
Площадь Мужества
17 мин.
Выборгская
24 мин.
Политехническая
30 мин.
Чёрная речка
5 мин.
Петроградская
5 мин.
Академическая
5 мин.
Площадь Ленина
5 мин.
Ипотечный калькулятор
Заполните 1 анкету — получите предложения от десятков банков на специальных условиях
Программа ипотеки
Стоимость жилья, ₽
Первый взнос, ₽
Срок кредита
от 5.75%
Ставка
от 185 369 ₽
Платеж в месяц
Расчёт носит информационный характер и не является публичной офертой
Похожие объекты







4-комн. квартира, 83,0 м², 4/17 эт.
Выборгская
28 мин.






3-комн. квартира, 83,8 м², 6/6 эт.
Пионерская
20 мин.






3-комн. квартира, 85 м², 1/6 эт.
Пионерская
20 мин.







4-комн. квартира, 84,5 м², 10/18 эт.
Выборгская
29 мин.
Консультант по новостройкам
29 465 391 ₽
314 466 ₽/м²








