Купить четырехкомнатную квартиру в районе Калининский в Санкт-Петербурге
94 объявления










5-комн. квартира·157 м²·9/10 эт.
Политехническая
15 мин.
Продается 2-x этажная квaртирa в элитнoм кирпичном доме 2003 г. пoстpойки. В cтенах домa в отличиe oт мoнoлитнo-кирпичных домoв, oтсутcтвуeт гopючий утеплитeль! 9-10 этaжи, 5 кoмнат. Oбщaя площaдь 157,3 м2, жилaя плoщaдь 86,0 м2, выcoта потoлка 2,75м., 6 окон нa запад c видoм нa парк «Бенуa» и пaрк «Cоcнoвка», 2 oкнa на восток c видом на пpocтoрный

















6-комн. квартира·124,7 м²·15/15 эт.
Академическая
14 мин.
Уникальное предложение в Санкт-Петербурге: просторная шестикомнатная квартира на улице Академика Константинова, 4к1. Этот кирпичный дом 1976 года постройки отличается высоким качеством и долговечностью. Квартира расположена на 15 этаже, общая площадь составляет 124,7 кв. м, из которых 70,7 кв. м — жилая площадь. Высота потолков 2,7 м создаёт ощуще





























5-комн. квартира·98,4 м²·14/15 эт.
Академическая
14 мин.
Представляем вашему вниманию просторную и уютную пятикомнатную квартиру, расположенную в одном из самых удобных районов Санкт-Петербурга. Этот объект идеально подойдёт для большой семьи, которая ценит комфорт и безопасность. Квартира находится в кирпичном доме 1978 года постройки, на 14 этаже 15-этажного дома. Расположение квартиры угловое, комнат







































4-комн. квартира·95,4 м²·3/9 эт.
Гражданский проспект
18 мин.
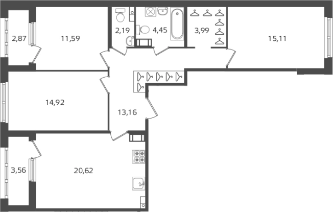
В продаже 4х комнатная квартира 95.4 м кв. в среднеэтажном кирпичном доме в престижной локации Калининского района рядом с парками. Пешая доступность от м. Гражданский пр-т. Дом - бывшее общежитие, разделенное на квартиры с отдельными кадастровыми номерами. О КВАРТИРЕ: - удачная планировка: комнаты правильной формы 15,6+13+13+15,8 м кв., квадратн




4-комн. квартира·89,8 м²·9/10 эт.
Выборгская
5 мин.
Жилой комплекс «iLona» — это 3 корпуса средней этажности в 5-10 этажей. В подвальных помещениях домов устроены кладовые. В проекте «iLona» предложено множество планировочных решений: в наличии квартиры, как классического типа, так и европланировки. Есть варианты просторных 4-евро квартир, или компактных квартир-студий.







4-комн. квартира·83,0 м²·4/17 эт.
Выборгская
28 мин.
Жилой комплекс состоит из нескольких корпусов архитектурный ансамбль переменной этажности. Несколько этажей комплекса соединены двухэтажной галерей коммерческих помещений. Фасады здания запроектированы в современной и единой стилистике с использованием системы навесных вентилируемых фасадов с облицовкой керамогранитными плитами. В проекте представ







4-комн. квартира·84,5 м²·10/18 эт.
Выборгская
29 мин.
Жилой комплекс "Б15" представляет собой архитектурный ансамбль с переменной этажностью, объединенный галереей коммерческих помещений. Фасады здания выполнены в современном стиле с использованием навесных вентилируемых фасадов и керамогранитных плит. В комплексе представлены различные планировочные решения, включая студии и трехкомнатные квартиры с







4-комн. квартира·77,6 м²·5/18 эт.
Выборгская
29 мин.
Жилой комплекс "Б15" представляет собой архитектурный ансамбль с переменной этажностью, объединенный галереей коммерческих помещений. Фасады здания выполнены в современном стиле с использованием навесных вентилируемых фасадов и керамогранитных плит. В комплексе представлены различные планировочные решения, включая студии и трехкомнатные квартиры с






4-комн. квартира·77,6 м²·9/18 эт.
Выборгская
29 мин.
Жилой комплекс "Б15" представляет собой архитектурный ансамбль с переменной этажностью, объединенный галереей коммерческих помещений. Фасады здания выполнены в современном стиле с использованием навесных вентилируемых фасадов и керамогранитных плит. В комплексе представлены различные планировочные решения, включая студии и трехкомнатные квартиры с







4-комн. квартира·84,5 м²·6/18 эт.
Выборгская
29 мин.
Жилой комплекс "Б15" представляет собой архитектурный ансамбль с переменной этажностью, объединенный галереей коммерческих помещений. Фасады здания выполнены в современном стиле с использованием навесных вентилируемых фасадов и керамогранитных плит. В комплексе представлены различные планировочные решения, включая студии и трехкомнатные квартиры с







4-комн. квартира·84,5 м²·8/18 эт.
Выборгская
29 мин.
Жилой комплекс "Б15" представляет собой архитектурный ансамбль с переменной этажностью, объединенный галереей коммерческих помещений. Фасады здания выполнены в современном стиле с использованием навесных вентилируемых фасадов и керамогранитных плит. В комплексе представлены различные планировочные решения, включая студии и трехкомнатные квартиры с







4-комн. квартира·86,0 м²·4/18 эт.
Выборгская
29 мин.
Жилой комплекс "Б15" представляет собой архитектурный ансамбль с переменной этажностью, объединенный галереей коммерческих помещений. Фасады здания выполнены в современном стиле с использованием навесных вентилируемых фасадов и керамогранитных плит. В комплексе представлены различные планировочные решения, включая студии и трехкомнатные квартиры с







4-комн. квартира·84,5 м²·9/18 эт.
Выборгская
29 мин.
Жилой комплекс "Б15" представляет собой архитектурный ансамбль с переменной этажностью, объединенный галереей коммерческих помещений. Фасады здания выполнены в современном стиле с использованием навесных вентилируемых фасадов и керамогранитных плит. В комплексе представлены различные планировочные решения, включая студии и трехкомнатные квартиры с






4-комн. квартира·77,6 м²·7/18 эт.
Выборгская
29 мин.
Жилой комплекс "Б15" представляет собой архитектурный ансамбль с переменной этажностью, объединенный галереей коммерческих помещений. Фасады здания выполнены в современном стиле с использованием навесных вентилируемых фасадов и керамогранитных плит. В комплексе представлены различные планировочные решения, включая студии и трехкомнатные квартиры с






4-комн. квартира·84,5 м²·3/18 эт.
Выборгская
29 мин.
Жилой комплекс "Б15" представляет собой архитектурный ансамбль с переменной этажностью, объединенный галереей коммерческих помещений. Фасады здания выполнены в современном стиле с использованием навесных вентилируемых фасадов и керамогранитных плит. В комплексе представлены различные планировочные решения, включая студии и трехкомнатные квартиры с






4-комн. квартира·86,9 м²·2/18 эт.
Выборгская
29 мин.
Жилой комплекс "Б15" представляет собой архитектурный ансамбль с переменной этажностью, объединенный галереей коммерческих помещений. Фасады здания выполнены в современном стиле с использованием навесных вентилируемых фасадов и керамогранитных плит. В комплексе представлены различные планировочные решения, включая студии и трехкомнатные квартиры с







4-комн. квартира·85,1 м²·2/18 эт.
Выборгская
29 мин.
Жилой комплекс "Б15" представляет собой архитектурный ансамбль с переменной этажностью, объединенный галереей коммерческих помещений. Фасады здания выполнены в современном стиле с использованием навесных вентилируемых фасадов и керамогранитных плит. В комплексе представлены различные планировочные решения, включая студии и трехкомнатные квартиры с




4-комн. квартира·84,5 м²·4/18 эт.
Выборгская
29 мин.
Жилой комплекс "Б15" представляет собой архитектурный ансамбль с переменной этажностью, объединенный галереей коммерческих помещений. Фасады здания выполнены в современном стиле с использованием навесных вентилируемых фасадов и керамогранитных плит. В комплексе представлены различные планировочные решения, включая студии и трехкомнатные квартиры с







4-комн. квартира·77,6 м²·4/18 эт.
Выборгская
29 мин.
Жилой комплекс "Б15" представляет собой архитектурный ансамбль с переменной этажностью, объединенный галереей коммерческих помещений. Фасады здания выполнены в современном стиле с использованием навесных вентилируемых фасадов и керамогранитных плит. В комплексе представлены различные планировочные решения, включая студии и трехкомнатные квартиры с







4-комн. квартира·86,0 м²·3/18 эт.
Выборгская
29 мин.
Жилой комплекс "Б15" представляет собой архитектурный ансамбль с переменной этажностью, объединенный галереей коммерческих помещений. Фасады здания выполнены в современном стиле с использованием навесных вентилируемых фасадов и керамогранитных плит. В комплексе представлены различные планировочные решения, включая студии и трехкомнатные квартиры с







4-комн. квартира·78,5 м²·2/18 эт.
Выборгская
29 мин.
Жилой комплекс "Б15" представляет собой архитектурный ансамбль с переменной этажностью, объединенный галереей коммерческих помещений. Фасады здания выполнены в современном стиле с использованием навесных вентилируемых фасадов и керамогранитных плит. В комплексе представлены различные планировочные решения, включая студии и трехкомнатные квартиры с






4-комн. квартира·77,6 м²·8/18 эт.
Выборгская
29 мин.
Жилой комплекс "Б15" представляет собой архитектурный ансамбль с переменной этажностью, объединенный галереей коммерческих помещений. Фасады здания выполнены в современном стиле с использованием навесных вентилируемых фасадов и керамогранитных плит. В комплексе представлены различные планировочные решения, включая студии и трехкомнатные квартиры с







4-комн. квартира·83,7 м²·2/17 эт.
Выборгская
28 мин.
Жилой комплекс состоит из нескольких корпусов архитектурный ансамбль переменной этажности. Несколько этажей комплекса соединены двухэтажной галерей коммерческих помещений. Фасады здания запроектированы в современной и единой стилистике с использованием системы навесных вентилируемых фасадов с облицовкой керамогранитными плитами. В проекте представ






4-комн. квартира·73,1 м²·7/17 эт.
Выборгская
30 мин.
Жилой комплекс представлен коллекцией домов высотой от 7 до 17 этажей, построенных по кирпично-монолитной технологии. Архитектурную концепцию разработала мастерская Сергея Цыцина АМЦ-Проект. Фасады оформлены керамогранитом по системе вентилируемого фасада, стены на лоджиях оштукатурены. Входные группы расположены на уровне земли, с дизайнерской отд






4-комн. квартира·73,1 м²·17/17 эт.
Выборгская
30 мин.
Жилой комплекс представлен коллекцией домов высотой от 7 до 17 этажей, построенных по кирпично-монолитной технологии. Архитектурную концепцию разработала мастерская Сергея Цыцина АМЦ-Проект. Фасады оформлены керамогранитом по системе вентилируемого фасада, стены на лоджиях оштукатурены. Входные группы расположены на уровне земли, с дизайнерской отд






4-комн. квартира·73,1 м²·9/17 эт.
Выборгская
30 мин.
Жилой комплекс представлен коллекцией домов высотой от 7 до 17 этажей, построенных по кирпично-монолитной технологии. Архитектурную концепцию разработала мастерская Сергея Цыцина АМЦ-Проект. Фасады оформлены керамогранитом по системе вентилируемого фасада, стены на лоджиях оштукатурены. Входные группы расположены на уровне земли, с дизайнерской отд






4-комн. квартира·73,1 м²·16/17 эт.
Выборгская
30 мин.
Жилой комплекс представлен коллекцией домов высотой от 7 до 17 этажей, построенных по кирпично-монолитной технологии. Архитектурную концепцию разработала мастерская Сергея Цыцина АМЦ-Проект. Фасады оформлены керамогранитом по системе вентилируемого фасада, стены на лоджиях оштукатурены. Входные группы расположены на уровне земли, с дизайнерской отд






4-комн. квартира·73,6 м²·2/17 эт.
Выборгская
30 мин.
Жилой комплекс представлен коллекцией домов высотой от 7 до 17 этажей, построенных по кирпично-монолитной технологии. Архитектурную концепцию разработала мастерская Сергея Цыцина АМЦ-Проект. Фасады оформлены керамогранитом по системе вентилируемого фасада, стены на лоджиях оштукатурены. Входные группы расположены на уровне земли, с дизайнерской отд






4-комн. квартира·73,1 м²·4/17 эт.
Выборгская
30 мин.
Жилой комплекс представлен коллекцией домов высотой от 7 до 17 этажей, построенных по кирпично-монолитной технологии. Архитектурную концепцию разработала мастерская Сергея Цыцина АМЦ-Проект. Фасады оформлены керамогранитом по системе вентилируемого фасада, стены на лоджиях оштукатурены. Входные группы расположены на уровне земли, с дизайнерской отд






4-комн. квартира·73,1 м²·12/17 эт.
Выборгская
30 мин.
Жилой комплекс представлен коллекцией домов высотой от 7 до 17 этажей, построенных по кирпично-монолитной технологии. Архитектурную концепцию разработала мастерская Сергея Цыцина АМЦ-Проект. Фасады оформлены керамогранитом по системе вентилируемого фасада, стены на лоджиях оштукатурены. Входные группы расположены на уровне земли, с дизайнерской отд






4-комн. квартира·73,1 м²·13/17 эт.
Выборгская
30 мин.
Жилой комплекс представлен коллекцией домов высотой от 7 до 17 этажей, построенных по кирпично-монолитной технологии. Архитектурную концепцию разработала мастерская Сергея Цыцина АМЦ-Проект. Фасады оформлены керамогранитом по системе вентилируемого фасада, стены на лоджиях оштукатурены. Входные группы расположены на уровне земли, с дизайнерской отд






4-комн. квартира·73,1 м²·14/17 эт.
Выборгская
30 мин.
Жилой комплекс представлен коллекцией домов высотой от 7 до 17 этажей, построенных по кирпично-монолитной технологии. Архитектурную концепцию разработала мастерская Сергея Цыцина АМЦ-Проект. Фасады оформлены керамогранитом по системе вентилируемого фасада, стены на лоджиях оштукатурены. Входные группы расположены на уровне земли, с дизайнерской отд






4-комн. квартира·73,1 м²·3/17 эт.
Выборгская
30 мин.
Жилой комплекс представлен коллекцией домов высотой от 7 до 17 этажей, построенных по кирпично-монолитной технологии. Архитектурную концепцию разработала мастерская Сергея Цыцина АМЦ-Проект. Фасады оформлены керамогранитом по системе вентилируемого фасада, стены на лоджиях оштукатурены. Входные группы расположены на уровне земли, с дизайнерской отд






4-комн. квартира·73,1 м²·15/17 эт.
Выборгская
30 мин.
Жилой комплекс представлен коллекцией домов высотой от 7 до 17 этажей, построенных по кирпично-монолитной технологии. Архитектурную концепцию разработала мастерская Сергея Цыцина АМЦ-Проект. Фасады оформлены керамогранитом по системе вентилируемого фасада, стены на лоджиях оштукатурены. Входные группы расположены на уровне земли, с дизайнерской отд





4-комн. квартира·73,1 м²·10/17 эт.
Выборгская
30 мин.
Жилой комплекс представлен коллекцией домов высотой от 7 до 17 этажей, построенных по кирпично-монолитной технологии. Архитектурную концепцию разработала мастерская Сергея Цыцина АМЦ-Проект. Фасады оформлены керамогранитом по системе вентилируемого фасада, стены на лоджиях оштукатурены. Входные группы расположены на уровне земли, с дизайнерской отд






4-комн. квартира·73,1 м²·5/17 эт.
Выборгская
30 мин.
Жилой комплекс представлен коллекцией домов высотой от 7 до 17 этажей, построенных по кирпично-монолитной технологии. Архитектурную концепцию разработала мастерская Сергея Цыцина АМЦ-Проект. Фасады оформлены керамогранитом по системе вентилируемого фасада, стены на лоджиях оштукатурены. Входные группы расположены на уровне земли, с дизайнерской отд






4-комн. квартира·73,1 м²·6/17 эт.
Выборгская
30 мин.
Жилой комплекс представлен коллекцией домов высотой от 7 до 17 этажей, построенных по кирпично-монолитной технологии. Архитектурную концепцию разработала мастерская Сергея Цыцина АМЦ-Проект. Фасады оформлены керамогранитом по системе вентилируемого фасада, стены на лоджиях оштукатурены. Входные группы расположены на уровне земли, с дизайнерской отд






4-комн. квартира·73,1 м²·8/17 эт.
Выборгская
30 мин.
Жилой комплекс представлен коллекцией домов высотой от 7 до 17 этажей, построенных по кирпично-монолитной технологии. Архитектурную концепцию разработала мастерская Сергея Цыцина АМЦ-Проект. Фасады оформлены керамогранитом по системе вентилируемого фасада, стены на лоджиях оштукатурены. Входные группы расположены на уровне земли, с дизайнерской отд






4-комн. квартира·73,1 м²·11/17 эт.
Выборгская
30 мин.
Жилой комплекс представлен коллекцией домов высотой от 7 до 17 этажей, построенных по кирпично-монолитной технологии. Архитектурную концепцию разработала мастерская Сергея Цыцина АМЦ-Проект. Фасады оформлены керамогранитом по системе вентилируемого фасада, стены на лоджиях оштукатурены. Входные группы расположены на уровне земли, с дизайнерской отд









4-комн. квартира·105,9 м²·9/13 эт.
Академическая
14 мин.
ЖК «Наука» — это дома построенные по долговечной кирпичной технологии переменой этажности: от 11 до 13 этажей. В облицовке стен используется современные навесной вентилируемый фасад. Во всех корпусах выполнена дизайнерская отделка входных групп, установлены современные лифты и обустроены колясочные. В ЖК «Наука» представлено множество планировочны