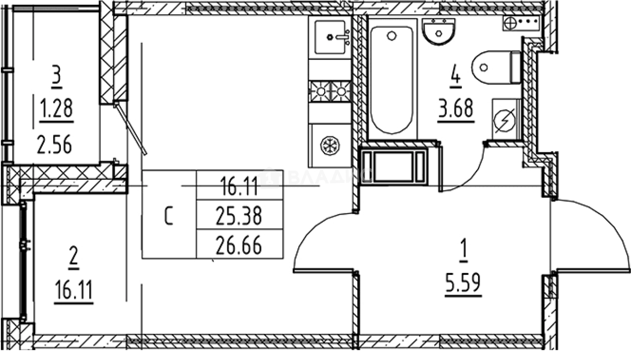
Продается Студия, 25.38 м²
Россия, Санкт-Петербург, Пушкинский район, посёлок Шушары
25.38 м²
Общая площадь
16.11 м²
Жилая площадь
11 из 12
Этаж
Описание
В проекте представлено большое количество планировочных решений — от студий до просторных 3х-комнатных квартир. Все лоты сдаются с подчистовой отделкой, высотой потолков 2,72 метра, дополнительно выполнена шумоизоляция внутренних перегородок и межэтажных перекрытий.
Территория комплекса благоустроена и закрыта от автомобилей, ведется видеонаблюдение, имеется собственный пост охраны. В жилом комплексе предусмотрен детский клуб, оборудованный для игр, творчества и организации детских мероприятий. Также на территории находятся площадки для занятий спортом и места для отдыха.
Жилой комплекс расположен в районе с хорошо развитой инфраструктурой — в пешей доступности имеется все необходимое: продовольственные магазины, школы, детские сады, торговые центры. Дорога до станции метро «Купчино» занимает 15 минут на автомобиле.
О квартире
Общая площадь
25.38 м²
Жилая площадь
16.11 м²
Площадь комнат
16.11 м²
Высота потолков
2.7199999999999998 м
Этаж
11
Окна выходят
На улицу
О доме
Год постройки
2025
Этажность
12
Материал постройки
Кирпично-монолитный
Материал перекрытий
Монолитные
Отопление
Центральное
Парковка
Подземная
Расположение
Россия, Санкт-Петербург, Пушкинский район, посёлок Шушары
Ипотечный калькулятор
Заполните 1 анкету — получите предложения от десятков банков на специальных условиях
Программа ипотеки
Стоимость жилья, ₽
Первый взнос, ₽
Срок кредита
от 5.75%
Ставка
от 37 158 ₽
Платеж в месяц
Расчёт носит информационный характер и не является публичной офертой
Консультант по новостройкам
5 906 464 ₽
232 722 ₽/м²


















