Продается 3-комн. квартира, 67.7 м²
Россия, Санкт-Петербург, Невский район, муниципальный округ № 54
Улица Дыбенко
9 мин.
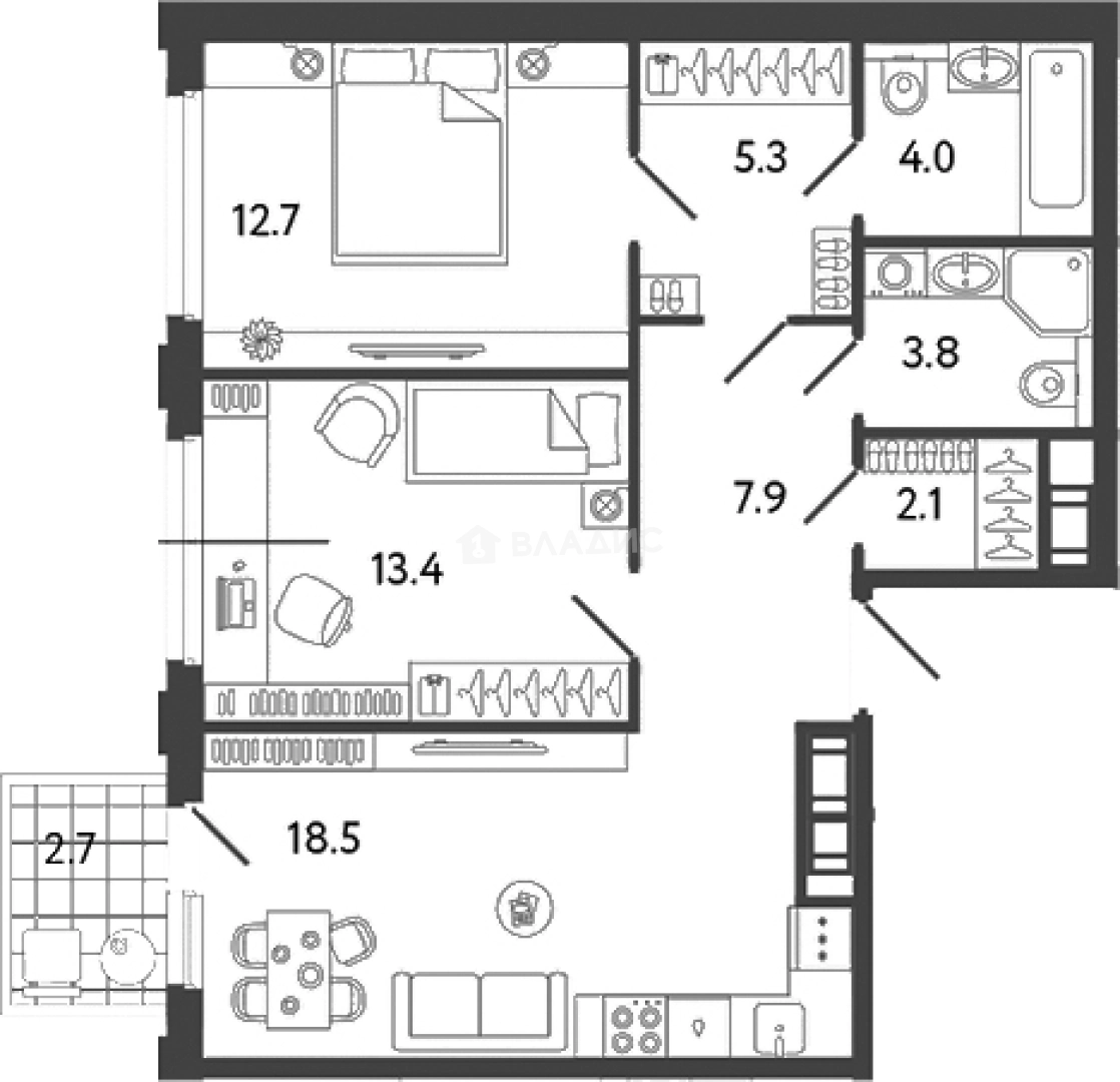
67.7 м²
Общая площадь
26.1 м²
Жилая площадь
18.5 м²
Площадь кухни
11 из 22
Этаж
Описание
Планировочные решения включают студии и квартиры с 1–4 комнатами площадью от 23 до 85 кв. м. Все помещения передаются в отделке White Box. Внутри выполнена «плавающая» стяжка пола, стены выровнены, отштукатурены и зашпаклеваны, откосы облицованы гипсокартоном. Смонтированы розетки, выключатели, квартирный электрический щит, домофонная панель. Выполнена разводка слаботочных и силовых кабельных линий.
На закрытой охраняемой территории реализована концепция двора без машин. Двор разделен на 2 зоны — для уединенного отдыха и для активного общения. Благоустройство включает игровые и спортивные площадки, пешеходные мостики, навесы, беседки, зону с музыкальным терменвоксом и клуб с коворкингом. В холлах — арт-объекты, уличная библиотека, места для встреч. Подземный паркинг на 601 место оснащен станцией для зарядки электромобилей и местами для хранения велосипедов. На всей территории действует Wi-Fi, установлены камеры видеонаблюдения и система контроля доступа.
Комплекс расположен в Невском районе Санкт-Петербурга, в 10 минутах пешком от метро Улица Дыбенко. До Московского вокзала — 25 минут транспортом, до центра города — около 30 минут. В пешей доступности — парк им. Есенина, школы, гимназия, поликлиника, гипермаркеты и строящийся детский сад на 120 мест. В 10 минутах транспортом находится торговый комплекс МЕГА Дыбенко.
О квартире
Общая площадь
67.7 м²
Жилая площадь
26.1 м²
Площадь кухни
18.5 м²
Площадь комнат
12.7+13.4 м²
Высота потолков
2.73 м
Этаж
11
Окна выходят
На улицу
О доме
Год постройки
2028
Этажность
22
Материал постройки
Монолитный
Парковка
Подземная
Расположение
Россия, Санкт-Петербург, Невский район, муниципальный округ № 54
Улица Дыбенко
9 мин.
Проспект Большевиков
30 мин.
Елизаровская
6 мин.
Ломоносовская
6 мин.
Пролетарская
6 мин.
Ладожская
7 мин.
Новочеркасская
8 мин.
Обухово
9 мин.
Ипотечный калькулятор
Заполните 1 анкету — получите предложения от десятков банков на специальных условиях
Программа ипотеки
Стоимость жилья, ₽
Первый взнос, ₽
Срок кредита
от 5.75%
Ставка
от 136 104 ₽
Платеж в месяц
Расчёт носит информационный характер и не является публичной офертой
Похожие объекты






3-комн. квартира, 73,4 м², 11/22 эт.
Улица Дыбенко
9 мин.






3-комн. квартира, 73,4 м², 10/22 эт.
Улица Дыбенко
9 мин.






3-комн. квартира, 73,4 м², 11/22 эт.
Улица Дыбенко
9 мин.






3-комн. квартира, 62,8 м², 13/22 эт.
Улица Дыбенко
9 мин.
Консультант по новостройкам
21 634 446 ₽
319 564 ₽/м²












