Купить трехкомнатную квартиру в районе Невский в Санкт-Петербурге
742 объявления









3-комн. квартира·60 м²·3/5 эт.
🏡 Продаётся трёхкомнатная квартира в Санкт-Петербурге 🏡 Представляем вашему вниманию отличную трёхкомнатную квартиру по адресу: улица Шелгунова, 6к1. Это прекрасный выбор для семьи, которая ценит комфорт и удобство. Основные характеристики: - Год постройки: 1961. - Материал постройки: панельный. - Материал перекрытий: ж/б плиты. - Отопление: це








3-комн. квартира·59,2 м²·8/9 эт.
Проспект Большевиков
17 мин.
Ищете уютное и комфортное жилье в Санкт-Петербурге? Уникальная возможность – продается трехкомнатная квартира по адресу: проспект Солидарности, 13к2. Такие квартиры быстро находят своих хозяев. Не упустите шанс стать обладателем жилья в удобном и спокойном районе! Квартира расположена на 8 этаже девятиэтажного панельного дома, построенного в 1972



































3-комн. квартира·62,5 м²·4/9 эт.
Ломоносовская
24 мин.
В прямой продаже просторная трехкомнатная квартира в Невском районе! 25 минут и Вы на Невском проспекте! О квартире: + Общая площадь 62,5 кв.м., 3 просторные комнаты - 11,2 кв.м., 17,0 кв.м., 9,6 кв.м. + Квартира в хорошем состоянии, установлены современные пластиковые стеклопакеты, выполнен косметический ремонт + 2 кладовки, просторный коридор























3-комн. квартира·61 м²·4/5 эт.
Ломоносовская
19 мин.
🏡 Продаётся уютная 3-комнатная квартира в Санкт-Петербурге на ул. Кибальчича, 6 Ключевые параметры: Площадь: 61 м² (жилая — 43,6 м², кухня — 8 м²) Этаж: 4/5, панельный дом 1964 года, потолки 2.6 м Ремонт: свежий косметический, светлые комнаты, раздельный санузел Окна: во двор и на улицу — много естественного света Парковка: есть возле дома

















































3-комн. квартира·79,2 м²·7/15 эт.
Проспект Большевиков
19 мин.
🏙 Новая 3-комнатная квартира с дизайнерским ремонтом в Санкт-Петербурге 📍 Союзный проспект, 4 | 79,2 м² | 7 этаж | Монолит | 2014 год ⸻ 💎 Абсолютно новая квартира — никто не жил Ключевое преимущество: всё абсолютно новое — от мебели до инженерии. 🔹 Выполнен дизайнерский ремонт из качественных материалов 🔹 Установлена дорогая кухня с совреме







3-комн. квартира·65,4 м²·5/23 эт.
Елизаровская
17 мин.
Жилой квартал представляет собой проект комплексного развития городской территории. Корпуса, расположенные на первой линии, построены по кирпично-монолитной технологии, светлые фасады оформлены в стиле сталинского ампира. Планировки различаются в каждом корпусе, они представлены как классическими так и европланировками. В некоторых квартирах спрое







3-комн. квартира·65,6 м²·15/23 эт.
Елизаровская
17 мин.
Жилой квартал представляет собой проект комплексного развития городской территории. Корпуса, расположенные на первой линии, построены по кирпично-монолитной технологии, светлые фасады оформлены в стиле сталинского ампира. Планировки различаются в каждом корпусе, они представлены как классическими так и европланировками. В некоторых квартирах спрое








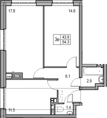
3-комн. квартира·51,6 м²·2/15 эт.
Улица Дыбенко
20 мин.
Жилой комплекс «Wings» представляет собой многофункциональный апарт-отель, рассчитанный на 280 квартир. Объект состоит из двух корпусов высотой в 15 этажей. Наружные стены оформлены с применением материалов разных фактур – стекла и вентилируемого фасада из керамогранита. Апартаменты имеют функциональные планировки от 24,85 до 53,5 кв.м, высота пот







3-комн. квартира·55,3 м²·6/11 эт.
Елизаровская
16 мин.
Комплекс апартаментов «Zoom на Неве» включает в себя 2 корпуса переменной этажности: от 11 до 17 этажей. Сдержанные и монументальные фасады в неоклассическом стиле, выполнены в едином стиле с окружающими кварталами. В каждом корпусе спроектированы места для хранения колясок, велосипедов и самокатов. В проекте предусмотрено дизайнерское лобби с зоно







3-комн. квартира·55,3 м²·4/11 эт.
Елизаровская
16 мин.
Комплекс апартаментов «Zoom на Неве» включает в себя 2 корпуса переменной этажности: от 11 до 17 этажей. Сдержанные и монументальные фасады в неоклассическом стиле, выполнены в едином стиле с окружающими кварталами. В каждом корпусе спроектированы места для хранения колясок, велосипедов и самокатов. В проекте предусмотрено дизайнерское лобби с зоно






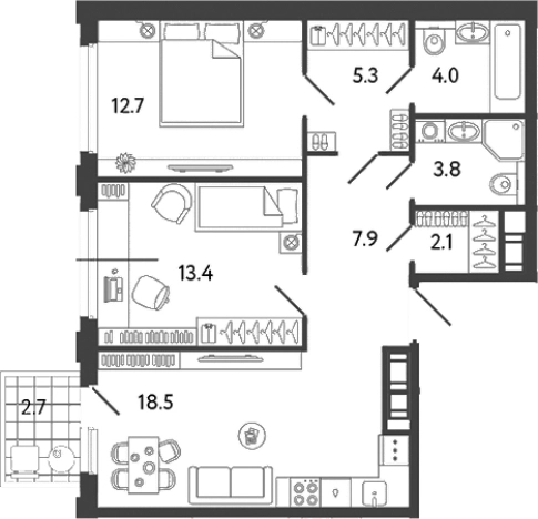
3-комн. квартира·67,7 м²·11/22 эт.
Улица Дыбенко
9 мин.
Жилой комплекс состоит из 6 корпусов высотой до 22 этажей, построенных по монолитной технологии. Архитектура вдохновлена авангардом XX века: фасады оформлены в геометричном ритме с использованием декоративной штукатурки, клинкерной плитки и контрастных акцентов. В проекте предусмотрены увеличенные окна, входные группы с витражным остеклением и пото






3-комн. квартира·73,2 м²·12/22 эт.
Улица Дыбенко
9 мин.
Жилой комплекс состоит из 6 корпусов высотой до 22 этажей, построенных по монолитной технологии. Архитектура вдохновлена авангардом XX века: фасады оформлены в геометричном ритме с использованием декоративной штукатурки, клинкерной плитки и контрастных акцентов. В проекте предусмотрены увеличенные окна, входные группы с витражным остеклением и пото






3-комн. квартира·64,7 м²·7/22 эт.
Улица Дыбенко
9 мин.
Жилой комплекс состоит из 6 корпусов высотой до 22 этажей, построенных по монолитной технологии. Архитектура вдохновлена авангардом XX века: фасады оформлены в геометричном ритме с использованием декоративной штукатурки, клинкерной плитки и контрастных акцентов. В проекте предусмотрены увеличенные окна, входные группы с витражным остеклением и пото






3-комн. квартира·63,8 м²·7/22 эт.
Улица Дыбенко
9 мин.
Жилой комплекс состоит из 6 корпусов высотой до 22 этажей, построенных по монолитной технологии. Архитектура вдохновлена авангардом XX века: фасады оформлены в геометричном ритме с использованием декоративной штукатурки, клинкерной плитки и контрастных акцентов. В проекте предусмотрены увеличенные окна, входные группы с витражным остеклением и пото






3-комн. квартира·73,4 м²·9/22 эт.
Улица Дыбенко
9 мин.
Жилой комплекс состоит из 6 корпусов высотой до 22 этажей, построенных по монолитной технологии. Архитектура вдохновлена авангардом XX века: фасады оформлены в геометричном ритме с использованием декоративной штукатурки, клинкерной плитки и контрастных акцентов. В проекте предусмотрены увеличенные окна, входные группы с витражным остеклением и пото






3-комн. квартира·64,7 м²·2/22 эт.
Улица Дыбенко
9 мин.
Жилой комплекс состоит из 6 корпусов высотой до 22 этажей, построенных по монолитной технологии. Архитектура вдохновлена авангардом XX века: фасады оформлены в геометричном ритме с использованием декоративной штукатурки, клинкерной плитки и контрастных акцентов. В проекте предусмотрены увеличенные окна, входные группы с витражным остеклением и пото






3-комн. квартира·64,7 м²·4/22 эт.
Улица Дыбенко
9 мин.
Жилой комплекс состоит из 6 корпусов высотой до 22 этажей, построенных по монолитной технологии. Архитектура вдохновлена авангардом XX века: фасады оформлены в геометричном ритме с использованием декоративной штукатурки, клинкерной плитки и контрастных акцентов. В проекте предусмотрены увеличенные окна, входные группы с витражным остеклением и пото






3-комн. квартира·73,2 м²·12/22 эт.
Улица Дыбенко
9 мин.
Жилой комплекс состоит из 6 корпусов высотой до 22 этажей, построенных по монолитной технологии. Архитектура вдохновлена авангардом XX века: фасады оформлены в геометричном ритме с использованием декоративной штукатурки, клинкерной плитки и контрастных акцентов. В проекте предусмотрены увеличенные окна, входные группы с витражным остеклением и пото






3-комн. квартира·64,7 м²·20/22 эт.
Улица Дыбенко
9 мин.
Жилой комплекс состоит из 6 корпусов высотой до 22 этажей, построенных по монолитной технологии. Архитектура вдохновлена авангардом XX века: фасады оформлены в геометричном ритме с использованием декоративной штукатурки, клинкерной плитки и контрастных акцентов. В проекте предусмотрены увеличенные окна, входные группы с витражным остеклением и пото






3-комн. квартира·57,5 м²·4/22 эт.
Улица Дыбенко
9 мин.
Жилой комплекс состоит из 6 корпусов высотой до 22 этажей, построенных по монолитной технологии. Архитектура вдохновлена авангардом XX века: фасады оформлены в геометричном ритме с использованием декоративной штукатурки, клинкерной плитки и контрастных акцентов. В проекте предусмотрены увеличенные окна, входные группы с витражным остеклением и пото






3-комн. квартира·67,6 м²·10/22 эт.
Улица Дыбенко
9 мин.
Жилой комплекс состоит из 6 корпусов высотой до 22 этажей, построенных по монолитной технологии. Архитектура вдохновлена авангардом XX века: фасады оформлены в геометричном ритме с использованием декоративной штукатурки, клинкерной плитки и контрастных акцентов. В проекте предусмотрены увеличенные окна, входные группы с витражным остеклением и пото




3-комн. квартира·64,7 м²·18/22 эт.
Улица Дыбенко
9 мин.
Жилой комплекс состоит из 6 корпусов высотой до 22 этажей, построенных по монолитной технологии. Архитектура вдохновлена авангардом XX века: фасады оформлены в геометричном ритме с использованием декоративной штукатурки, клинкерной плитки и контрастных акцентов. В проекте предусмотрены увеличенные окна, входные группы с витражным остеклением и пото






3-комн. квартира·67,5 м²·2/22 эт.
Улица Дыбенко
9 мин.
Жилой комплекс состоит из 6 корпусов высотой до 22 этажей, построенных по монолитной технологии. Архитектура вдохновлена авангардом XX века: фасады оформлены в геометричном ритме с использованием декоративной штукатурки, клинкерной плитки и контрастных акцентов. В проекте предусмотрены увеличенные окна, входные группы с витражным остеклением и пото






3-комн. квартира·64,7 м²·5/22 эт.
Улица Дыбенко
9 мин.
Жилой комплекс состоит из 6 корпусов высотой до 22 этажей, построенных по монолитной технологии. Архитектура вдохновлена авангардом XX века: фасады оформлены в геометричном ритме с использованием декоративной штукатурки, клинкерной плитки и контрастных акцентов. В проекте предусмотрены увеличенные окна, входные группы с витражным остеклением и пото






3-комн. квартира·67,6 м²·5/22 эт.
Улица Дыбенко
9 мин.
Жилой комплекс состоит из 6 корпусов высотой до 22 этажей, построенных по монолитной технологии. Архитектура вдохновлена авангардом XX века: фасады оформлены в геометричном ритме с использованием декоративной штукатурки, клинкерной плитки и контрастных акцентов. В проекте предусмотрены увеличенные окна, входные группы с витражным остеклением и пото






3-комн. квартира·57,2 м²·5/22 эт.
Улица Дыбенко
9 мин.
Жилой комплекс состоит из 6 корпусов высотой до 22 этажей, построенных по монолитной технологии. Архитектура вдохновлена авангардом XX века: фасады оформлены в геометричном ритме с использованием декоративной штукатурки, клинкерной плитки и контрастных акцентов. В проекте предусмотрены увеличенные окна, входные группы с витражным остеклением и пото






3-комн. квартира·64,7 м²·13/22 эт.
Улица Дыбенко
9 мин.
Жилой комплекс состоит из 6 корпусов высотой до 22 этажей, построенных по монолитной технологии. Архитектура вдохновлена авангардом XX века: фасады оформлены в геометричном ритме с использованием декоративной штукатурки, клинкерной плитки и контрастных акцентов. В проекте предусмотрены увеличенные окна, входные группы с витражным остеклением и пото






3-комн. квартира·64,7 м²·17/22 эт.
Улица Дыбенко
9 мин.
Жилой комплекс состоит из 6 корпусов высотой до 22 этажей, построенных по монолитной технологии. Архитектура вдохновлена авангардом XX века: фасады оформлены в геометричном ритме с использованием декоративной штукатурки, клинкерной плитки и контрастных акцентов. В проекте предусмотрены увеличенные окна, входные группы с витражным остеклением и пото






3-комн. квартира·64,7 м²·6/22 эт.
Улица Дыбенко
9 мин.
Жилой комплекс состоит из 6 корпусов высотой до 22 этажей, построенных по монолитной технологии. Архитектура вдохновлена авангардом XX века: фасады оформлены в геометричном ритме с использованием декоративной штукатурки, клинкерной плитки и контрастных акцентов. В проекте предусмотрены увеличенные окна, входные группы с витражным остеклением и пото






3-комн. квартира·67,6 м²·11/22 эт.
Улица Дыбенко
9 мин.
Жилой комплекс состоит из 6 корпусов высотой до 22 этажей, построенных по монолитной технологии. Архитектура вдохновлена авангардом XX века: фасады оформлены в геометричном ритме с использованием декоративной штукатурки, клинкерной плитки и контрастных акцентов. В проекте предусмотрены увеличенные окна, входные группы с витражным остеклением и пото






3-комн. квартира·67,7 м²·13/22 эт.
Улица Дыбенко
9 мин.
Жилой комплекс состоит из 6 корпусов высотой до 22 этажей, построенных по монолитной технологии. Архитектура вдохновлена авангардом XX века: фасады оформлены в геометричном ритме с использованием декоративной штукатурки, клинкерной плитки и контрастных акцентов. В проекте предусмотрены увеличенные окна, входные группы с витражным остеклением и пото





3-комн. квартира·57,3 м²·7/22 эт.
Улица Дыбенко
9 мин.
Жилой комплекс состоит из 6 корпусов высотой до 22 этажей, построенных по монолитной технологии. Архитектура вдохновлена авангардом XX века: фасады оформлены в геометричном ритме с использованием декоративной штукатурки, клинкерной плитки и контрастных акцентов. В проекте предусмотрены увеличенные окна, входные группы с витражным остеклением и пото






3-комн. квартира·64,6 м²·8/17 эт.
Пролетарская
19 мин.
Проект " Лайнеръ" — видовой жилой комплекс выполненный в духе минимализма, в архитектуре которого прослеживается образ Лайнера.В оформлении стен здания используется фасадная тонкослойная штукатурка белого, серо-голубого, серо-коричневого и красно-коричневого цветов и металлические декоративные элементы темно серого цвета. Дом имеет две секции с пе






3-комн. квартира·60,7 м²·7/17 эт.
Пролетарская
19 мин.
Проект " Лайнеръ" — видовой жилой комплекс выполненный в духе минимализма, в архитектуре которого прослеживается образ Лайнера.В оформлении стен здания используется фасадная тонкослойная штукатурка белого, серо-голубого, серо-коричневого и красно-коричневого цветов и металлические декоративные элементы темно серого цвета. Дом имеет две секции с пе






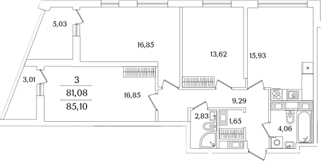
3-комн. квартира·82,5 м²·14/17 эт.
Пролетарская
19 мин.
Проект " Лайнеръ" — видовой жилой комплекс выполненный в духе минимализма, в архитектуре которого прослеживается образ Лайнера.В оформлении стен здания используется фасадная тонкослойная штукатурка белого, серо-голубого, серо-коричневого и красно-коричневого цветов и металлические декоративные элементы темно серого цвета. Дом имеет две секции с пе






3-комн. квартира·64,2 м²·9/17 эт.
Пролетарская
19 мин.
Проект " Лайнеръ" — видовой жилой комплекс выполненный в духе минимализма, в архитектуре которого прослеживается образ Лайнера.В оформлении стен здания используется фасадная тонкослойная штукатурка белого, серо-голубого, серо-коричневого и красно-коричневого цветов и металлические декоративные элементы темно серого цвета. Дом имеет две секции с пе






3-комн. квартира·71,8 м²·13/17 эт.
Пролетарская
19 мин.
Проект " Лайнеръ" — видовой жилой комплекс выполненный в духе минимализма, в архитектуре которого прослеживается образ Лайнера.В оформлении стен здания используется фасадная тонкослойная штукатурка белого, серо-голубого, серо-коричневого и красно-коричневого цветов и металлические декоративные элементы темно серого цвета. Дом имеет две секции с пе






3-комн. квартира·73,5 м²·13/17 эт.
Пролетарская
19 мин.
Проект " Лайнеръ" — видовой жилой комплекс выполненный в духе минимализма, в архитектуре которого прослеживается образ Лайнера.В оформлении стен здания используется фасадная тонкослойная штукатурка белого, серо-голубого, серо-коричневого и красно-коричневого цветов и металлические декоративные элементы темно серого цвета. Дом имеет две секции с пе






3-комн. квартира·79,6 м²·17/17 эт.
Пролетарская
19 мин.
Проект " Лайнеръ" — видовой жилой комплекс выполненный в духе минимализма, в архитектуре которого прослеживается образ Лайнера.В оформлении стен здания используется фасадная тонкослойная штукатурка белого, серо-голубого, серо-коричневого и красно-коричневого цветов и металлические декоративные элементы темно серого цвета. Дом имеет две секции с пе






3-комн. квартира·85,9 м²·12/17 эт.
Пролетарская
19 мин.
Проект " Лайнеръ" — видовой жилой комплекс выполненный в духе минимализма, в архитектуре которого прослеживается образ Лайнера.В оформлении стен здания используется фасадная тонкослойная штукатурка белого, серо-голубого, серо-коричневого и красно-коричневого цветов и металлические декоративные элементы темно серого цвета. Дом имеет две секции с пе