Продается 3-комн. квартира, 48.26 м²
Россия, Санкт-Петербург, Невский район, муниципальный округ Рыбацкое, жилой комплекс Живи в Рыбацком, 5
Рыбацкое
20 мин.
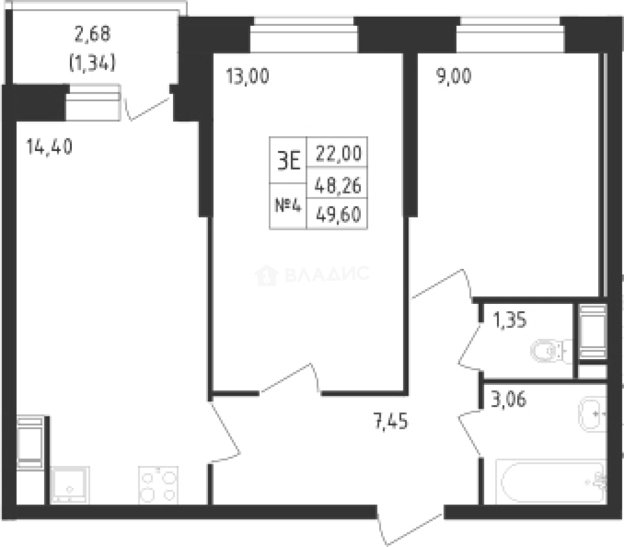
48.26 м²
Общая площадь
22 м²
Жилая площадь
14.4 м²
Площадь кухни
5 из 28
Этаж
Описание
Квартиры передаются дольщикам с чистовой отделкой, в которую входят установка металлических входных дверей, обои под покраску, кафель в санузлах и ламинат в коридоре, гостиной и кухнях. Они представлены классическими и европланировками. Спроектированы окна шириной 1,6 метра. Из окон некоторых квартир на верхних этажах открывается вид на Неву.
На первых этажах предусмотрены коммерческие помещения, в цоколе — подземный паркинг. В состав проекта входят 2 школы на 825 и 1825 мест и 4 детских сада на 160-190 мест и собственный торговый центр. На озелененной территории установлены детские и спортивные площадки, а также гостевые паркинги. До набережной Невы две минуты пешком.
Жилой комплекс расположен в Невском районе СПб. В пешей доступности есть магазины, отделения почты и банков, школы, детские сады. Выезд на КАД находится в 10 минутах транспортом. Метро «Рыбацкое» расположено в 10 минутах транспортом.
О квартире
Общая площадь
48.26 м²
Жилая площадь
22 м²
Площадь кухни
14.4 м²
Площадь комнат
9+13 м²
Высота потолков
2.58 м
Этаж
5
Окна выходят
На улицу
О доме
Год постройки
2026
Этажность
28
Материал постройки
Панельный
Материал перекрытий
Монолитные
Отопление
Центральное
Парковка
Многоуровневая
Расположение
Россия, Санкт-Петербург, Невский район, муниципальный округ Рыбацкое, жилой комплекс Живи в Рыбацком, 5
Рыбацкое
20 мин.
Обухово
7 мин.
Пролетарская
7 мин.
Шушары
8 мин.
Дунайская
10 мин.
Ломоносовская
11 мин.
Проспект Славы
12 мин.
Купчино
13 мин.
Ипотечный калькулятор
Заполните 1 анкету — получите предложения от десятков банков на специальных условиях
Программа ипотеки
Стоимость жилья, ₽
Первый взнос, ₽
Срок кредита
от 5.75%
Ставка
от 83 879 ₽
Платеж в месяц
Расчёт носит информационный характер и не является публичной офертой
Похожие объекты








3-комн. квартира, 53 м², 15/28 эт.
Рыбацкое
20 мин.








3-комн. квартира, 48,4 м², 6/28 эт.
Рыбацкое
20 мин.








2-комн. квартира, 48,2 м², 20/28 эт.
Рыбацкое
20 мин.






3-комн. квартира, 48,9 м², 8/28 эт.
Рыбацкое
20 мин.
Консультант по новостройкам
13 332 985 ₽
276 275 ₽/м²









