Продается 3-комн. квартира, 51.37 м²
Россия, Санкт-Петербург, улица Крыленко, 14с3
Улица Дыбенко
20 мин.
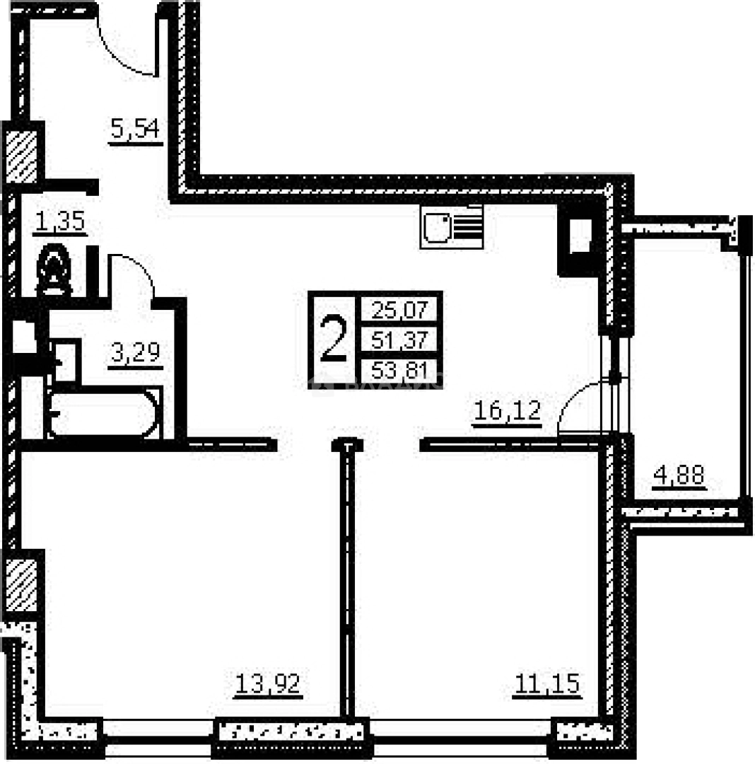
51.37 м²
Общая площадь
25.07 м²
Жилая площадь
16.12 м²
Площадь кухни
2 из 15
Этаж
Описание
Апартаменты имеют функциональные планировки от 24,85 до 53,5 кв.м, высота потолков составляет 2,75 м. Квартиры передаются покупателям с чистовой отделкой.
Жителям доступны гостиничные сервисы и консьерж-услуги. Комплекс обслуживает собственная управляющая компания. На первых этажах находятся коммерческие помещения с кафе и ресторанами. Собственный детский сад, в пешей доступности работает спортивный комплекс с несколькими типами бань, тренажерным залом, детским и взрослым плавательными бассейнами. На территории предусмотрен открытый паркинг.
Жилой комплекс находится в Невском районе. В пешей доступности работают школы, продуктовые магазины, отделения почты и банков. Жители могут гулять в садах и парках в районе. В 15 минутах транспортом находится ТРЦ «МЕГА Дыбенко». Метро «Ул. Дыбенко» расположено в 20 минутах пешком. В 10 минутах пешком находится набережная Невы.
О квартире
Общая площадь
51.37 м²
Жилая площадь
25.07 м²
Площадь кухни
16.12 м²
Площадь комнат
11.15+13.92 м²
Подъезд
1
Этаж
2
Окна выходят
На улицу
О доме
Год постройки
2022
Этажность
15
Материал постройки
Монолитный
Материал перекрытий
Монолитные
Отопление
Центральное
Пассажирских лифтов
1
Грузовых лифтов
1
Парковка
Наземная
Расположение
Россия, Санкт-Петербург, улица Крыленко, 14с3
Улица Дыбенко
20 мин.
Елизаровская
29 мин.
Ломоносовская
30 мин.
Проспект Большевиков
4 мин.
Пролетарская
5 мин.
Ладожская
6 мин.
Новочеркасская
7 мин.
Обухово
8 мин.
Ипотечный калькулятор
Заполните 1 анкету — получите предложения от десятков банков на специальных условиях
Программа ипотеки
Стоимость жилья, ₽
Первый взнос, ₽
Срок кредита
от 5.75%
Ставка
от 55 972 ₽
Платеж в месяц
Расчёт носит информационный характер и не является публичной офертой
Похожие объекты









2-комн. квартира, 44,5 м², 10/13 эт.
Ломоносовская
16 мин.











2-комн. квартира, 44,7 м², 9/13 эт.
Ломоносовская
16 мин.











2-комн. квартира, 44,6 м², 13/13 эт.
Ломоносовская
16 мин.











2-комн. квартира, 52,5 м², 11/13 эт.
Ломоносовская
16 мин.
Консультант по новостройкам
8 896 916 ₽
173 193 ₽/м²


















