Продается 3-комн. квартира, 76.07 м²
Россия, Санкт-Петербург, Невский район, муниципальный округ Народный, жилой комплекс Лайнеръ
Пролетарская
19 мин.
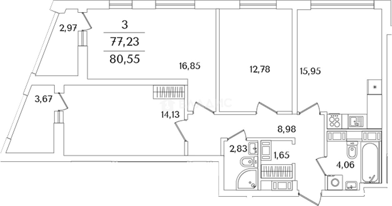
76.07 м²
Общая площадь
43.76 м²
Жилая площадь
15.95 м²
Площадь кухни
15 из 17
Этаж
Описание
Создатели "Лайнера" бюро FUTURA ARCHITECTS создали комфортно пространство для жизни. Из окон многих квартир будут открываться потрясающие виды на Неву и живописные окрестности. В проекте предусмотрено 271 квартир разных метражей – от студий до трехкомнатных, в том числе европланировки с просторной кухней-гостиной. Есть студии с двумя окнами, варианты с террасами, окном в ванной комнате.
О квартире
Общая площадь
76.07 м²
Жилая площадь
43.76 м²
Площадь кухни
15.95 м²
Площадь комнат
12.78+14.13+16.85 м²
Высота потолков
2.8 м
Этаж
15
Окна выходят
На улицу
О доме
Год постройки
2025
Этажность
17
Материал постройки
Монолитный
Материал перекрытий
Монолитные
Отопление
Центральное
Парковка
Подземная
Расположение
Россия, Санкт-Петербург, Невский район, муниципальный округ Народный, жилой комплекс Лайнеръ
Пролетарская
19 мин.
Обухово
4 мин.
Рыбацкое
5 мин.
Ломоносовская
5 мин.
Улица Дыбенко
8 мин.
Дунайская
8 мин.
Елизаровская
8 мин.
Проспект Славы
9 мин.
Ипотечный калькулятор
Заполните 1 анкету — получите предложения от десятков банков на специальных условиях
Программа ипотеки
Стоимость жилья, ₽
Первый взнос, ₽
Срок кредита
от 5.75%
Ставка
от 132 652 ₽
Платеж в месяц
Расчёт носит информационный характер и не является публичной офертой
Похожие объекты






3-комн. квартира, 82,5 м², 14/17 эт.
Пролетарская
19 мин.






3-комн. квартира, 71,8 м², 13/17 эт.
Пролетарская
19 мин.






3-комн. квартира, 73,5 м², 13/17 эт.
Пролетарская
19 мин.






3-комн. квартира, 79,6 м², 17/17 эт.
Пролетарская
19 мин.
Консультант по новостройкам
21 085 771 ₽
277 190 ₽/м²







