Продается 3-комн. квартира, 86.39 м²
Россия, Санкт-Петербург, Невский район, муниципальный округ Народный, жилой комплекс Лайнеръ
Пролетарская
19 мин.
86.39 м²
Общая площадь
50.83 м²
Жилая площадь
14.94 м²
Площадь кухни
13 из 17
Этаж
Описание
Создатели "Лайнера" бюро FUTURA ARCHITECTS создали комфортно пространство для жизни. Из окон многих квартир будут открываться потрясающие виды на Неву и живописные окрестности. В проекте предусмотрено 271 квартир разных метражей – от студий до трехкомнатных, в том числе европланировки с просторной кухней-гостиной. Есть студии с двумя окнами, варианты с террасами, окном в ванной комнате.
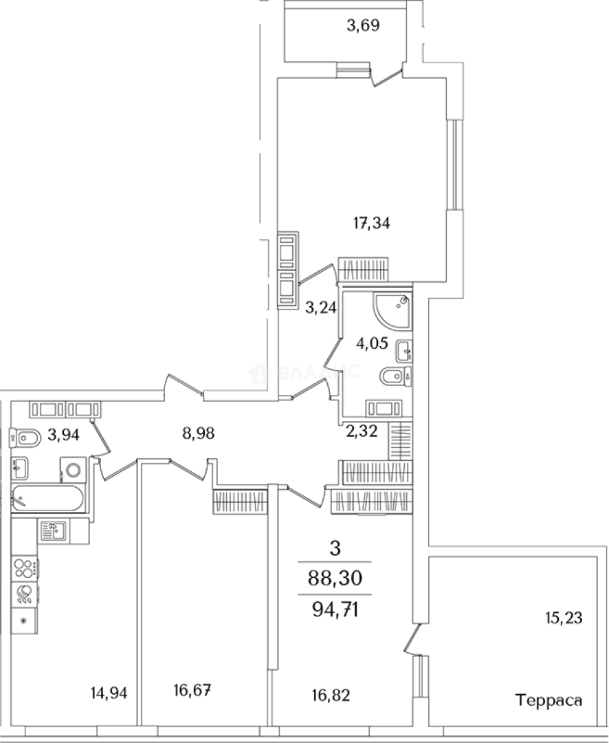
О квартире
Общая площадь
86.39 м²
Жилая площадь
50.83 м²
Площадь кухни
14.94 м²
Площадь комнат
17.34+16.82+16.67 м²
Высота потолков
2.8 м
Этаж
13
Окна выходят
На улицу
О доме
Год постройки
2025
Этажность
17
Материал постройки
Монолитный
Материал перекрытий
Монолитные
Отопление
Центральное
Парковка
Подземная
Расположение
Россия, Санкт-Петербург, Невский район, муниципальный округ Народный, жилой комплекс Лайнеръ
Пролетарская
19 мин.
Обухово
4 мин.
Рыбацкое
5 мин.
Ломоносовская
5 мин.
Улица Дыбенко
8 мин.
Дунайская
8 мин.
Елизаровская
8 мин.
Проспект Славы
9 мин.
Ипотечный калькулятор
Заполните 1 анкету — получите предложения от десятков банков на специальных условиях
Программа ипотеки
Стоимость жилья, ₽
Первый взнос, ₽
Срок кредита
от 5.75%
Ставка
от 171 495 ₽
Платеж в месяц
Расчёт носит информационный характер и не является публичной офертой
Консультант по новостройкам
27 259 971 ₽
315 546 ₽/м²












