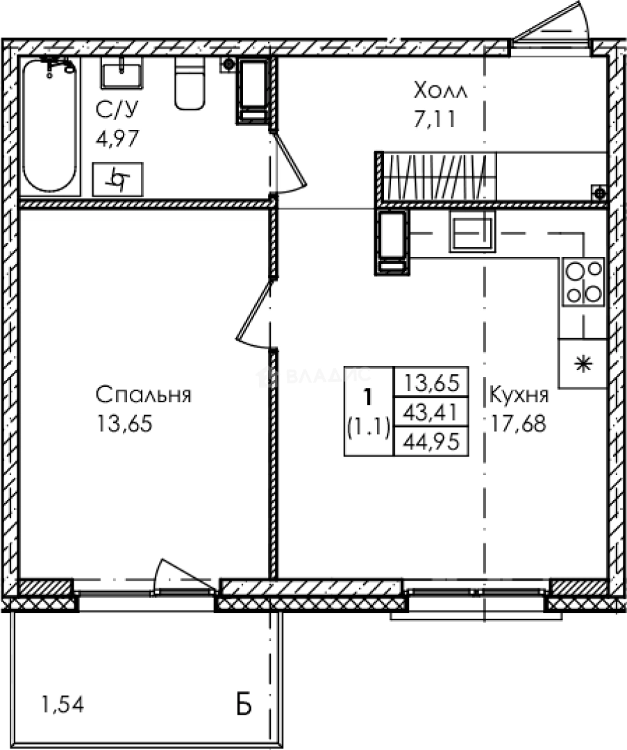
Продается 2-комн. квартира, 43.41 м²
Россия, Санкт-Петербург, Сестрорецк, ЖК Лисино
Беговая
18 мин.
43.41 м²
Общая площадь
13.65 м²
Жилая площадь
17.68 м²
Площадь кухни
4 из 4
Этаж
Описание
В проекте представлено множество планировочных решений: в наличии квартиры, как классического типа, так и европланировки. В жилом комплексе предложены квартиры с саунами, террасами, мастер-спальнями с ванными и гардеробными, угловыми окнами, постирочными. Они сдаются с подчистовой отделкой и высотой потолков до 3,8 метров.
Территория комплекса закрытая, ведется круглосуточная охрана и видеонаблюдение. Дворы образуют приватные пространства, свободные от машин и доступа посторонних. Во дворе расположены 4 детских сада на 810 мест и 2 школы на 1650 мест. На территории предусмотрены прогулочные зоны с местами для отдыха, также имеется зона выгула и тренировки собак. Дома соединяются сетью велодорожек и благоустроенных прогулочных маршрутов. ЖК оснащен многоуровневым паркингом и автостоянкой, также на территории оборудованы станции для заряда электромобилей и парковки велосипедов. Для каждого сезона предусмотрен свой ландшафтный дизайн и растительность, в центре комплекса спроектирован большой парк.
Инфраструктура района развита — в пешей доступности расположены продовольственные магазины, медицинские учреждения, рестораны и кафе. Дорога до метро «Беговая» занимает 15 минут езды на автомобиле.
О квартире
Общая площадь
43.41 м²
Жилая площадь
13.65 м²
Площадь кухни
17.68 м²
Площадь комнат
13.65 м²
Высота потолков
4.5 м
Этаж
4
Окна выходят
На улицу
О доме
Год постройки
2025
Этажность
4
Материал постройки
Кирпично-монолитный
Парковка
Многоуровневая
Расположение
Россия, Санкт-Петербург, Сестрорецк, ЖК Лисино
Беговая
18 мин.
Зенит
20 мин.
Комендантский проспект
22 мин.
Старая Деревня
22 мин.
Крестовский остров
23 мин.
Приморская
23 мин.
Ипотечный калькулятор
Заполните 1 анкету — получите предложения от десятков банков на специальных условиях
Программа ипотеки
Стоимость жилья, ₽
Первый взнос, ₽
Срок кредита
от 5.75%
Ставка
от 92 177 ₽
Платеж в месяц
Расчёт носит информационный характер и не является публичной офертой
Похожие объекты







2-комн. квартира, 42,0 м², 3/4 эт.
Беговая
18 мин.







2-комн. квартира, 42,2 м², 1/4 эт.
Беговая
18 мин.







2-комн. квартира, 39,7 м², 4/4 эт.
Беговая
18 мин.







2-комн. квартира, 42,2 м², 1/4 эт.
Беговая
18 мин.
Консультант по новостройкам
14 652 000 ₽
337 526 ₽/м²




















