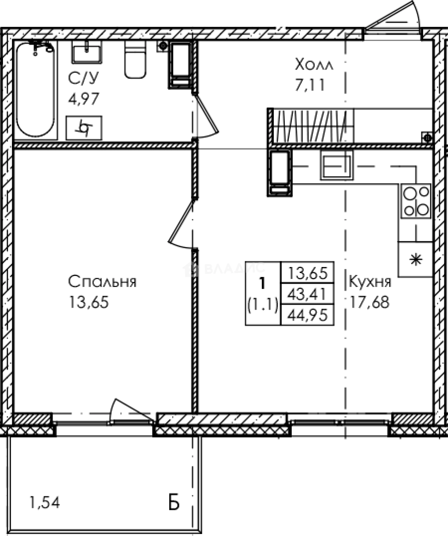
Продается 2-комн. квартира, 43.41 м²
Россия, Санкт-Петербург, Сестрорецк, ЖК Лисино
Беговая
18 мин.
43.41 м²
Общая площадь
13.65 м²
Жилая площадь
17.68 м²
Площадь кухни
4 из 4
Этаж
Описание
Ключевая особенность ЖК "Лисино" — парк посреди жилого квартала, который будет совмещать в себе разнообразную флору и пространство для приятного досуга и отдыха жителей города-парка : площадь с навесом, эко-тропы, пространство для йоги, собственное озеро и живописная набережная вокруг.
Сам комплекс предоставляет широкое разнообразие планировок квартир: от стандартных студий и квартир евроформата до квартир с саунами и мастер-спальнями. Для ценителей уникальных пространств застройщик предлагает варианты урбан-виллы или двухуровневые квартиры!
О квартире
Общая площадь
43.41 м²
Жилая площадь
13.65 м²
Площадь кухни
17.68 м²
Площадь комнат
13.65 м²
Высота потолков
2.75 м
Этаж
4
Окна выходят
На улицу
О доме
Год постройки
2025
Этажность
4
Материал постройки
Кирпично-монолитный
Материал перекрытий
Монолитные
Отопление
Центральное
Парковка
Наземная
Расположение
Россия, Санкт-Петербург, Сестрорецк, ЖК Лисино
Беговая
18 мин.
Зенит
20 мин.
Комендантский проспект
22 мин.
Старая Деревня
22 мин.
Крестовский остров
24 мин.
Приморская
24 мин.
Ипотечный калькулятор
Заполните 1 анкету — получите предложения от десятков банков на специальных условиях
Программа ипотеки
Стоимость жилья, ₽
Первый взнос, ₽
Срок кредита
от 5.75%
Ставка
от 92 177 ₽
Платеж в месяц
Расчёт носит информационный характер и не является публичной офертой
Похожие объекты







2-комн. квартира, 42,0 м², 3/4 эт.
Беговая
18 мин.







2-комн. квартира, 42,2 м², 1/4 эт.
Беговая
18 мин.







2-комн. квартира, 39,7 м², 4/4 эт.
Беговая
18 мин.







2-комн. квартира, 42,2 м², 1/4 эт.
Беговая
18 мин.
Консультант по новостройкам
14 652 000 ₽
337 526 ₽/м²




















