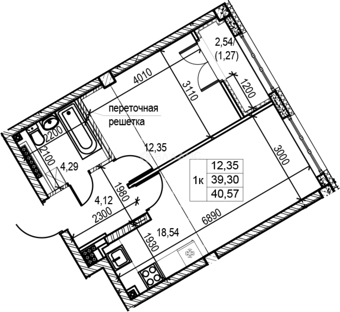
Продается 1-комн. квартира, 39.33 м²
Россия, Санкт-Петербург, Петроградский район, муниципальный округ Петровский, жилой комплекс Нева Резиденс
Чкаловская
17 мин.
39.33 м²
Общая площадь
12.35 м²
Жилая площадь
18.54 м²
Площадь кухни
7 из 8
Этаж
Описание
Покупателям в ЖК «Neva Residence» предложено множество планировочных решений: в наличии квартиры, как классического типа, так и европланировки. А на верхних этажах представлены квартиры с террасами и зимними садами. На лоджиях и балконых установлен теплый алюминиевый профиль с однокамерным стеклопакетом, который позволяет без дополнительного утепления наслаждаться видами и использовать их круглый год.Из окон открываются виды на Малую Неву и историческую застройку Васильевского острова. Они передаются дольщикам без отделки.
В состав комплекса входит детский сад. Для автовладельцев предусмотрен подземный паркинг, на территории которого действует усилитель сигнала GSM и 4G. Также для жителей спроектированы колясочные и келлеры для хранения сезонных вещей. Территория комплекса закрыта от машин и случайных прохожих, и ведется круглосуточное видеонаблюдение. Спроектирована собственная благоустроенная прогулочная набережная по уникальному проекту с озеленением и устройством малых архитектурных форм.
Жилой комплекс расположен на Петровском острове в районе с развитой инфраструктурой: здесь работают детские сады, школы магазины, спортивные центры, конный клуб и стадион «Петровский». В пешей доступности находится Большой Петровский парк с прудом и зонами отдыха.
О квартире
Общая площадь
39.33 м²
Жилая площадь
12.35 м²
Площадь кухни
18.54 м²
Площадь комнат
12.35 м²
Высота потолков
3.15 м
Подъезд
1
Этаж
7
Окна выходят
На улицу
О доме
Год постройки
2023
Этажность
8
Материал постройки
Кирпично-монолитный
Материал перекрытий
Монолитные
Отопление
Центральное
Пассажирских лифтов
1
Грузовых лифтов
1
Парковка
Подземная
Расположение
Россия, Санкт-Петербург, Петроградский район, муниципальный округ Петровский, жилой комплекс Нева Резиденс
Чкаловская
17 мин.
Спортивная
18 мин.
Крестовский остров
20 мин.
Василеостровская
22 мин.
Приморская
26 мин.
Петроградская
4 мин.
Горьковская
4 мин.
Зенит
5 мин.
Ипотечный калькулятор
Заполните 1 анкету — получите предложения от десятков банков на специальных условиях
Программа ипотеки
Стоимость жилья, ₽
Первый взнос, ₽
Срок кредита
от 5.75%
Ставка
от 143 545 ₽
Платеж в месяц
Расчёт носит информационный характер и не является публичной офертой
Похожие объекты








2-комн. квартира, 44,5 м², 2/6 эт.
Василеостровская
6 мин.








1-комн. квартира, 43,7 м², 4/9 эт.
Василеостровская
9 мин.







2-комн. квартира, 40,6 м², 4/12 эт.
Горный институт
12 мин.









1-комн. квартира, 40,4 м², 5/6 эт.
Петроградская
12 мин.
Консультант по новостройкам
22 817 200 ₽
580 148 ₽/м²







