Продается 3-комн. квартира, 55.32 м²
Россия, Санкт-Петербург, Сестрорецк, улица Инструментальщиков, 18
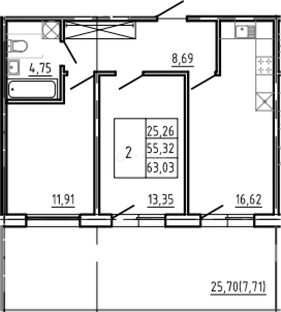
55.32 м²
Общая площадь
25.26 м²
Жилая площадь
16.62 м²
Площадь кухни
1 из 5
Этаж
Описание
В ЖК «Bereg.Курортный» предложено множество планировочных решений: в наличии аппартаменты классического типа, так и европланировки. Сдаются они с подчистовой отделкой Snow. А благодаря большим окнам и просторным балконам, пространство апартаментов круглый год наполнено природным светом.
Территория проекта «Bereg.Курортный» благоустроена в традициях европейских загородных объектов. Концепция разработана студией ландшафтного дизайна DEREVO PARK. На закрытой территории ЖК спроектирована набережная, променад «Зеленый берег» с арт-объектами. Все дворы обращены к полноводному каналу и парку Дубки. В комплексе апартаментов предусмотрен охраняемый подземный паркинг. Здесь же размещаются индивидуальные кладовые. Подземный паркинг спроектирован с учетом современных требований к безопасности. А в часть помещений на первых этажах предусмотрена для размещения объектов собственной инфраструктуры.
Комплекс «Bereg.Курортный»расположен в Курортном районе, у живописного канала, на противоположном берегу которого находится знаменитый исторический парк Дубки. В радиусе 1,5 километров от комплекса расположено несколько супермаркетов, ресторанов и баров, Сестрорецкий яхт-клуб, конный клуб «Дубки», спортивный комплекс и стадион, 3 общеобразовательные школы и 6 детских садов. Сам комплекс расположен непосредственно в лесопарке «Гагарка».
О квартире
Общая площадь
55.32 м²
Жилая площадь
25.26 м²
Площадь кухни
16.62 м²
Площадь комнат
11.91+13.35 м²
Высота потолков
2.8 м
Подъезд
2
Этаж
1
Окна выходят
На улицу
О доме
Год постройки
2024
Этажность
5
Материал постройки
Монолитный
Материал перекрытий
Монолитные
Отопление
Центральное
Пассажирских лифтов
1
Грузовых лифтов
1
Парковка
Подземная
Расположение
Россия, Санкт-Петербург, Сестрорецк, улица Инструментальщиков, 18
Ипотечный калькулятор
Заполните 1 анкету — получите предложения от десятков банков на специальных условиях
Программа ипотеки
Стоимость жилья, ₽
Первый взнос, ₽
Срок кредита
от 5.75%
Ставка
от 191 443 ₽
Платеж в месяц
Расчёт носит информационный характер и не является публичной офертой
Похожие объекты







2-комн. квартира, 56,4 м², 1/5 эт.







2-комн. квартира, 51,3 м², 1/5 эт.







3-комн. квартира, 59,4 м², 1/5 эт.







2-комн. квартира, 51,3 м², 1/5 эт.
Консультант по новостройкам
30 430 884 ₽
550 089 ₽/м²








