Продается 3-комн. квартира, 83.13 м²
Россия, Санкт-Петербург, 7-я линия Васильевского острова, 84
Василеостровская
9 мин.
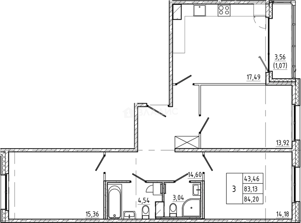
83.13 м²
Общая площадь
43.46 м²
Жилая площадь
17.49 м²
Площадь кухни
5 из 9
Этаж
Описание
В проекте представлено множество планировочных решений, среди которых квартиры с террасами. Все лоты сдаются с базовой отделкой, высотой потолков до 3,36 метров и увеличенными или панорамными окнами.
Территория комплекса благоустроена хорошо — для жителей комплекса предоставляются услуги круглосуточного ресепшена с камерой хранения, доставки и зоной ожидания. Вход на территорию осуществляется через контроль доступа. Для автовладельцев предусмотрен собственный подземный паркинг на 116 мест.
Жилой комплекс расположен в исторической части Васильевского острова с хорошо развитой инфраструктурой. В пешей доступности имеется все необходимое — учебные заведения, медицинские учреждения, продовольственные магазины, кафе, рестораны, музей и театры. Дорога до станции метро «Василеостровская» займет 7 минут пешком, до станции «Спортивная» — 8 минут.
О квартире
Общая площадь
83.13 м²
Жилая площадь
43.46 м²
Площадь кухни
17.49 м²
Площадь комнат
13.92+14.18+15.36 м²
Высота потолков
2.84 м
Этаж
5
Окна выходят
На улицу
О доме
Год постройки
2027
Этажность
9
Материал постройки
Монолитный
Парковка
Подземная
Расположение
Россия, Санкт-Петербург, 7-я линия Васильевского острова, 84
Василеостровская
9 мин.
Спортивная
14 мин.
Чкаловская
22 мин.
Горный институт
24 мин.
Приморская
25 мин.
Крестовский остров
4 мин.
Горьковская
4 мин.
Адмиралтейская
4 мин.
Ипотечный калькулятор
Заполните 1 анкету — получите предложения от десятков банков на специальных условиях
Программа ипотеки
Стоимость жилья, ₽
Первый взнос, ₽
Срок кредита
от 5.75%
Ставка
от 201 064 ₽
Платеж в месяц
Расчёт носит информационный характер и не является публичной офертой
Похожие объекты








3-комн. квартира, 90,1 м², 2/6 эт.
Василеостровская
6 мин.









2-комн. квартира, 81,2 м², 4/6 эт.
Василеостровская
6 мин.









3-комн. квартира, 77,0 м², 6/6 эт.
Василеостровская
6 мин.








3-комн. квартира, 89,1 м², 4/6 эт.
Василеостровская
6 мин.
Консультант по новостройкам
31 960 106 ₽
384 460 ₽/м²







