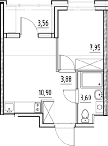
Продается Студия, 26.7 м²
Россия, Санкт-Петербург, Ташкентская улица, 6к2
Московские ворота
3 мин.
26.7 м²
Общая площадь
17.7 м²
Жилая площадь
13 из 16
Этаж
Описание
В проекте «ARTSTUDIO M103» — 485 номеров. Они делятся на пять категорий: Standard, Studio, Superior, Deluxe и Junior Suite в зависимости от площади (от 24 до 52 кв.м.). Высота потолков без учета отделки: 2-ой этаж: 3,34 м; 3-15 жилые этажи - 2,7 м; 16 этаж – 3,25 м.
На территории комплекса установлена многоуровневая система контроля доступа (круглосуточная охрана и видеонаблюдение на всех этажах). Территория благоустроена, на ней проведено озеленение, спроектированы прогулочные дорожки и места отдыха. Для автовладельцев предусмотрена стоянка.
Проект «ARTSTUDIO M103» расположен в Московском районе, на пересечении центральных магистралей города – Московского и Лиговского проспектов. В шаговой доступности площадь и метро «Московские ворота», которая находится в 5 минутах пешком. В Московском районе сосредоточено множество бизнес-центров, магазинов, высших учебных заведений — научные институты, академии, университеты.
О квартире
Общая площадь
26.7 м²
Жилая площадь
17.7 м²
Площадь комнат
17.7 м²
Высота потолков
2.7 м
Подъезд
1
Этаж
13
Окна выходят
На улицу
О доме
Год постройки
2024
Этажность
16
Материал постройки
Кирпично-монолитный
Материал перекрытий
Монолитные
Отопление
Центральное
Пассажирских лифтов
1
Грузовых лифтов
1
Парковка
Подземная
Расположение
Россия, Санкт-Петербург, Ташкентская улица, 6к2
Московские ворота
3 мин.
Электросила
16 мин.
Фрунзенская
21 мин.
Балтийская
24 мин.
Нарвская
30 мин.
Волковская
3 мин.
Парк Победы
4 мин.
Ипотечный калькулятор
Заполните 1 анкету — получите предложения от десятков банков на специальных условиях
Программа ипотеки
Стоимость жилья, ₽
Первый взнос, ₽
Срок кредита
от 5.75%
Ставка
от 55 676 ₽
Платеж в месяц
Расчёт носит информационный характер и не является публичной офертой
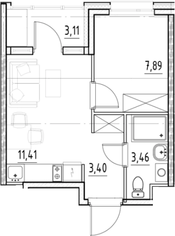
Похожие объекты






1-комн. квартира, 25,6 м², 6/13 эт.
Бухарестская
9 мин.






1-комн. квартира, 26,3 м², 7/13 эт.
Бухарестская
9 мин.






1-комн. квартира, 27,4 м², 4/13 эт.
Бухарестская
9 мин.





1-комн. квартира, 25,6 м², 5/13 эт.
Бухарестская
9 мин.
Консультант по новостройкам
8 850 000 ₽
331 461 ₽/м²






