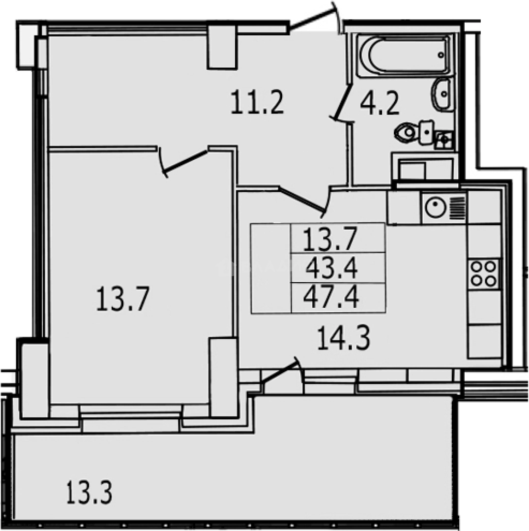
Продается 1-комн. квартира, 43.41 м²
Россия, Санкт-Петербург, улица Руднева, 18
Проспект Просвещения
23 мин.
43.41 м²
Общая площадь
13.7 м²
Жилая площадь
14.3 м²
Площадь кухни
3 из 25
Этаж
Описание
В ЖК «Шекспир» предложено множество планировочных решений: в наличии квартиры, как классического типа, так и европланировки. Сдаются они подчистовой и чистовой отделкой. Большая часть квартир имеет прекрасные видовые характеристики.
На закрытой от посторонних внутренней территории ЖК «Шекспир» высажены вишни, на широкой благоустроенной территории расположены площадки для отдыха детей и взрослых, высажена березовая аллея. Для владельцев автомобилей предусмотрены 2 охраняемых подземных паркинга на 500 мест. Въезды в паркинг оснащены автоматическими подъемно-секционными воротами и светофорами.
ЖК «Шекспир» находится в Выборгском районе. В 5 минутах пешком находятся детские сады и школы, самые современные, оборудованы бассейнами. В шаговой доступности находится крупный образовательный центр дополнительного образования – детская школа искусств им. Свиридова. Различные спортивные и оздоровительные комплексы, такие как открытая ледовая арена, аквапарк, располагаются в 10 минутах пешком. В шаговой доступности магазины, кафе, салоны красоты, банкоматы.
О квартире
Общая площадь
43.41 м²
Жилая площадь
13.7 м²
Площадь кухни
14.3 м²
Площадь комнат
13.7 м²
Высота потолков
2.75 м
Этаж
3
Окна выходят
На улицу
О доме
Год постройки
2022
Этажность
25
Материал постройки
Кирпично-монолитный
Материал перекрытий
Монолитные
Отопление
Центральное
Пассажирских лифтов
1
Грузовых лифтов
1
Парковка
Подземная
Расположение
Россия, Санкт-Петербург, улица Руднева, 18
Проспект Просвещения
23 мин.
Озерки
3 мин.
Парнас
4 мин.
Гражданский проспект
5 мин.
Академическая
6 мин.
Политехническая
6 мин.
Удельная
6 мин.
Девяткино
7 мин.
Ипотечный калькулятор
Заполните 1 анкету — получите предложения от десятков банков на специальных условиях
Программа ипотеки
Стоимость жилья, ₽
Первый взнос, ₽
Срок кредита
от 5.75%
Ставка
от 66 665 ₽
Платеж в месяц
Расчёт носит информационный характер и не является публичной офертой
Похожие объекты




1-комн. квартира, 41,2 м², 8/25 эт.
Проспект Просвещения
21 мин.




1-комн. квартира, 42,9 м², 3/25 эт.
Проспект Просвещения
21 мин.




1-комн. квартира, 37,0 м², 21/25 эт.
Проспект Просвещения
21 мин.







1-комн. квартира, 43,1 м², 2/13 эт.
Проспект Просвещения
24 мин.
Консультант по новостройкам
10 596 744 ₽
244 109 ₽/м²














