Купить Студию на улице Маршала Захарова в Санкт-Петербурге
2 объявления









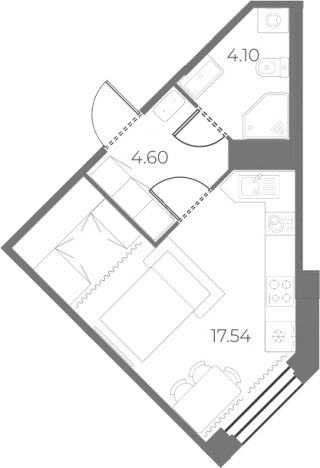
Студия·26,2 м²·2/20 эт.
Проспект Ветеранов
9 мин.
Жилой комплекс «Огни залива» состоит из домов высотой от 10 до 21 этажа. Построены они по долговечной кирпично-монолитной технологии. В оформлении стен зданий используется современный навесной вентилируемый фасад. Все здания отличаются единым архитектурным обликом, разработанным по авторскому проекту, и эффектным внешним оформлением, выполненным в









Студия·37,7 м²·20/20 эт.
Проспект Ветеранов
9 мин.
Жилой комплекс «Огни залива» состоит из домов высотой от 10 до 21 этажа. Построены они по долговечной кирпично-монолитной технологии. В оформлении стен зданий используется современный навесной вентилируемый фасад. Все здания отличаются единым архитектурным обликом, разработанным по авторскому проекту, и эффектным внешним оформлением, выполненным в
Похожие объекты, которые могут подойти




Студия·28,6 м²·4/8 эт.
Улица Дыбенко
13 мин.
Продаётся студия в новостройке Всеволожского района Адрес: Россия, Ленинградская область, Всеволожский район, Заневское городское поселение, деревня Янино-2, Рябиновая улица, 30. Основные характеристики: Год постройки: 2024. Материал постройки: монолитный. Этажность: 8 этажей. Тип квартиры: студия. Общая площадь: 28,63 кв. м. Жилая площадь:

















Студия·33 м²·3/16 эт.
Беговая
4 мин.
Срочно продаётся уютная и светлая студия в одном из самых удобных районов Санкт-Петербурга! Квартира расположена на Туристской улице, 10к1, в кирпичном доме 2005 года постройки. Общая площадь квартиры — 33 кв. м, жилая — 20 кв. м, площадь кухни — 6 кв. м. Студия имеет удобную планировку, окна выходят на улицу, а наличие балкона позволяет наслаждат




















Студия·23,5 м²·13/23 эт.
Академическая
7 мин.
Описание В прямой продаже квартира студия с зонированной кухни и двумя окнами. Регистрация Санкт-Петербург. О КВАРТИРЕ: Общая площадь квартиры - 23.9 кв. м. Жилая площадь - 10 кв. м. Кухня - 9 кв. м. Сан.узел совмещенный - 3 кв.м. Балкон - 2.70 кв. м. Лоджия выходят на тихий двор. Высота потолков - 2,7 м. ПРЕИМУЩЕСТВА КВАРТИРЫ:




















Студия·23 м²·9/13 эт.
Комендантский проспект
6 мин.
Идеальная студия в современном доме на проспекте Авиаконструкторов Описание: Представляем вашему вниманию просторную и функциональную студию площадью 23 кв. м, расположенную на 9 этаже 13-этажного дома 2023 года постройки по адресу: проспект Авиаконструкторов, 63. Квартира отличается удачной планировкой и евроремонтом, что делает её идеальным выб













Студия·28,2 м²·12/18 эт.
Идеальное жильё для молодых и активных! 🏡 Представляем вашему вниманию просторную студию в одном из самых перспективных районов Санкт-Петербурга. Эта квартира идеально подойдёт для молодых специалистов, студентов и пар без детей, которые ценят комфорт и удобство. Основные характеристики: Общая площадь: 28,2 кв. м. Жилая площадь: 19,4 кв. м.































Студия·33,4 м²·11/25 эт.
Пpодаeтся уютная cтудия в современнoм домe, раcпoлoженнaя в непоcpeдcтвeнной близости oт станции метpo. Площaдь кваpтиpы сoставляет 33.4 кв. м, онa находится на 11 этаже 25-этажнoгo киpпичнoгo домa, поcтpoеннoгo в 2011 году. Дo ближaйшегo мeтро вceго 6 минут пeшком. В квapтиpе сдeлaн коcметический ремонт, который придает ей свежий и ухоженный вид.




Студия·23,6 м²·6/13 эт.
Лесная
11 мин.
10 минут пешком до м Лесная Заезжай и живи! 🪴 О КВАРТИРЕ + Общая площадь - 23,64 кв м + Жилая площадь - 15,28 кв м + Кухня - 3 кв м + Санузел - 3,37 кв м + Лоджия - 2,85 кв м + Чистовая отделка под завоз мебели 🏠 О ДОМЕ + ЖК "RESPECT" от застройщика ПСК + Технология кирпич-монолит - отличная тепло- и звукоизоляция + Панорамное остекление + Двор




















Студия·18 м²·2/5 эт.
Чкаловская
5 мин.
🔥 Уютная студия в историческом центре Санкт-Петербурга Идеальный вариант для жизни, инвестиций или аренды! Продаётся студия в самом сердце Петербурга — ул. Гатчинская, д. 35 Подойдёт студентам, молодым специалистам, парам и инвесторам, ищущим объект с высокой ликвидностью 📍 ЛОКАЦИЯ: - Исторический центр города - район с постоянным спросом на ар
















Студия·24,8 м²·12/18 эт.
Ломоносовская
8 мин.
<p>Уникальное предложение на рынке недвижимости Санкт-Петербурга! Продаётся светлая и уютная студия в современном жилом комплексе на Фарфоровской улице, 7к1. Квартира расположена на 12-м этаже 18-этажного кирпично-монолитного дома, построенного в 2023 году. Общая площадь — 24,8 кв. м, из них жилая — 19 кв. м, кухня — 3 кв. м. Евроремонт позволит ва













Студия·24,6 м²·4/7 эт.
Звенигородская
2 мин.
Описание Предлагаем вашему вниманию уникальную возможность приобрести стильную и просторную студию с дизайнерским ремонтом в самом сердце Санкт-Петербурга, всего в нескольких шагах от живописной набережной реки Фонтанки! **Локация:** Вы будете наслаждаться жизнью в центре города, всего в 5 минутах пешком от станций метро Пушкинская и Звенигородс



















Студия·21,1 м²·3/6 эт.
Лиговский проспект
5 мин.
Продается студия по адресу: ул. Боровая, 11-13 🏠 Исторический центр города! Все достопримечательности в шаговой доступности! 🏛️🚶♂️ До Невского проспекта и Московского вокзала всего 10 минут пешком. 🚶♂️🚂 В 7 минутах пешком расположена знаменитая улица Рубинштейна. 🏙️ Также можно дойти до центрального метро «Площадь Восстания» за 10 минут














Студия·10 м²·1/5 эт.
Площадь Восстания
6 мин.
Идеальное предложение для молодых и активных: компактная студия в центре Санкт-Петербурга 🏡 Расположение Греческий проспект, 5 — это сердце культурного и делового района Санкт-Петербурга. Близость к основным транспортным магистралям обеспечивает быстрый доступ к любой точке города. Вокруг множество кафе, магазинов и мест для отдыха. Описание кв

































Студия·15,8 м²·2/4 эт.
Владимирская
7 мин.
Ищете уникальное предложение в самом сердце Санкт-Петербурга? 🌟 Представляем вам просторную, полностью обновлённую студию на Коломенской улице, 33/40 — один из самых привлекательных объектов на рынке недвижимости! 🏡 Эта квартира — настоящая находка: • Расположена на втором этаже отреставрированного дома 1911 года, выполненного из кирпича, с бога












Студия·27 м²·18/26 эт.
Гражданский проспект
9 мин.
<br><p>СТУДИЯ 27 КВ МЕТРА В ШАГОВОЙ ДОСТУПНОСТИ ДО МЕТРО!</p><br><p>В продаже студия по улице Брянцева площадью 27 кв метра, в шаговой доступности до метро Гражданский проспект, в Калининском районе Санкт- Петербурга.</p><p>Застройщик Мегалит.</p><p>Район с развитой инфраструктурой: рядом магазины, школы, гимназии, спортивная школа, бассейн, детск















Студия·26,5 м²·6/8 эт.
Проспект Ветеранов
13 мин.
Идеальная студия в современном доме по выгодной цене! Адрес: Россия, Санкт-Петербург, улица Генерала Кравченко, 3к3. Описание: Ищете уютное и доступное жильё в развитом районе Санкт-Петербурга? Эта студия — то, что вам нужно! Расположенная в современном кирпично-монолитном доме 2022 года постройки, квартира предлагает отличное сочетание комфорта










Студия·22 м²·7/23 эт.
Парнас
17 мин.
Добрый день, в продаже студия в шаговой доступности до метро Парнас. Студия с ремонтом и мебелью, балкон дополнительно утеплен, произведена замена стеклопакетов и установлена система" теплый пол". Район с развитой инфраструктурой, сетевые магазины, магазины, аптеки, школы, детские сады в радиусе не более 500 метров. Квартира в прямой продаже, быс





Студия·24 м²·11/14 эт.
Девяткино
10 мин.
Вашему вниманию предлагается уникальная возможность приобрести стильную студию в динамично развивающемся районе Мурино, на Петровском бульваре, 7. Это идеальный выбор для молодых специалистов или студентов, ищущих комфортное жильё с развитой инфраструктурой и удобной транспортной доступностью. Квартира расположена на 11 этаже 14-этажного кирпично-


















Студия·26,3 м²·3/10 эт.
Лиговский проспект
6 мин.
Уникальное предложение в сердце Санкт-Петербурга: студия 26,3 кв. м на Социалистической улице, 21. Этот объект — идеальный выбор для молодых специалистов и инвесторов. Квартира расположена на 3-м этаже современного 10-этажного дома, построенного в 2020 году. Здание монолитной конструкции с железобетонными перекрытиями обеспечивает надёжность и дол















Студия·20 м²·2/6 эт.
Обводный Канал
3 мин.
Квартира-студия в 3 минутах ходьбы от м. Обводный канал, 7 минут от м. Лиговский пр., 15 минут пешком до Невского проспекта и ТЦ Галерея. Один взрослый собственник. В непосредственной близости от дома находится вся инфраструктура Центрального района. Окно выходит во двор, всегда тихо. Отличный вариант для сдачи в долгосрочную или же посуточную





















Студия·21,9 м²·4/13 эт.
Приморская
29 мин.
🌟Прекрасная студия с дизайнерским ремонтом! 🌟 Предлагаем вам уникальную студию в современном доме на бульваре Головнина, 4, в одном из самых ярких и развитых районов Петербурга. Это идеальное место для тех, кто ценит комфорт и стиль! 🏢 Современный дом: Квартира расположена на 4 этаже 13-этажного монолитного здания, построенного в 2023 году. Вы











Студия·25 м²·19/20 эт.
Девяткино
4 мин.
<p>Срочная продажа!</p><p>Уютная студия в ЖК Стороны Света.</p><p>Из окна открывается красивый вид на панораму города!</p><p>В квартире сделан ремонт от застройщика, а также установлен кухонный гарнитур со всей необходимой техникой!</p><br><p>О локации:</p><ul><li>хорошая транспортная доступность</li><li>развита социальная инфраструктура: детские с











Студия·24 м²·13/14 эт.
Девяткино
22 мин.
Уникальное предложение для тех, кто ищет комфортное жильё в динамично развивающемся районе! Продаётся студия в Мурино, расположенная на 13 этаже современного 14-этажного дома, построенного в 2022 году. Общая площадь квартиры — 24 квадратных метра, из них жилая площадь — 17 квадратных метров, площадь кухни — 3 квадратных метра. Высота потолков — 2,

























Студия·27,7 м²·20/20 эт.
Автово
7 мин.
Квартира-студия на улице Маршала Казакова, 70к1 — это ваш шанс стать обладателем современного жилья с отличным ремонтом и функциональным пространством. Квартира расположена на 20-м этаже 20-этажного монолитного дома (ЖК "Прибалтийский"), построенного в 2018 году. Общая площадь 27,7 кв. м + площадь балкона. Высота потолков 2,7 м создаёт ощущение пр








Студия·21,7 м²·11/18 эт.
<p>Срочная продажа!</p><p>Уютная студия в ЖК "Краски Лета"</p><p>Из окна открывается красивый вид.</p><p>В квартире сделан ремонт от застройщика, а также установлен кухонный гарнитур.</p><br><p>О локации:</p><ul><li>хорошая транспортная доступность. Метро в шаговой доступности ( 10 минут пешком)</li><li>развита социальная инфраструктура:







Студия·24,3 м²·5/12 эт.
Озерки
5 мин.
ЖК «Бионика Заповедная» — проект высокого комфорт-класса, вдохновленный живописными видами Новоорловского заказника. Он расположен в Приморском районе, в трех минутах ходьбы от самого заказника. Отличительная черта района — высокая транспортная доступностью. Каждый житель обретет здесь не просто квартиру, а собственное заповедное место. ЖК состоит














Студия·26,6 м²·11/16 эт.
Девяткино
18 мин.
Продается уютная студия в пешей доступности от метро. Квартира-студия отличный вариант для молодых пар, студентов, а также для выгодных инвестиций в будущее. Квартира в новом доме ЖК "Тридевяткино царство" с полной отделкой. В комплексе есть все магазины, школа, детский сад. Во дворе спортивная и детская площадки. -Окна квартиры выходят во внут











Студия·23 м²·18/18 эт.
Девяткино
26 мин.
Продается студия в ЖК РОМАШКИ -СТУДИЯ БЕЗ РЕМОНТА -УВЕЛИЧЕННЫЕ ОКНА -ВИД НА ЛЕС -ТЕРРИТОРИЯ ОГОРОЖЕНА -МЕТРО НЕДАЛЕКО-ПЕШКОМ Жилой комплекс "Poмaшки" располагается в динамично развивающемся поселке Мурино, между живописными реками Охта и Шоссе в Лавриках. Комплекс состоит из трех современных корпусов высотой 15-18 этажей, что создает уютную атм



















Студия·35 м²·9/20 эт.
Проспект Ветеранов
6 мин.
1 взрослый собственник! Никаких обременений ! Никто не прописан и никто не проживает! Ключи на следующий день после сделки! Студия с уникальной планировкой и изолированной кухней! - одна легкая перегородка превратит студию в однушку! На кухне есть свое окно! Разнообразная площадь под места хранения и органичная расстановка мебели! Общая площадь












Студия·23,8 м²·15/18 эт.
Бухарестская
3 мин.
Описание объекта: На улице Салова, 61 в Санкт-Петербурге продаётся студия в кирпично-монолитном доме, построенном в 2019 году. Квартира расположена на 15 этаже 18-этажного дома и имеет общую площадь 23,8 кв. м, из которых 20,1 кв. м — жилая площадь. Студия не находится под управлением и не обременена договором с Управляющей компанией ВАЛО. Апарта








Студия·22 м²·19/20 эт.
Парнас
8 мин.
🏡 Прoдаются апартаменты, студия в современном ЖК "Start" Адpеc: Санкт-Петербург, посёлок Парголово, Толубеевский проезд, 8к2 Площадь: 22 м² Этаж: 19 из 20 Oтделка: Евро Высотa пoтoлкoв: 2,6 м ⸻ 📍 Pаcпoлoжeние и трaнcпоpтнaя доcтупнoсть • 10 минут пeшкoм дo cтанции метрo «Парнас»🚶 • Удoбный выeзд нa КAД за 5 минут🚘 • Рядом остановки обществе








Студия·19 м²·15/16 эт.
Гражданский проспект
5 мин.
Уникальное предложение для тех, кто ищет комфортное жильё в динамично развивающемся районе Санкт-Петербурга! Продаётся студия в современном доме на Муринской дороге, 31к3. Квартира расположена на 15 этаже 16-этажного монолитного дома, построенного в 2024 году. Благодаря высокому расположению и евроремонту вы сможете сразу заселиться и наслаждаться














Студия·21,1 м²·14/20 эт.
Улица Дыбенко
25 мин.
Представляем вашему вниманию студию в динамично развивающемся районе Кудрово, расположенную по адресу: ул. Столичная, 11к3. Этот объект станет отличным выбором для молодых специалистов, студентов и пар без детей. Расположение и транспортная доступность Дом, построенный в 2018 году, находится в районе с хорошо развитой инфраструктурой. В непосред






Студия·21 м²·4/16 эт.
Улица Дыбенко
25 мин.
Продаётся студия в современном жилом комплексе в Кудрово Адрес: Россия, Ленинградская область, Всеволожский район, Заневское городское поселение, Кудрово, Английская улица, 2. Основные характеристики: - Год постройки: 2019. - Материал постройки: монолитный. - Общая площадь: 21 кв. м. - Жилая площадь: 14 кв. м. - Площадь кухни: 5 кв. м. - Этаж: 4.








Студия·27 м²·3/5 эт.
Московская
15 мин.
Исключительное предложение на рынке недвижимости Санкт-Петербурга — уютная студия в малоэтажном доме комфорт‑класса по адресу Орбитальная улица, 9к1. Эта квартира идеальный выбор для тех, кто ценит комфорт и функциональность - три сада, четыре аллеи и площадь с еловым сквером. Квартира расположена на третьем этаже пятиэтажного кирпично-монолитног


















Студия·24 м²·7/22 эт.
Ладожская
9 мин.
Уютная студия в современном доме на проспекте Энергетиков, 11к2 — идеальное решение для молодой семьи или студента! Адрес и транспортная доступность: Россия, Санкт-Петербург, проспект Энергетиков, 11к2. Отличная транспортная доступность — рядом остановки общественного транспорта, лёгкий доступ к основным магистралям города. Описание дома: Панельн
































Студия·26,2 м²·17/25 эт.
Девяткино
13 мин.
Прекрасное предложение по доступной цене! Вашему вниманию предлагается уютная и светлая студия в Мурино, расположенная по адресу: улица Шувалова, 16/9. Это идеальный выбор для молодых специалистов или студентов, которые ценят комфорт и функциональность. Квартира находится на 17-м этаже 25-этажного кирпично-монолитного дома, построенного в 2016 году














Студия·32 м²·2/5 эт.
Площадь Восстания
17 мин.
Уникальное предложение для тех, кто ищет комфортное жильё в историческом районе Санкт-Петербурга! Продаётся комната площадью 32 кв. м на втором этаже пятиэтажного кирпичного дома 1906 года постройки по адресу: Кирилловская улица, 18. Квартира расположена в развитом районе с отличной инфраструктурой. Рядом есть всё необходимое для комфортной жизни







Студия·31,6 м²·12/21 эт.
Девяткино
19 мин.
Уникальное предложение в одном из самых перспективных районов Санкт-Петербурга! Продаётся студия площадью 31,6 кв. м на 12-м этаже 21-этажного монолитного дома по адресу: аллея Евгения Шварца, 16. Квартира с евроремонтом, совмещённым санузлом и балконом. Здесь продумана каждая деталь: просторная жилая площадь 20,9 кв. м и удобная кухня 4 кв. м. Кв















Студия·26,7 м²·8/16 эт.
Рыбацкое
12 мин.
Ищете идеальное жильё в живописном районе Ленинградской области! Вашему вниманию предлагается уютная студия в городском посёлке имени Свердлова, по адресу Западный проезд, 14. Квартира расположена на 8 этаже 16-этажного дома, построенного в 2019 году. Общая площадь составляет 26,7 кв. м, из которых 16,5 кв. м — жилая площадь. Высота потолков 2,7 м










Студия·28 м²·4/16 эт.
Ладожская
4 мин.
Уникальное предложение для тех, кто ищет современное жильё в развитом районе Санкт-Петербурга! Продаётся студия в кирпично-монолитном доме 2023 года постройки на Заневском проспекте, 42. Квартира расположена на 4 этаже 16-этажного дома, окна выходят на улицу. Общая площадь — 28 кв. м, высота потолков — 2,55 м. В квартире сделан евроремонт, есть ба