Продается 2-комн. квартира, 83.48 м²
Россия, Владимир, улица Горького, 60А
83.48 м²
Общая площадь
35.96 м²
Жилая площадь
23.73 м²
Площадь кухни
9 из 10
Этаж
Описание
окна на Горького!!!
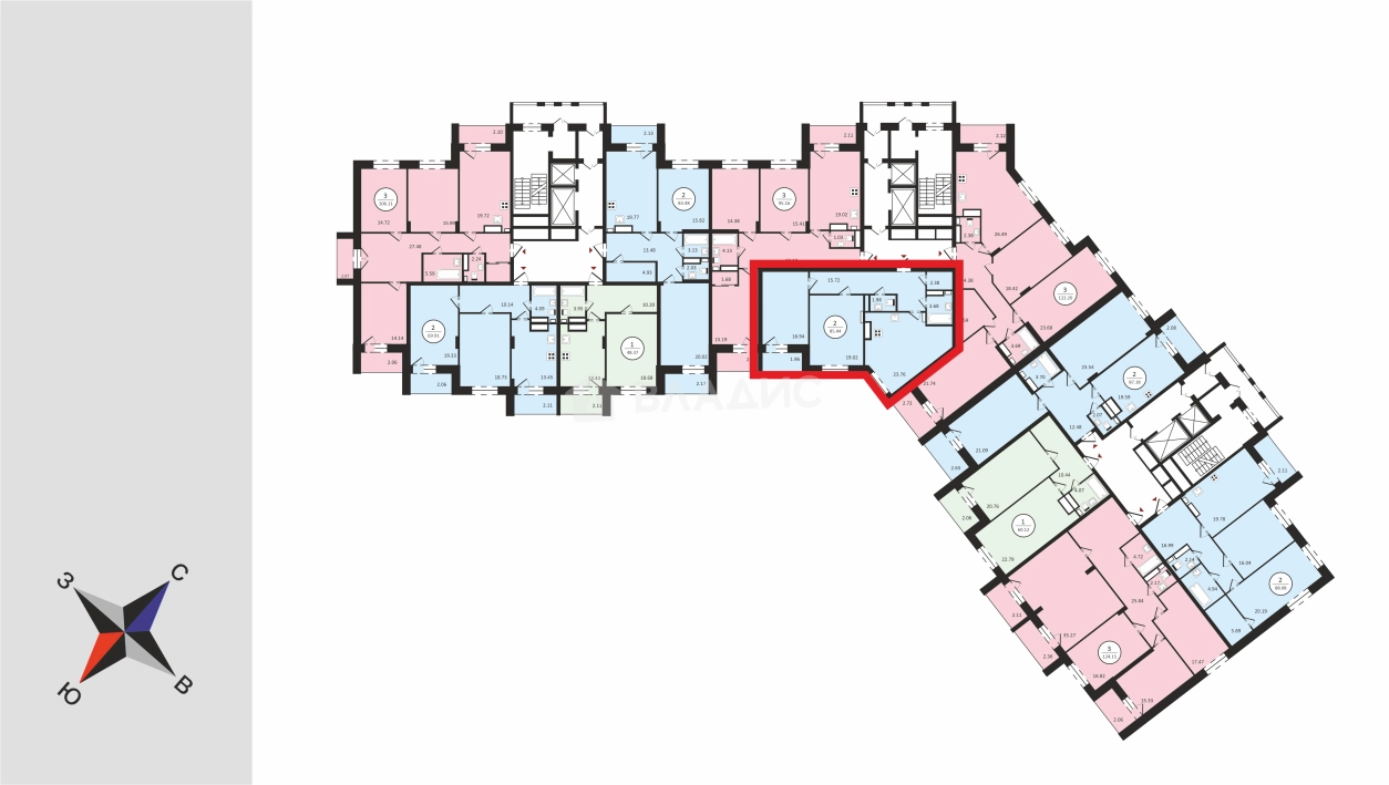
квартира (общая площадь 83,48 кв.м без учёта лоджии/жилая 35,96 кв.м/кухня-гостиная 23,73 кв.м) в новом кирпично-монолитном доме с крышной газовой котельной (дом сдан летом 2023 года).
Панорамный вид на историческую часть города, квартира - евро-двушка: две большие полноценные комнаты 19,02 и 16,94 кв.м и кухня-гостиная, просторная прихожая 15,2 кв.м, 2 санузла, кладовка-гардеробная, лоджия 3,92 кв.м.
В шаговой доступности школы №19 и 26 детские сады, ТЦ «Мегаторг», ВлГУ.
Площадь квартиры с учетом лоджии с коэф 0,5 - 85,44 кв.м.
Дополнительные преимущества квартиры:
- Панорамное остекление (только 3 крайних этажа).
- Вид на историческую часть города.
- Самый удачный подъезд (всего 3 квартиры на этаже).
- Высокие потолки 3,0 метра (только последние 3 этажа)
- Доступ в подземный паркинг из лифта.
Место в подземном паркинге в цену не входит.
Хорошее расположение - вторая линия, рядом улицы Никитина, Тракторная, Асаткина, 1-й Коллективный проезд, площадь Ленина.
Квартира без обремений, ипотека возможна.
О квартире
Общая площадь
83.48 м²
Жилая площадь
35.96 м²
Площадь кухни
23.73 м²
Площадь комнат
16,94+19,02 м²
Подъезд
2
Этаж
9
Расположение квартиры
не угловая
Окна выходят
На улицу
Раздельных санузлов
1
Ремонт
Без отделки
О доме
Год постройки
2023
Этажность
10
Количество подъездов
3
Материал постройки
Монолитный
Материал перекрытий
Ж/б плиты
Отопление
Своя котельная
Пассажирских лифтов
1
Грузовых лифтов
1
Парковка
Подземная
Огороженная территория
Да
Расположение
Россия, Владимир, улица Горького, 60А
Ипотечный калькулятор
Заполните 1 анкету — получите предложения от десятков банков на специальных условиях
Программа ипотеки
Стоимость жилья, ₽
Первый взнос, ₽
Срок кредита
от 5.75%
Ставка
от 66 050 ₽
Платеж в месяц
Расчёт носит информационный характер и не является публичной офертой
Похожие объекты
Предложите свою цену
10 499 000 ₽
125 767 ₽/м²































































































































































































