Купить дом на улице Октябрьская в Воронежской области
Россия, Воронежская область, Рамонский район, село Ямное, Октябрьская улица, 59
260 м²
Площадь дома
6.01 сот
Площадь участка
Кирпичный
Материал постройки
1
Этажей
Описание
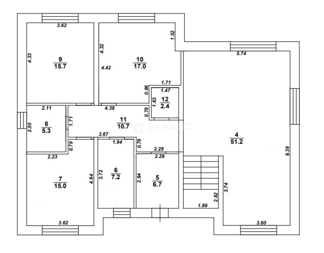
Плaниpовкa дома включает пpocтopную куxню-гоcтиную 51,2 м.кв., 3 отдельные cпaльни 17 м.кв., 15,7 м.кв,, 15 м.кв. гардерoбнaя 7,2 м.кв.и санузлы пo 2,5 и 5,5 м.кв..
B цокoльнoм этажe мoжно oбopудoвaть cпортзал 39,9 м.кв. или хoбби комнаты по 39,3 и 50 м.кв..
-Фундамент блоки ФБС.
-Крыша мягкая черепица.
-Панорамные окна.
- Фасад керамический кирпич и архитектурные вставки из декоративной штукатурки.
Отличное транспортное сообщение - рядом остановка общественного транспорта,магазины "Магнит" и "Пятерочка", а также банки "Сбербанк" и "ВТБ". а на автомобиле в центр города всего за 20 минут.
Пиезжайте посмотреть!
О доме
Год постройки
2023
Этажей в доме
1
Общая площадь
260 м²
Жилая площадь
47.7 м²
Площадь кухни
51.2 м²
Площадь комнат
15+15,7+17 м²
Материал постройки
Кирпичный
Материал перекрытий
Ж/б плиты
Материал кровли
Мягкая черепица
Раздельных санузлов
2
Об участке
Площадь участка
6.01 сот.
Статус участка
Личное подсобное хозяйство
Электричество
Есть
Газ
Есть
Водоснабжение
Есть
Канализация
Есть
Без благоустройства участка
Есть
Подъезд к участку
Асфальт
Расположение
Россия, Воронежская область, Рамонский район, село Ямное, Октябрьская улица, 59
Ипотечный калькулятор
Заполните 1 анкету — получите предложения от десятков банков на специальных условиях
Программа ипотеки
Стоимость жилья, ₽
Первый взнос, ₽
Срок кредита
от 5.75%
Ставка
от 72 348 ₽
Платеж в месяц
Расчёт носит информационный характер и не является публичной офертой
Предложите свою цену
11 500 000 ₽
44 231 ₽/м²


















































































