Купить дом на улице Октябрьская в Воронежской области
Россия, Воронежская область, Рамонский район, село Ямное, Октябрьская улица, 59
258 м²
Площадь дома
7 сот
Площадь участка
Кирпичный
Материал постройки
2
Этажей
Описание
Планировка дома включает:
- на первом этаже просторную кухню-гостиную 42,3 м.кв. просторный холл площадью 23.9 м. кв., гостевая спальня/кабинет 15,5 м.кв. и санузел первого этажа площадью 5,9 м.кв..
- на втором этаже три отдельные спальни по 20,5 м.кв., 21,6 м.кв., а так же спальная 17,2 м.кв. с собственной гардеробной 8,1 м.кв.и санузел второго этажа 5,9 м.кв..
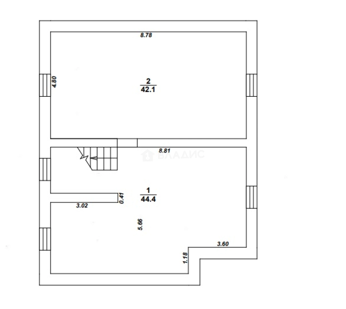
В цокольном этаже можно оборудовать или хобби комнаты.спортзал площадью по 42,1 м.кв. и 44,4 м.кв.
Фундамент блоки ФБС.
Крыша мягкая черепица.
Панорамные окна.
Фасад керамический кирпич и архитектурные вставки из декоративной штукатурки.
Уникальное предложение для тех, кто ценит комфорт и качество жилья. Кстати - этот дом можно купить по программе сельская ипотека. Не упустите пожалуйста эту возможность.
Просмотр в удобное для Вас время!
О доме
Год постройки
2023
Этажей в доме
2
Общая площадь
258 м²
Жилая площадь
82.9 м²
Площадь кухни
42.3 м²
Площадь комнат
15,5+21,6+20,5+17,2 м²
Материал постройки
Кирпичный
Материал перекрытий
Ж/б плиты
Материал кровли
Мягкая черепица
Раздельных санузлов
2
Об участке
Площадь участка
7 сот.
Статус участка
Личное подсобное хозяйство
Электричество
Есть
Газ
Есть
Водоснабжение
Есть
Канализация
Есть
Без благоустройства участка
Есть
Подъезд к участку
Асфальт
Расположение
Россия, Воронежская область, Рамонский район, село Ямное, Октябрьская улица, 59
Ипотечный калькулятор
Заполните 1 анкету — получите предложения от десятков банков на специальных условиях
Программа ипотеки
Стоимость жилья, ₽
Первый взнос, ₽
Срок кредита
от 5.75%
Ставка
от 72 348 ₽
Платеж в месяц
Расчёт носит информационный характер и не является публичной офертой
Предложите свою цену
11 500 000 ₽
44 574 ₽/м²


















































































