Купить однокомнатную квартиру в новостройках в ЖК Новое Колпино в Санкт-Петербурге
2 объявления






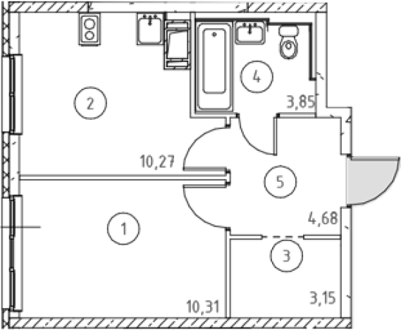
1-комн. квартира·32,3 м²·11/11 эт.
Рыбацкое
13 мин.
Жилой комплекс включает в себя кирпично-монолитные корпуса высотой от 9 до 11 этажей. Фасады оформлены облицовочным кирпичом натуральных оттенков. Архитектурная композиция корпусов образует закрытые дворы. Квартиры проекта представлены всеми видами планировок от студий до четырех и более комнат. Они передаются с чистовой отделкой. На первых этажа






1-комн. квартира·32,3 м²·7/11 эт.
Рыбацкое
13 мин.
Жилой комплекс включает в себя кирпично-монолитные корпуса высотой от 9 до 11 этажей. Фасады оформлены облицовочным кирпичом натуральных оттенков. Архитектурная композиция корпусов образует закрытые дворы. Квартиры проекта представлены всеми видами планировок от студий до четырех и более комнат. Они передаются с чистовой отделкой. На первых этажа