Купить трехкомнатную квартиру у метро Гражданский проспект в Санкт-Петербурге
66 объявлений


































3-комн. квартира·56,5 м²·9/9 эт.
Гражданский проспект
3 мин.
Предлагается к продаже удобная и функциональная трёхкомнатная квартира по адресу: проспект Просвещения, 84к1. Отличный вариант для семей, пар и тех, кто ищет комфортное жильё в районе с развитой инфраструктурой и хорошей транспортной доступностью. 🏡 ОСНОВНАЯ ИНФОРМАЦИЯ Квартира расположена на 9-м этаже 9-этажного кирпичного дома 1974 года постро




















3-комн. квартира·50 м²·1/5 эт.
Гражданский проспект
20 мин.
Продаётся ТРЕХКОМНАТНАЯ квартира на Учительской улице, 5к2 ! До метро Гражданский проспект 20 минут пешком. До метро Академическая 15 минут на прямом автобусе. До метро Проспект Просвещения 20 минут автобусом без пересадок. Всё необходимое — рядом: магазины, аптеки, кафе и рестораны, большой торговый центр с кинотеатром. Рядом с домом Муринский




















3-комн. квартира·59,7 м²·8/9 эт.
Гражданский проспект
5 мин.
Уникальное предложение для тех, кто ищет комфорт и безопасность в одном из самых развитых районов Санкт-Петербурга! Продаётся трёхкомнатная квартира площадью 59,7 кв. м на Гражданском проспекте, 123к1. Эта квартира идеально подойдёт для семей с детьми, пар без детей и пожилых пар. Расположение дома обеспечивает лёгкий доступ к основным магистралям










































3-комн. квартира·94 м²·22/25 эт.
Гражданский проспект
8 мин.
Здравствуйте! Предлагаем к покупке видовую ТРЁХ-комнатную квартиру расположенную на 22 этаже 25 этажного дома! ПРО КВАРТИРУ: • Панорамный вид; • В квартиру можно сразу заехать; • В квартире сделан евроремонт, ремонт делали для себя поэтому использовали качественные импортные материалы; • 3 раздельных комнаты площадью 21,7 кв.м., 17,3 кв.м., 16,6 к








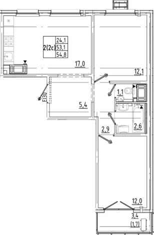
3-комн. квартира·53,1 м²·20/25 эт.
Гражданский проспект
5 мин.
Жилой комплекс представляет собой проект комплексного освоения территории в Красногвардейском районе Санкт-Петербурга. Масштабный проект включает в себя 80 монолитных корпусов высотой до 25 этажей, расположенных на площади в 400 гектаров. Энергоэффективные фасады корпусов утеплены теплоизоляционным материалом. Они покрыты водоотталкивающей штукатур








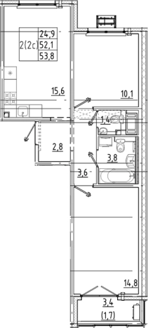
3-комн. квартира·53,1 м²·24/25 эт.
Гражданский проспект
5 мин.
Жилой комплекс представляет собой проект комплексного освоения территории в Красногвардейском районе Санкт-Петербурга. Масштабный проект включает в себя 80 монолитных корпусов высотой до 25 этажей, расположенных на площади в 400 гектаров. Энергоэффективные фасады корпусов утеплены теплоизоляционным материалом. Они покрыты водоотталкивающей штукатур






3-комн. квартира·50,5 м²·14/25 эт.
Гражданский проспект
5 мин.
Жилой комплекс представляет собой проект комплексного освоения территории в Красногвардейском районе Санкт-Петербурга. Масштабный проект включает в себя 80 монолитных корпусов высотой до 25 этажей, расположенных на площади в 400 гектаров. Энергоэффективные фасады корпусов утеплены теплоизоляционным материалом. Они покрыты водоотталкивающей штукатур








3-комн. квартира·50,5 м²·10/25 эт.
Гражданский проспект
5 мин.
Жилой комплекс представляет собой проект комплексного освоения территории в Красногвардейском районе Санкт-Петербурга. Масштабный проект включает в себя 80 монолитных корпусов высотой до 25 этажей, расположенных на площади в 400 гектаров. Энергоэффективные фасады корпусов утеплены теплоизоляционным материалом. Они покрыты водоотталкивающей штукатур









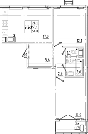
3-комн. квартира·53,1 м²·23/25 эт.
Гражданский проспект
5 мин.
Жилой комплекс представляет собой проект комплексного освоения территории в Красногвардейском районе Санкт-Петербурга. Масштабный проект включает в себя 80 монолитных корпусов высотой до 25 этажей, расположенных на площади в 400 гектаров. Энергоэффективные фасады корпусов утеплены теплоизоляционным материалом. Они покрыты водоотталкивающей штукатур









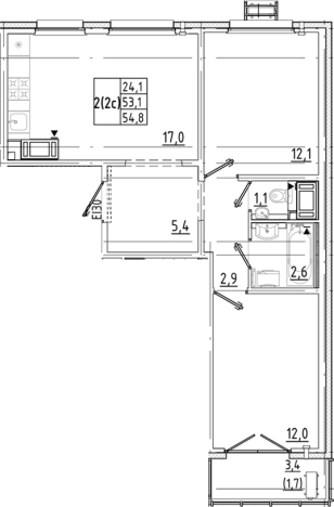
3-комн. квартира·53,1 м²·14/25 эт.
Гражданский проспект
5 мин.
Жилой комплекс представляет собой проект комплексного освоения территории в Красногвардейском районе Санкт-Петербурга. Масштабный проект включает в себя 80 монолитных корпусов высотой до 25 этажей, расположенных на площади в 400 гектаров. Энергоэффективные фасады корпусов утеплены теплоизоляционным материалом. Они покрыты водоотталкивающей штукатур







3-комн. квартира·50,5 м²·16/25 эт.
Гражданский проспект
5 мин.
Жилой комплекс представляет собой проект комплексного освоения территории в Красногвардейском районе Санкт-Петербурга. Масштабный проект включает в себя 80 монолитных корпусов высотой до 25 этажей, расположенных на площади в 400 гектаров. Энергоэффективные фасады корпусов утеплены теплоизоляционным материалом. Они покрыты водоотталкивающей штукатур









3-комн. квартира·52,1 м²·22/25 эт.
Гражданский проспект
5 мин.
Жилой комплекс представляет собой проект комплексного освоения территории в Красногвардейском районе Санкт-Петербурга. Масштабный проект включает в себя 80 монолитных корпусов высотой до 25 этажей, расположенных на площади в 400 гектаров. Энергоэффективные фасады корпусов утеплены теплоизоляционным материалом. Они покрыты водоотталкивающей штукатур






3-комн. квартира·53,1 м²·17/25 эт.
Гражданский проспект
5 мин.
Жилой комплекс представляет собой проект комплексного освоения территории в Красногвардейском районе Санкт-Петербурга. Масштабный проект включает в себя 80 монолитных корпусов высотой до 25 этажей, расположенных на площади в 400 гектаров. Энергоэффективные фасады корпусов утеплены теплоизоляционным материалом. Они покрыты водоотталкивающей штукатур






3-комн. квартира·53,1 м²·12/25 эт.
Гражданский проспект
5 мин.
Жилой комплекс представляет собой проект комплексного освоения территории в Красногвардейском районе Санкт-Петербурга. Масштабный проект включает в себя 80 монолитных корпусов высотой до 25 этажей, расположенных на площади в 400 гектаров. Энергоэффективные фасады корпусов утеплены теплоизоляционным материалом. Они покрыты водоотталкивающей штукатур









3-комн. квартира·52,1 м²·23/25 эт.
Гражданский проспект
5 мин.
Жилой комплекс представляет собой проект комплексного освоения территории в Красногвардейском районе Санкт-Петербурга. Масштабный проект включает в себя 80 монолитных корпусов высотой до 25 этажей, расположенных на площади в 400 гектаров. Энергоэффективные фасады корпусов утеплены теплоизоляционным материалом. Они покрыты водоотталкивающей штукатур








3-комн. квартира·50,5 м²·17/25 эт.
Гражданский проспект
5 мин.
Жилой комплекс представляет собой проект комплексного освоения территории в Красногвардейском районе Санкт-Петербурга. Масштабный проект включает в себя 80 монолитных корпусов высотой до 25 этажей, расположенных на площади в 400 гектаров. Энергоэффективные фасады корпусов утеплены теплоизоляционным материалом. Они покрыты водоотталкивающей штукатур








3-комн. квартира·53,1 м²·14/25 эт.
Гражданский проспект
5 мин.
Жилой комплекс представляет собой проект комплексного освоения территории в Красногвардейском районе Санкт-Петербурга. Масштабный проект включает в себя 80 монолитных корпусов высотой до 25 этажей, расположенных на площади в 400 гектаров. Энергоэффективные фасады корпусов утеплены теплоизоляционным материалом. Они покрыты водоотталкивающей штукатур





3-комн. квартира·50,5 м²·11/25 эт.
Гражданский проспект
5 мин.
Жилой комплекс представляет собой проект комплексного освоения территории в Красногвардейском районе Санкт-Петербурга. Масштабный проект включает в себя 80 монолитных корпусов высотой до 25 этажей, расположенных на площади в 400 гектаров. Энергоэффективные фасады корпусов утеплены теплоизоляционным материалом. Они покрыты водоотталкивающей штукатур









3-комн. квартира·52,1 м²·19/25 эт.
Гражданский проспект
5 мин.
Жилой комплекс представляет собой проект комплексного освоения территории в Красногвардейском районе Санкт-Петербурга. Масштабный проект включает в себя 80 монолитных корпусов высотой до 25 этажей, расположенных на площади в 400 гектаров. Энергоэффективные фасады корпусов утеплены теплоизоляционным материалом. Они покрыты водоотталкивающей штукатур









3-комн. квартира·53,1 м²·13/25 эт.
Гражданский проспект
5 мин.
Жилой комплекс представляет собой проект комплексного освоения территории в Красногвардейском районе Санкт-Петербурга. Масштабный проект включает в себя 80 монолитных корпусов высотой до 25 этажей, расположенных на площади в 400 гектаров. Энергоэффективные фасады корпусов утеплены теплоизоляционным материалом. Они покрыты водоотталкивающей штукатур








3-комн. квартира·50,5 м²·10/25 эт.
Гражданский проспект
5 мин.
Жилой комплекс представляет собой проект комплексного освоения территории в Красногвардейском районе Санкт-Петербурга. Масштабный проект включает в себя 80 монолитных корпусов высотой до 25 этажей, расположенных на площади в 400 гектаров. Энергоэффективные фасады корпусов утеплены теплоизоляционным материалом. Они покрыты водоотталкивающей штукатур









3-комн. квартира·53,1 м²·11/25 эт.
Гражданский проспект
5 мин.
Жилой комплекс представляет собой проект комплексного освоения территории в Красногвардейском районе Санкт-Петербурга. Масштабный проект включает в себя 80 монолитных корпусов высотой до 25 этажей, расположенных на площади в 400 гектаров. Энергоэффективные фасады корпусов утеплены теплоизоляционным материалом. Они покрыты водоотталкивающей штукатур









3-комн. квартира·53,1 м²·16/25 эт.
Гражданский проспект
5 мин.
Жилой комплекс представляет собой проект комплексного освоения территории в Красногвардейском районе Санкт-Петербурга. Масштабный проект включает в себя 80 монолитных корпусов высотой до 25 этажей, расположенных на площади в 400 гектаров. Энергоэффективные фасады корпусов утеплены теплоизоляционным материалом. Они покрыты водоотталкивающей штукатур




3-комн. квартира·53,1 м²·22/25 эт.
Гражданский проспект
5 мин.
Жилой комплекс представляет собой проект комплексного освоения территории в Красногвардейском районе Санкт-Петербурга. Масштабный проект включает в себя 80 монолитных корпусов высотой до 25 этажей, расположенных на площади в 400 гектаров. Энергоэффективные фасады корпусов утеплены теплоизоляционным материалом. Они покрыты водоотталкивающей штукатур









3-комн. квартира·53,1 м²·18/25 эт.
Гражданский проспект
5 мин.
Жилой комплекс представляет собой проект комплексного освоения территории в Красногвардейском районе Санкт-Петербурга. Масштабный проект включает в себя 80 монолитных корпусов высотой до 25 этажей, расположенных на площади в 400 гектаров. Энергоэффективные фасады корпусов утеплены теплоизоляционным материалом. Они покрыты водоотталкивающей штукатур









3-комн. квартира·53,1 м²·17/25 эт.
Гражданский проспект
5 мин.
Жилой комплекс представляет собой проект комплексного освоения территории в Красногвардейском районе Санкт-Петербурга. Масштабный проект включает в себя 80 монолитных корпусов высотой до 25 этажей, расположенных на площади в 400 гектаров. Энергоэффективные фасады корпусов утеплены теплоизоляционным материалом. Они покрыты водоотталкивающей штукатур









3-комн. квартира·50,5 м²·16/25 эт.
Гражданский проспект
5 мин.
Жилой комплекс представляет собой проект комплексного освоения территории в Красногвардейском районе Санкт-Петербурга. Масштабный проект включает в себя 80 монолитных корпусов высотой до 25 этажей, расположенных на площади в 400 гектаров. Энергоэффективные фасады корпусов утеплены теплоизоляционным материалом. Они покрыты водоотталкивающей штукатур








3-комн. квартира·53,1 м²·16/25 эт.
Гражданский проспект
5 мин.
Жилой комплекс представляет собой проект комплексного освоения территории в Красногвардейском районе Санкт-Петербурга. Масштабный проект включает в себя 80 монолитных корпусов высотой до 25 этажей, расположенных на площади в 400 гектаров. Энергоэффективные фасады корпусов утеплены теплоизоляционным материалом. Они покрыты водоотталкивающей штукатур






3-комн. квартира·53,1 м²·18/25 эт.
Гражданский проспект
5 мин.
Жилой комплекс представляет собой проект комплексного освоения территории в Красногвардейском районе Санкт-Петербурга. Масштабный проект включает в себя 80 монолитных корпусов высотой до 25 этажей, расположенных на площади в 400 гектаров. Энергоэффективные фасады корпусов утеплены теплоизоляционным материалом. Они покрыты водоотталкивающей штукатур









3-комн. квартира·50,5 м²·18/25 эт.
Гражданский проспект
5 мин.
Жилой комплекс представляет собой проект комплексного освоения территории в Красногвардейском районе Санкт-Петербурга. Масштабный проект включает в себя 80 монолитных корпусов высотой до 25 этажей, расположенных на площади в 400 гектаров. Энергоэффективные фасады корпусов утеплены теплоизоляционным материалом. Они покрыты водоотталкивающей штукатур









3-комн. квартира·53,1 м²·19/25 эт.
Гражданский проспект
5 мин.
Жилой комплекс представляет собой проект комплексного освоения территории в Красногвардейском районе Санкт-Петербурга. Масштабный проект включает в себя 80 монолитных корпусов высотой до 25 этажей, расположенных на площади в 400 гектаров. Энергоэффективные фасады корпусов утеплены теплоизоляционным материалом. Они покрыты водоотталкивающей штукатур









3-комн. квартира·56,6 м²·5/25 эт.
Гражданский проспект
5 мин.
Жилой комплекс представляет собой проект комплексного освоения территории в Красногвардейском районе Санкт-Петербурга. Масштабный проект включает в себя 80 монолитных корпусов высотой до 25 этажей, расположенных на площади в 400 гектаров. Энергоэффективные фасады корпусов утеплены теплоизоляционным материалом. Они покрыты водоотталкивающей штукатур






3-комн. квартира·52,1 м²·16/25 эт.
Гражданский проспект
5 мин.
Жилой комплекс представляет собой проект комплексного освоения территории в Красногвардейском районе Санкт-Петербурга. Масштабный проект включает в себя 80 монолитных корпусов высотой до 25 этажей, расположенных на площади в 400 гектаров. Энергоэффективные фасады корпусов утеплены теплоизоляционным материалом. Они покрыты водоотталкивающей штукатур









3-комн. квартира·53,1 м²·21/25 эт.
Гражданский проспект
5 мин.
Жилой комплекс представляет собой проект комплексного освоения территории в Красногвардейском районе Санкт-Петербурга. Масштабный проект включает в себя 80 монолитных корпусов высотой до 25 этажей, расположенных на площади в 400 гектаров. Энергоэффективные фасады корпусов утеплены теплоизоляционным материалом. Они покрыты водоотталкивающей штукатур









3-комн. квартира·51 м²·17/25 эт.
Гражданский проспект
5 мин.
Жилой комплекс представляет собой проект комплексного освоения территории в Красногвардейском районе Санкт-Петербурга. Масштабный проект включает в себя 80 монолитных корпусов высотой до 25 этажей, расположенных на площади в 400 гектаров. Энергоэффективные фасады корпусов утеплены теплоизоляционным материалом. Они покрыты водоотталкивающей штукатур









3-комн. квартира·52,1 м²·18/25 эт.
Гражданский проспект
5 мин.
Жилой комплекс представляет собой проект комплексного освоения территории в Красногвардейском районе Санкт-Петербурга. Масштабный проект включает в себя 80 монолитных корпусов высотой до 25 этажей, расположенных на площади в 400 гектаров. Энергоэффективные фасады корпусов утеплены теплоизоляционным материалом. Они покрыты водоотталкивающей штукатур







3-комн. квартира·53,1 м²·18/25 эт.
Гражданский проспект
5 мин.
Жилой комплекс представляет собой проект комплексного освоения территории в Красногвардейском районе Санкт-Петербурга. Масштабный проект включает в себя 80 монолитных корпусов высотой до 25 этажей, расположенных на площади в 400 гектаров. Энергоэффективные фасады корпусов утеплены теплоизоляционным материалом. Они покрыты водоотталкивающей штукатур









3-комн. квартира·50,5 м²·19/25 эт.
Гражданский проспект
5 мин.
Жилой комплекс представляет собой проект комплексного освоения территории в Красногвардейском районе Санкт-Петербурга. Масштабный проект включает в себя 80 монолитных корпусов высотой до 25 этажей, расположенных на площади в 400 гектаров. Энергоэффективные фасады корпусов утеплены теплоизоляционным материалом. Они покрыты водоотталкивающей штукатур









3-комн. квартира·50,5 м²·17/25 эт.
Гражданский проспект
5 мин.
Жилой комплекс представляет собой проект комплексного освоения территории в Красногвардейском районе Санкт-Петербурга. Масштабный проект включает в себя 80 монолитных корпусов высотой до 25 этажей, расположенных на площади в 400 гектаров. Энергоэффективные фасады корпусов утеплены теплоизоляционным материалом. Они покрыты водоотталкивающей штукатур








3-комн. квартира·53,1 м²·21/25 эт.
Гражданский проспект
5 мин.
Жилой комплекс представляет собой проект комплексного освоения территории в Красногвардейском районе Санкт-Петербурга. Масштабный проект включает в себя 80 монолитных корпусов высотой до 25 этажей, расположенных на площади в 400 гектаров. Энергоэффективные фасады корпусов утеплены теплоизоляционным материалом. Они покрыты водоотталкивающей штукатур