Продается Студия, 37 м²
Россия, Санкт-Петербург, Прилукская улица, 35
Обводный Канал
9 мин.
37 м²
Общая площадь
34.33 м²
Жилая площадь
6 из 6
Этаж
Описание
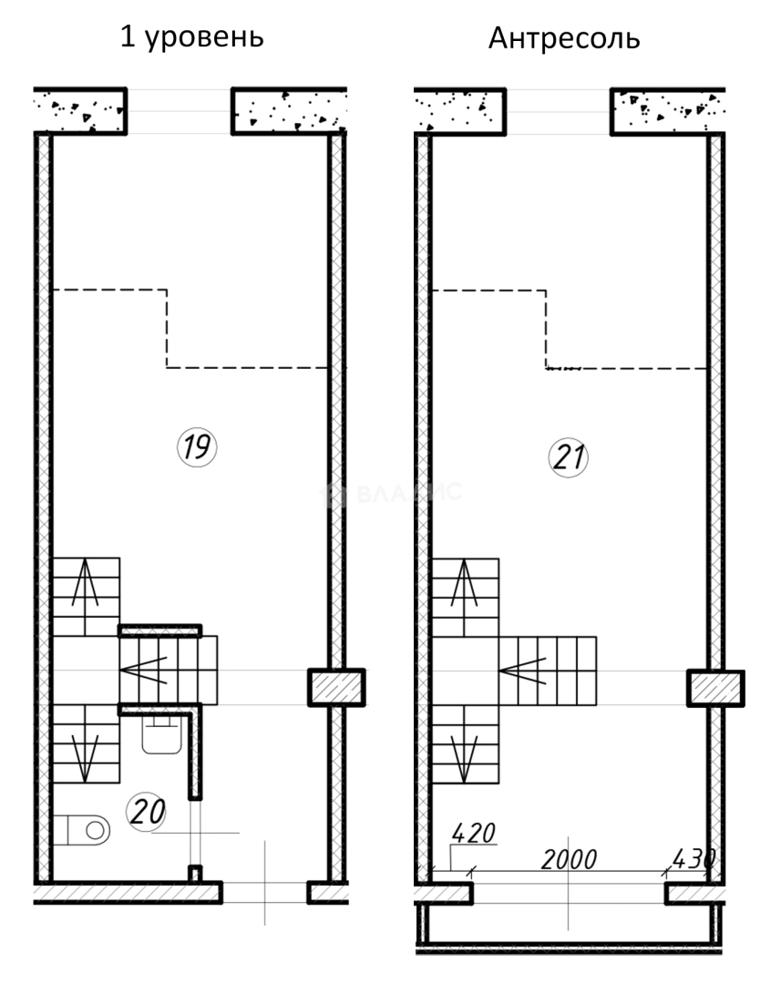
В апарт-комплексе представлено 150 двухуровневых апартаментов повышенного комфорта. Сдаются они без отделки, высотой потолков 4,2 метра, двумя уровнями освещения и панорамными окнами. Есть возможность дозаказать чистовую отделку.
В проекте предусмотрена кофейня и зона коворкинга с переговорной на 1 этаже, собственный фитнес зал. Имеется зона ресепшен с администратором 24/7 и профессиональная управляющая компания.
Апарт-комплекс находится во Фрунзенском районе, в 10 минутах пешком от метро «Обводный канал». В пешей доступности есть детские сады, школы, магазины, кафе, рестораны, салоны красоты, медицинские учреждения и ТРЦ. За 20 минут пешком можно добраться до Невского проспекта.
О квартире
Общая площадь
37 м²
Жилая площадь
34.33 м²
Площадь комнат
34.33 м²
Высота потолков
4.2 м
Этаж
6
Окна выходят
На улицу
О доме
Год постройки
2024
Этажность
6
Материал постройки
Кирпичный
Расположение
Россия, Санкт-Петербург, Прилукская улица, 35
Обводный Канал
9 мин.
Лиговский проспект
17 мин.
Волковская
17 мин.
Звенигородская
23 мин.
Пушкинская
23 мин.
Фрунзенская
25 мин.
Владимирская
26 мин.
Ипотечный калькулятор
Заполните 1 анкету — получите предложения от десятков банков на специальных условиях
Программа ипотеки
Стоимость жилья, ₽
Первый взнос, ₽
Срок кредита
от 5.75%
Ставка
от 55 316 ₽
Платеж в месяц
Расчёт носит информационный характер и не является публичной офертой
Похожие объекты
Консультант по новостройкам
8 792 750 ₽
237 642 ₽/м²










